Добавить в корзинуПозвонить
Найти в Дзене
Колосов Хауз

Freesia — 1.5 этажный каркасный дом со вторым светом, идеальный для проживания большой семьи с детьми.

Центральная зона дома — это просторная гостиная совмещенная с кухней, где присутствует панорамное остекление и выход на просторную террасу 37 м². В доме есть детские и родительские блоки, каждая комната с собственными удобствами. Детские находятся на противоположной стороне от родительской спальни. В мастер-спальне добавлен гардероб для удобства заказчиков. В доме также присутствует изолированная гостевая спальня на 1 этаже, что приносит удобства как и гостям, так и жильцам дома. Площадь: 197 м² Если заинтересовал проект — свяжитесь с нами по указанным контактам ниже и мы вышлем подробную презентацию! 📞 +7(495)032-39-17 📩 сайт: https://kolosov-house.ru/?utm_source=dzen&utm_content Telegram-канал: https://t.me/kolosov_house (Там мы делимся построенными домами, процессами и этапами стройки)

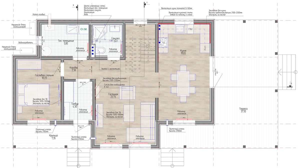
Центральная зона дома — это просторная гостиная совмещенная с кухней, где присутствует панорамное остекление и выход на просторную террасу 37 м².

В доме есть детские и родительские блоки, каждая комната с собственными удобствами. Детские находятся на противоположной стороне от родительской спальни. В мастер-спальне добавлен гардероб для удобства заказчиков.

В доме также присутствует изолированная гостевая спальня на 1 этаже, что приносит удобства как и гостям, так и жильцам дома.

Площадь: 197 м²

Если заинтересовал проект — свяжитесь с нами по указанным контактам ниже и мы вышлем подробную презентацию!

📞 +7(495)032-39-17

📩 сайт: https://kolosov-house.ru/?utm_source=dzen&utm_content

Telegram-канал: https://t.me/kolosov_house

(Там мы делимся построенными домами, процессами и этапами стройки)