Добавить в корзинуПозвонить
Найти в Дзене
ДОМОСБОР

Проснулся, потянулся, над владельцами квартир ухмыльнулся. Каркасно-панельный дом KRP 108

Нет ничего лучше, чем проснутся в собственном доме, залитом утренним светом, с видом на лес из панорамных окон. Проект каркасно-панельного дома KRP 108 — это воплощение мечты о комфортной и современной загородной жизни. Поверьте, в этом доме вы будете просыпаться без головной боли — свежим и выспавшимся, а разве нам нужно больше, чтобы держать все в балансе? Этот дом создан для тех, кто ценит сочетание функциональности, эстетики и уюта. Скандинавский стиль придает дому современный и лаконичный вид, а продуманная планировка удовлетворит потребности даже самой требовательной семьи. Не упустите шанс сделать шаг к жизни, о которой вы всегда мечтали. Проект KRP 108 — это ваш путь к гармонии с природой и комфортному проживанию в собственном доме. Площадь Габариты Комфорт:
Оглавление

Нет ничего лучше, чем проснутся в собственном доме, залитом утренним светом, с видом на лес из панорамных окон. Проект каркасно-панельного дома KRP 108 — это воплощение мечты о комфортной и современной загородной жизни.

Поверьте, в этом доме вы будете просыпаться без головной боли — свежим и выспавшимся, а разве нам нужно больше, чтобы держать все в балансе?

Преимущества проекта KRP 108:

  • Три спальни обеспечивают комфортное размещение всех членов семьи, а два санузла избавят от утренних очередей.
  • Пространство площадью 23 м2 станет сердцем дома, где можно готовить, принимать гостей и проводить семейные вечера.
  • Панорамные окна наполняют дом естественным светом и позволяют наслаждаться видами природы в любое время года.
  • Балкон и веранда — идеальные места для утреннего кофе или вечернего отдыха на свежем воздухе.
  • Технология каркасно-панельного строительства: Обеспечивает высокую энергоэффективность, скорость возведения и долговечность конструкции.

Этот дом создан для тех, кто ценит сочетание функциональности, эстетики и уюта. Скандинавский стиль придает дому современный и лаконичный вид, а продуманная планировка удовлетворит потребности даже самой требовательной семьи.

Не упустите шанс сделать шаг к жизни, о которой вы всегда мечтали. Проект KRP 108 — это ваш путь к гармонии с природой и комфортному проживанию в собственном доме.

Основные характеристики:

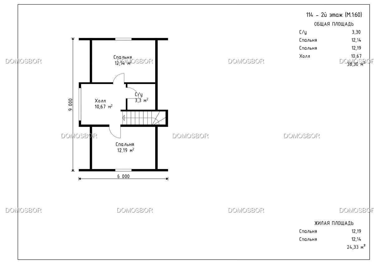
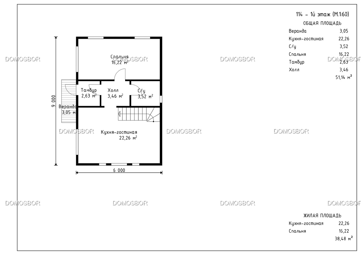
Площадь

  • Общая: 102 м2
  • Полезная: 90 м2
  • Жилая: 63 м2
  • Кухня-гостиная: 23 м2

Габариты

  • Ширина: 6 м
  • Длина: 9 м
  • Пятно застройки: 6×9 м
  • Площадь застройки: 51 м²

Комфорт:

  • Количество спален: 3
  • Санузлы: 2
  • Особенности: панорамные окна, тамбур, балкон, веранда

Заинтересовал проект? Бегом на сайт!