Добавить в корзинуПозвонить
Найти в Дзене
Татьяна SMART DESIGN

Этапы работы над дизайн-проектом

Для вашего удобства мы делим проект на несколько этапов. Полная оплата происходит только после вашего согласования на предыдущем этапе работа. Это позволяет достигать в работе наилучшего результата. 1 Этап. Заключение договора. Перед этим важным шагом мы проводим встречу с вами в офисе или на объекте. На встрече мы консультируем, отвечаем на ваши вопросы по дизайну и ремонту, демонстрируем уже выполненные проекты. На первом этапе для нас очень важно услышать Вас, ваши пожелания по будущему жилью. Обязательно обговариваем ориентировочный бюджет, чтобы ориентироваться на него в процессе ремонта. Заключаем договор, прописываем этапы работ. Как правило, дизайн-проект состоит из 4 блоков: 2 Этап. Планировочные решения. Планировочные решение - являются фундаментальный этапом в разработке дизайн-проекта. Они отвечают за удобство и эргономику. В наших проектах мы стараемся максимально полезно использовать пространство. Как правило, мы предлагаем заказчику от 1-3 планировочных решений на выбор.

Для вашего удобства мы делим проект на несколько этапов. Полная оплата происходит только после вашего согласования на предыдущем этапе работа. Это позволяет достигать в работе наилучшего результата.

1 Этап. Заключение договора.

Студия дизайна Татьяны Зотовой Smart Design
Студия дизайна Татьяны Зотовой Smart Design

Перед этим важным шагом мы проводим встречу с вами в офисе или на объекте. На встрече мы консультируем, отвечаем на ваши вопросы по дизайну и ремонту, демонстрируем уже выполненные проекты.

На первом этапе для нас очень важно услышать Вас, ваши пожелания по будущему жилью. Обязательно обговариваем ориентировочный бюджет, чтобы ориентироваться на него в процессе ремонта. Заключаем договор, прописываем этапы работ.

Как правило, дизайн-проект состоит из 4 блоков:

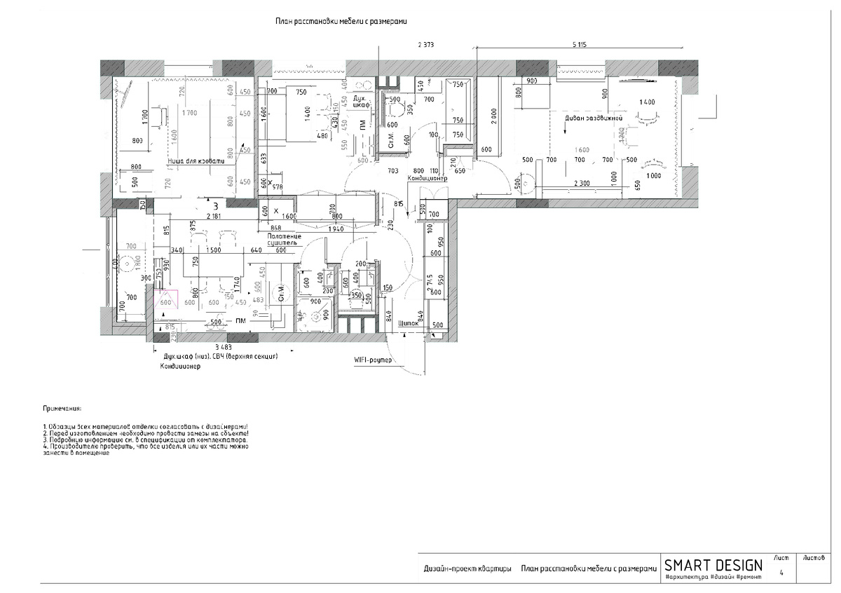
  • план с расстановкой мебели;
  • концепция и чертежи;
  • рабочая документация (планы электрики, сантехники, развертки стен, детализация мебели);
  • комплектация (подбор мебели, светильников, дверей, чистовых отделочных материалов)

2 Этап. Планировочные решения.

Планировочные решение - являются фундаментальный этапом в разработке дизайн-проекта. Они отвечают за удобство и эргономику. В наших проектах мы стараемся максимально полезно использовать пространство.

Как правило, мы предлагаем заказчику от 1-3 планировочных решений на выбор.

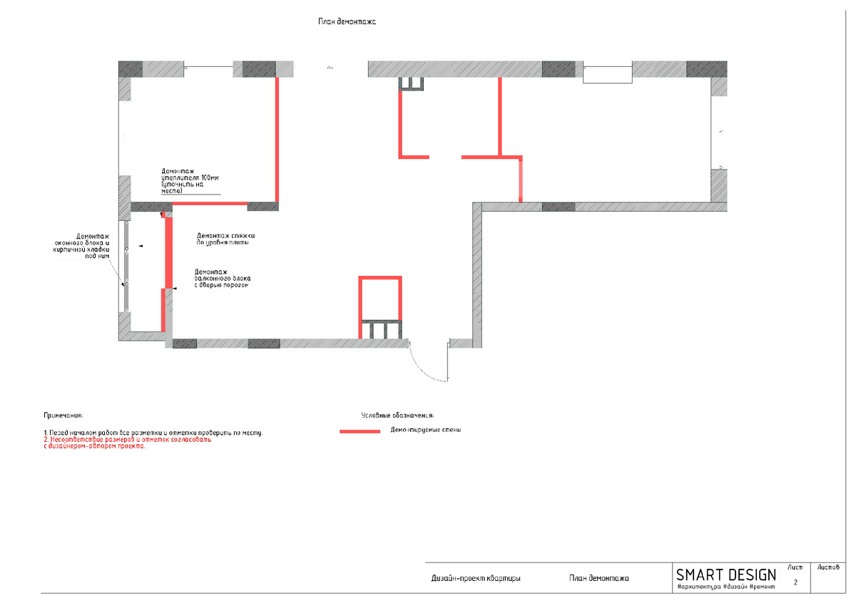
В составе чертежей планировочных решений содержится:

  • план демонтажа (план сносимых перегородок)
  • план возводимых перегородок (с указанием объема и материала новых стен)
  • план с расстановкой и мебелью

3 Этап. Концепция и визуализация.

Концепция - это главная идея проекта. Концепция задает направление стиля вашего дома или квартиры и помогает дизайнеру и заказчику лучше понять друг друга.

Мы оформляем концепцию в виде коллажей, где наглядно показываем визуальный образ будущего дома. Концепцию предлагаем исходя из площади и существующей планировки

Визуализация интерьера  - это трёхмерное изображение квартиры, дома с учётом масштаба. Другими словами, визуализация - это уточненная концепция.

Дизайнер создаёт трехмерную модель на основе согласованный планировки квартиры. На визуализации сразу становится понятен:

  • подходит ли выбранная мебель?
  • как материалы стен, пола, обивки штор сочетаются между собой?
  • сценарий освещения
Визуализация прихожей в ЖК "Скандинавия" Студия дизайна Татьяны Зотовой
Визуализация прихожей в ЖК "Скандинавия" Студия дизайна Татьяны Зотовой

4 Этап. Рабочая документация

Рабочая документация содержат всю необходимую информацию для начала ремонта и просчета точной стоимости реализации вашего интерьера квартиры.

Минимальный список листов рабочей документации:

  • Общие данные и указания к проекту
  • Обмерный план
  • План демонтажа перегородок
  • План возводимых перегородок
  • Планы с расстановкой мебели
  • План потолков
  • План полов
  • Планы розеток и выключателей
  • План светильников
  • Чертежи стен комнат
  • Визуализация помещений
  • Ведомость объемов материалов, дверей
  • Дополнительный узлы
  • Чертежи мебели

5 Этап. Спецификация мебели и чистовых материалов.

Этот раздел представляет собой комплектацию всего проекта мебелью, дверьми, светильниками и чистовыми материалами с указанием магазинов и артикулов товаров. Это удобная таблица в exel, где каждая позиция имеет ссылку на интернет-магазин либо адрес и координаты офлайн магазина.

Мы сторонники системного подхода, поэтому разделение проекта на этапы считаем удобным и понятным для нас и заказчика.