Добавить в корзинуПозвонить
Найти в Дзене

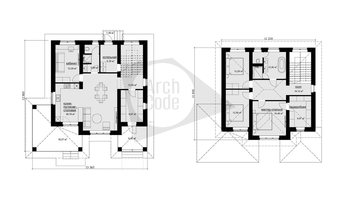
Проект двухэтажного коттеджа «Мельник»

Проект двухэтажного коттеджа «Мельник» Общая площадь дома составляет 196,7 м², включая террасы площадью 29,1 м². Этот проект объединяет удобство, стиль и эргономику, создавая комфортное пространство для жизни и отдыха. Основные преимущества проекта: ✔️ Просторная кухня-гостиная-столовая ✔️ Три спальни, в том числе мастер-спальня с гардеробной ✔️ Два санузла ✔️ Уютные террасы площадью 18,27 м² и 9,36 м² Планировка дома: Первый этаж: ✔️ Кухня-гостиная-столовая – 40,76 м² ✔️ Кабинет – 12,29 м² ✔️ Санузел – 5,90 м² ✔️ Котельная – 6,35 м² ✔️ Холл – 13,95 м² ✔️ Входная зона – 9,67 м² ✔️ Крыльцо – 9,36 м² Второй этаж: ✔️ Спальня 1 – 12,29 м² ✔️ Спальня 2 – 12,58 м² ✔️ Мастер-спальня с гардеробной – 16,48 м² + 9,67 м² ✔️ Ванная комната – 12,50 м² ✔️ Холл – 16,10 м² Проект «Мельник» предназначен для тех, кто ценит комфорт. Просторные помещения, функциональная планировка и уютные террасы делают этот коттедж идеальным местом для проживания. Как построить дом в Тюмени? Как построить дом в Москве?

Проект двухэтажного коттеджа «Мельник»

Общая площадь дома составляет 196,7 м², включая террасы площадью 29,1 м². Этот проект объединяет удобство, стиль и эргономику, создавая комфортное пространство для жизни и отдыха.

Основные преимущества проекта:

✔️ Просторная кухня-гостиная-столовая

✔️ Три спальни, в том числе мастер-спальня с гардеробной

✔️ Два санузла

✔️ Уютные террасы площадью 18,27 м² и 9,36 м²

Планировка дома:

Первый этаж:

✔️ Кухня-гостиная-столовая – 40,76 м²

✔️ Кабинет – 12,29 м²

✔️ Санузел – 5,90 м²

✔️ Котельная – 6,35 м²

✔️ Холл – 13,95 м²

✔️ Входная зона – 9,67 м²

✔️ Крыльцо – 9,36 м²

Второй этаж:

✔️ Спальня 1 – 12,29 м²

✔️ Спальня 2 – 12,58 м²

✔️ Мастер-спальня с гардеробной – 16,48 м² + 9,67 м²

✔️ Ванная комната – 12,50 м²

✔️ Холл – 16,10 м²

Проект «Мельник» предназначен для тех, кто ценит комфорт. Просторные помещения, функциональная планировка и уютные террасы делают этот коттедж идеальным местом для проживания.

-2

Понравился проект? Заказать проект или выбрать подобный можно по телефону: +79323212510. Звоните или пишите. Заявки принимаются по вотцап, телеграмм. Готовы рассчитать для вас смету!

Как построить дом в Тюмени?

Как построить дом в Москве?

Готовые дома в Тюмени

Готовые дома в Москве

Земельные участки в Тюмени

Задать вопрос в ТГ

И подписывайтесь на наш канал, чтобы не пропустить новые интересные проекты.

#проектдома #проектдвухэтажногодома #построитьдом #купитьдом

#двухэтажныйдом #лучшиедвухэтажныедома #дом #новыедома