Добавить в корзинуПозвонить
Найти в Дзене

Дизайн двушки 56 м² в доме серии П-111М.

В работе двушка 56 м² в панельном доме серии П-111М. Ой, видел. Пол - города ими застроена. Каждый день мимо таких домов хожу. Вернее обхожу. Неуютно я себя рядом с этими домами чувствую. Дома кажутся слишком большими и грубыми. Наверно это просто мои фантазии. Для многих людей эти дома очень даже родные. Да и вообще, фасад ведь не главное.
Посмотрим что внутри. Тут мнения разделились на восторженно хвалебные и резко отрицательные. Причём хвалебные отзывы без конкретики: Я живу в таком! Все супер! А отрицательные достаточно обоснованы: Бесполезные раздутые гостиные.
Коридоры по 12 метров, где и шкаф не поставить из-за дверей!
Узкие шаги комнат и кухонь. Даже интересно посмотреть эту планировку. У нас в работе была вот такая двушка: Бесполезные раздутые гостиные – пожалуй соглашусь.
Но в нашем случае хозяйка именно такую просторную "залу" и хотела (про гостиную есть отдельная статья). Коридоры по 12 метров где и шкаф не поставить из-за дверей!
Да, коридор 12 м² великоват для квартир
Оглавление

В работе двушка 56 м² в панельном доме серии П-111М.

П-111М – что за серия?
Не разу не видел.

Ой, видел. Пол - города ими застроена. Каждый день мимо таких домов хожу. Вернее обхожу. Неуютно я себя рядом с этими домами чувствую. Дома кажутся слишком большими и грубыми.

Наверно это просто мои фантазии. Для многих людей эти дома очень даже родные.

Да и вообще, фасад ведь не главное.
Посмотрим что внутри.

Интересно, а что пишут в сети о квартирах в П-111М?

Тут мнения разделились на восторженно хвалебные и резко отрицательные. Причём хвалебные отзывы без конкретики:

Я живу в таком! Все супер!

А отрицательные достаточно обоснованы:

Бесполезные раздутые гостиные.
Коридоры по 12 метров, где и шкаф не поставить из-за дверей!
Узкие шаги комнат и кухонь.

Даже интересно посмотреть эту планировку.

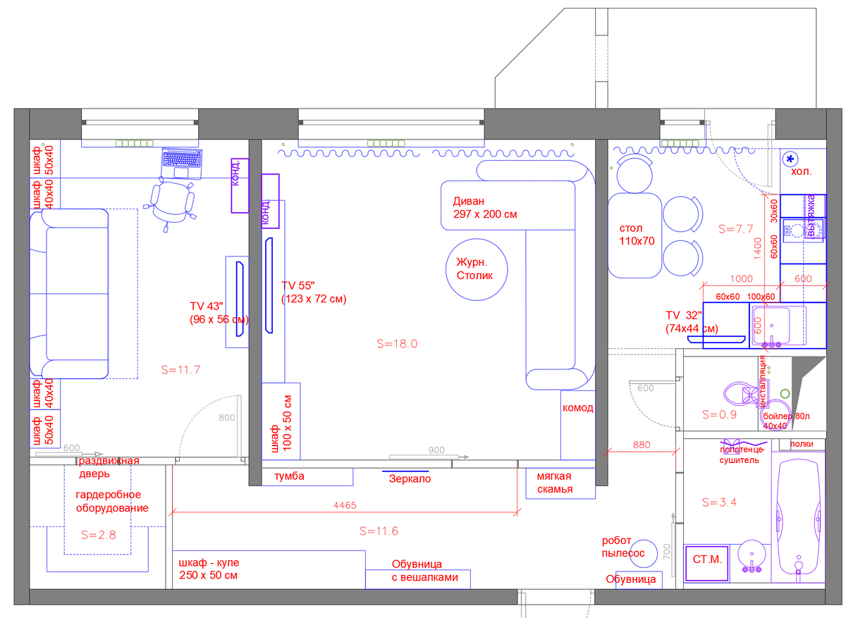
Планировка двушки в доме П-111М.

У нас в работе была вот такая двушка:

-2

Бесполезные раздутые гостиные – пожалуй соглашусь.
Но в нашем случае хозяйка именно такую просторную "залу" и хотела (про гостиную есть отдельная статья).

Коридоры по 12 метров где и шкаф не поставить из-за дверей!
Да, коридор 12 м² великоват для квартиры 56 м².
Дверей не так чтобы перебор. Но эти выступающие панели стен...
Шкаф глубиной 60 см действительно не поставить – проход в дальнюю комнату будет узким.

Узкие шаги комнат и кухонь.
Кухня почти 8 м². Не так чтобы очень много. Но и не так уж мало. Ещё и выход на балкон с кухни – и это на мой взгляд плюс. С кухней всё нормально.

Дальняя комната совмещена с гардеробной. То есть там проектировщики, вероятно, предполагали размещение спальни. Но ширина этой комнаты 2.80 м. Тесновато для размещения кровати.

Дизайн двушки в доме П-111М.

Про гостиную статья была. Здесь просто приведу картинки.

Коридор.

Я понимаю, что советских архитекторов, которые проектировали этот дом, выступающие в коридор панели не парят ну ни разу.

-4

Но в среде заказчиков такой конструктивизм не популярен. Им почему-то совсем не нравятся торчащие непонятные конструктивные элементы.

Придётся декорировать.

-5

И вторая проблема коридора - то что он длинный. Нужно зонировать. Зона прихожей и зона шкафа.

Остановились на этом варианте оформления.
Хотя мне больше нравился предпоследний:

-7

Кухня.

Первый же эскиз кухни заказчикам понравился!

Вау как здорово.
Только нужно чуть-чуть доделать.

"Чуть-чуть доделать" это ещё штук 5 промежуточных вариантов.
Остановились на этом:

Хотя мне больше нравился другой вариант:

-10

Спальня.

Спальня 12 м² ( 4.2 x 2.8 метров ). Кровать не поместится (вернее поместится, но места свободного не останется). Поэтому в спальне у нас диван. Рядом с диваном шкафы. Вдоль окна стол.

И гардеробная.
Но про гардеробную будет отдельная статья.

Санузел.

В ванной комнате мы "оторвались". Полки-ниши над ванной, разноцветная подсветка, парящий потолок.

В туалете — ночная подсветка (по краям стены за унитазом). Умывальник. Зеркало с подсветкой.

В заключении хочу привести ещё один положительный отзыв про квартиру в П-111М:

Если найти грамотного дизайнера, то можно сделать из квартиры эргономичную конфетку.

Уж не знаю, как насчёт эргономичности, но судя по реакции, наша "конфетка" заказчику понравилась.

#ТриЛуча

Актуальные цены на дизайн-проект смотрите на моем сайте.
☎ +7 916 490-9022