Добавить в корзинуПозвонить
Найти в Дзене
Realt.by

В известном поселке под Минском продается дом как в Pinterest. Показываем, что внутри

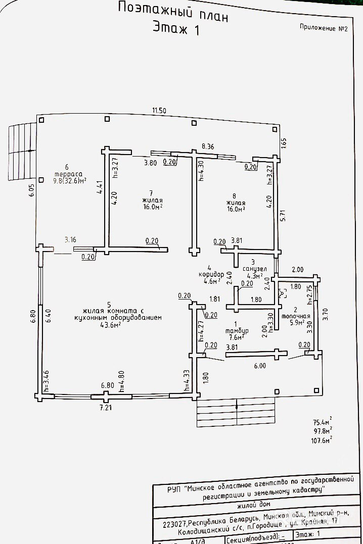
В поселке Городище, что недалеко от Минска, выставлен на продажу новый бревенчатый дом с большой террасой. Внутри он отделан деревом, там обустроено несколько комнат, есть коммуникации. Размеры участка позволяют организовать дополнительные зоны отдыха. Посмотрите, как выглядит дом. Пишем и про его стоимость. Дом построен в один этаж в 2022 году в поселке Городище. Фундамент — монолитный железобетонный с утеплением и гидроизоляцией. Стены из профилированного бруса. На крыше лежит металлочерепица. Кровля также утеплена. Площадь жилья составляет 107,6 м². Из этого 75,4 м² — жилая. Внутри дом отделан деревом. Самая большая комната — совмещенная кухня-гостиная. Потолок имеет разную высоту, что позволяет повесить высокие люстры. Продумано несколько вариантов освещения. В зоне кухни лежит плитка, в жилой части — паркетная доска. Все обставлено мебелью и техникой. Обеденный стол стоит рядом с двумя большими окнами. Отсюда же можно выйти на террасу. В доме две отдельные жилые комнаты. Санузел

В поселке Городище, что недалеко от Минска, выставлен на продажу новый бревенчатый дом с большой террасой. Внутри он отделан деревом, там обустроено несколько комнат, есть коммуникации. Размеры участка позволяют организовать дополнительные зоны отдыха. Посмотрите, как выглядит дом. Пишем и про его стоимость.

Дом построен в один этаж в 2022 году в поселке Городище. Фундамент — монолитный железобетонный с утеплением и гидроизоляцией. Стены из профилированного бруса. На крыше лежит металлочерепица. Кровля также утеплена. Площадь жилья составляет 107,6 м². Из этого 75,4 м² — жилая.

-2

Внутри дом отделан деревом. Самая большая комната — совмещенная кухня-гостиная. Потолок имеет разную высоту, что позволяет повесить высокие люстры. Продумано несколько вариантов освещения. В зоне кухни лежит плитка, в жилой части — паркетная доска. Все обставлено мебелью и техникой.

Обеденный стол стоит рядом с двумя большими окнами. Отсюда же можно выйти на террасу.

В доме две отдельные жилые комнаты.

Санузел также совмещенный, с душевой кабиной. Отопление тут на газу, вода и канализация введены в дом. Оборудована современная топочная с погодозависимой автоматикой. В комнатах стоят радиаторы, сделаны водяные теплые полы. Подключено видеонаблюдение.

Терраса здесь крытая и просторная. Она занимает 32,5 квадратного метра.

Участок в 15 соток ухожен и огорожен забором. Тут есть дорожки, посеян газон, работает автополив, имеются и дождеприемники.

До Минска ехать меньше 20 км. До поселка можно доехать на общественном транспорте, электричке. Неподалеку есть магазин.

Стоимость дома — 280 тысяч долларов.