Добавить в корзинуПозвонить
Найти в Дзене

Удобная планировка. Рисуем план самостоятельно

Планировка - самая главная и важная часть вашего ремонта. Неправильно поставленную стену не передвинуть за один вечер, поэтому на этом пункте я бы останавливалась дольше всего. Для рисования планировки вам понадобится чертеж квартиры, который вы сделаете по обмерам (тут подробно). И четкое ТЗ, что вообще нужно от квартиры или дома: надо обязательно разместить рояль и горнолыжную экипировку, нужно много шкафов или квартира для "переночевать" и много мест хранения не требуется, но хочется камин для уютных вечеров. Две разные семьи сделают две абсолютно разные планировки из одной квартиры. Поэтому очень хорошо сформулируйте, что вообще должно получится я итоге. Ну и помним про разумность, не пытаемся в однушке разместить три спальни, кабинет и бильярдный стол. Я не знаю, как научить планировкам, хотя сама и вебинары смотрела, и лекции слушала, и книжки читала. Могу рассказать, как это делаю я. Не знаю, может у других дизайнеров есть какие-то особые лайфхаки и способы, может кто-то сразу

Планировка - самая главная и важная часть вашего ремонта. Неправильно поставленную стену не передвинуть за один вечер, поэтому на этом пункте я бы останавливалась дольше всего.

Для рисования планировки вам понадобится чертеж квартиры, который вы сделаете по обмерам (тут подробно). И четкое ТЗ, что вообще нужно от квартиры или дома: надо обязательно разместить рояль и горнолыжную экипировку, нужно много шкафов или квартира для "переночевать" и много мест хранения не требуется, но хочется камин для уютных вечеров. Две разные семьи сделают две абсолютно разные планировки из одной квартиры. Поэтому очень хорошо сформулируйте, что вообще должно получится я итоге. Ну и помним про разумность, не пытаемся в однушке разместить три спальни, кабинет и бильярдный стол.

Я не знаю, как научить планировкам, хотя сама и вебинары смотрела, и лекции слушала, и книжки читала. Могу рассказать, как это делаю я. Не знаю, может у других дизайнеров есть какие-то особые лайфхаки и способы, может кто-то сразу издалека видит, где ставить стены, но у меня простого рецепта нет))

  • Итак, я беру план квартиры и стираю в нем все ненесущие стены. Помним, что в несущих мы можем сделать иногда дверной проем, но он не будет слишком большой и путь этот весьма сложный.
  • Черчу мокрые зоны, которые должны остаться на своих местах и заезжать ими в соседние комнаты мне нельзя.
  • А дальше..я кручу стены как пасьянс. Двигаю их, чтобы все уместилось. Пробую делать разные ниши, выступы. Стена не обязательно должна идти прямой линией от и до, она может быть ломанной кривой.

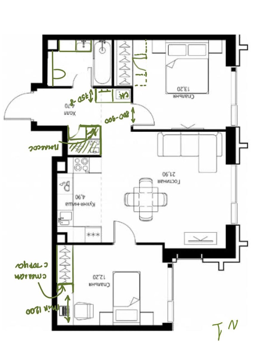
Обратите внимание, как в спальне сделан шкаф. Думаю, изначально стена шла просто прямо, но дизайнер сделал нишу за счет стены неправильной формы. Таким образом в спальне появилось место хранения, а коридор стал меньше (что хорошо, зачем на ено тратить дорогие метры) и более изолированным.

  • Если у меня маленькие санузлы, я пробую вынести машинку в коридор. Часто получается в коридоре в шкафу разместить стиральную и сушильные сашины и организовывать мини постирочную.
-2

Вот тут как раз машинки вынесены в шкаф в коридор, что не запрещено нормами, поэтому с узакониванием проблем не будет. Идея поставить их рядом, сверху сделать столешницу и хранение

  • Всегда помню про соразмерность и масштаб. Очень легко обмануться, уместить все, а потом понять, что вживую кровать в два раза больше, чем нарисовали. Таким часто грешат застройщики, в этой статье писала про это.
  • Конечно же всегда помню про эргономику и минимально необходимые размеры. Не делаю дверные проемы по 50см и не делаю по 150см, не делаю узкие проходы у кровати. Помню, что стул из-за стола еще на пол метра выдвигается, значит нужно заложить на это место.
  • Помню про то, что нельзя двигать и менять. Но и помню про то, что можно. Подробно тут. Если получается, то увеличиваю санузел или кухню за счет коридора.
  • Не стесняюсь просматривать тысячи планировок других дизайнеров, в том числе иностранных, вдруг какая-то картинка натолкнет на мысль и подскажет решение.
  • Стараюсь думать "в объеме". На планировку в итоге же не смотреть сверху, в ней придется жить, все выступы, углы и повороты не должны создавать дискомфорт.
  • Знаю, что есть откуда-то ошибочные представления о планировках. Из серии, что в маленькой ванной комнате надо ставить душ, а не ванну, потому что он меньше. Но по факту удобная душевая кабина шире стандартной ванны и никакого места она не сэкономит.
  • Стараюсь помнить про оси в планировке и про правило "заходить на красивое". Мелочь, но визуальное восприятие помещения играет очень большую роль.
  • Но вместе с красивым помню еще, что все должно быть реализуемо. Если планирую тут проем, там витраж, а раковину перенести, чтоб зайти на красивое, то проверяю, что стояки позволяют перенести воду, а в нужный простенок встанет стекло.
  • Пытаюсь крутить-вертеть стены и план, но без фанатизма и не делаю так никогда. Просто прошу вас))) не надо так извращаться над пространством.
-3

Вроде это все, что помогает мне делать планировки.

А вообще я бы очень рекомендовала обращаться к специалистам за чертежами. Хотя бы минимальный набор: планировка и расстановка мебели. Остальное уже можно как-то самим додумать, если бюджет ограничен или хочется делать ремонт самостоятельно. В идеале электрику, конечно, тоже делегировать.

Не в целях саморекламы советую, просто планировка это основа основ. Стены потом можно перекрашивать хоть каждый вечер, ошибиться с цветом не так страшно.