Добавить в корзинуПозвонить
Найти в Дзене
TECHPRIS.PRO

Нужен ли проект электроснабжения при подключении к сетям? Разбираемся!

Когда вам нужно подключить дом, дачу или коммерческий объект к электросетям, сетевая организация может потребовать проект электроснабжения. Но всегда ли это обязательно, или есть случаи, когда можно обойтись без него? Давайте разбираться. Когда проект обязателен? Согласно Правилам технологического присоединения, проектирование необходимо, если это указано в технических условиях. Однако есть исключения. Проект не требуется для: • Частных домов, садовых домов, гаражей и хозпостроек – согласно Градостроительному кодексу РФ (ст. 48, п. 3), для таких объектов проект разрабатывать необязательно. Но если хотите заранее продумать расположение щитов, кабелей и защитных устройств, проект поможет избежать проблем в будущем. • Объектов с мощностью до 50 кВт – для небольших домов и коммерческих помещений обычно достаточно однолинейной схемы электроснабжения, которая утверждается вместе с общим строительным проектом. Когда проект необходим? • Если максимальная мощность объекта превышает 150 кВт, се

Когда вам нужно подключить дом, дачу или коммерческий объект к электросетям, сетевая организация может потребовать проект электроснабжения. Но всегда ли это обязательно, или есть случаи, когда можно обойтись без него? Давайте разбираться.

Когда проект обязателен?

Согласно Правилам технологического присоединения, проектирование необходимо, если это указано в технических условиях. Однако есть исключения.

Проект не требуется для:

• Частных домов, садовых домов, гаражей и хозпостроек – согласно Градостроительному кодексу РФ (ст. 48, п. 3), для таких объектов проект разрабатывать необязательно. Но если хотите заранее продумать расположение щитов, кабелей и защитных устройств, проект поможет избежать проблем в будущем.

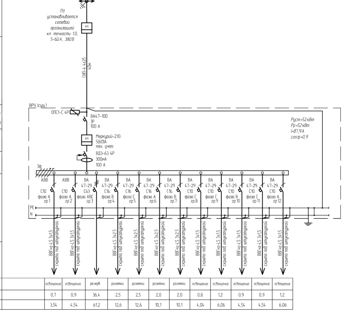
• Объектов с мощностью до 50 кВт – для небольших домов и коммерческих помещений обычно достаточно однолинейной схемы электроснабжения, которая утверждается вместе с общим строительным проектом.

-2

Когда проект необходим?

• Если максимальная мощность объекта превышает 150 кВт, сетевая организация вправе запросить проект для подтверждения соответствия техническим условиям.

• Для промышленных объектов и крупных коммерческих зданий – проект обязателен, его разрабатывают специализированные компании с лицензиями.

Что делать, если сетевая организация требует проект?

Если мощность вашего объекта менее 150 кВт, требование предоставить проект – право, а не обязанность. Вы можете его сделать, но не обязаны.

Однако в некоторых случаях проектирование поможет:

• Если хотите заранее учесть перспективное увеличение мощности.

• Если нужна четкая схема работы оборудования, чтобы избежать перегрузок и аварий.

• Если планируется сложная электрическая сеть с резервным питанием.

-3

Вывод: если у вас частный дом, дача или небольшой бизнес, проект вам, скорее всего, не нужен. Но если речь о мощных энергопринимающих устройствах или промышленном объекте – проектирование неизбежно. Всегда сверяйтесь с техническими условиями и законодательством, чтобы избежать лишних затрат!

Если же вам действительно нужен проект электроснабжения, то его можно заказать у нас! Мы рады предложить его вам по разумной стоимости, быстрым срокам подготовки, согласованием в электросетях!⚡️

С уважением,

энергетическое агентство 

TECHPRIS.PRO.

http://techpris.pro/

Techpris.Pro

-4