Найти в Дзене

Шикарная квартира с 1-ой спальней!

Сегодня рассказываем про дизайн-проект для квартиры с открытой планировкой и одной спальней. Какие дизайнерские решения были использованы и как мы распланировали пространство в 80 м2?

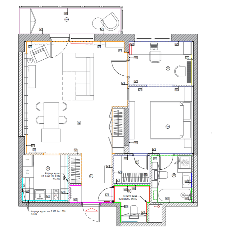
Сразу отвечаем на вопрос: почему на такой площади всего 1 спальня?! Потому что это изначально однокомнатная квартира, ну или евродвушка, если вам так больше нравится. То есть, несмотря на площадь, у квартиры только два окна.

Портфолио Remplanner
Портфолио Remplanner

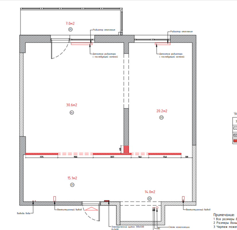
Начнем с самого большого помещения – гостиной, её площадь 31 м2, а благодаря высоким потолкам и большому окну с выходом на лоджию, она выглядит максимально объемной и наполненной воздухом. Хотя пустым это пространство тоже не выглядит.

Портфолио Remplanner
Портфолио Remplanner

В центре расположен большой модульный диван изумрудного цвета, с ярким красным оттенком, который в этом проекте выступает в качестве акцентного. Дополнением к обивке дивана служит кант на шторах, кстати, там есть и винно-красная полоса.

Портфолио Remplanner
Портфолио Remplanner

Стена в ТВ-зоне у нас оформлена с помощью панелей с текстурой дерева теплого оттенка, этот цвет повторяется и в кухне, о ней чуть позже.

Портфолио Remplanner
Портфолио Remplanner

Остальные стены – это интерьерная краска светло-серого цвета. Хотя стена окрашена не до потолка, серый упирается в контрастную винно-красную полосу, которая обозначает границу белого и серого. Черновая высота потолков 338 см, поэтому такой прием с яркой горизонталью тут абсолютно уместен и эффектен.

Портфолио Remplanner
Портфолио Remplanner

Стилистически интерьер выдержан в современном стиле, но можно найти в нем черты стиля лофт, в основном из-за мебели: массивного подстолья, стеллажа с металлическим основанием. Позади дивана стена с дверью-невидимкой и странный стеклянный декор – это стеклоблоки.

Портфолио Remplanner
Портфолио Remplanner

Гостиная также выполняет роль столовой, в ее обеденной зоне расположен стол с четырьмя ярко-красными стульями и кухонный остров. А где же кухня, спросите вы? Её мы спрятали в нишу!

Помните об открытой планировке? Так вот, все коммуникации проходят в углу слева от входа в квартиру, именно там мы и создали нишу для нашей небольшой, но очень практичной кухни. Ее площадь меньше 6 м2, она имеет П-образную конфигурацию и полностью встроенную технику. Это место исключительно для приготовления еды, оно лаконично, функционально и может быть полностью изолировано от зоны столовой и гостиной.

Портфолио Remplanner
Портфолио Remplanner

Ну и чтобы закончить с этой частью – прихожая, она здесь плавно переходит в гостиную, поскольку пространство максимально открытое, границу мы обозначали визуально, а не физически.

Портфолио Remplanner
Портфолио Remplanner

Здесь мы использовали тот самый винно-красный цвет, который покрывает стены и потолок, формируя четкую границу, и вместе с тем абсолютно гармонично сочетается с остальным интерьером.

Портфолио Remplanner
Портфолио Remplanner

Функционально всё здесь максимально просто, ничего лишнего: большой встроенный шкаф, рядом с ним металлическая открытая вешалка, которая очень выразительно смотрится на ярком красном фоне, и пуф-обувница. Напротив зеркало и подвесная консоль для мелочей.

Портфолио Remplanner
Портфолио Remplanner

Кстати, обратите внимание – пол уложен единым массивом – это кварцвиниловый ламинат. Для открытой планировки незаменимое решение, взгляд не должен спотыкаться ни о какие «порожки».

Кстати, второй встроенный шкаф расположен чуть дальше, справа, он сочетает в себе декоративную витрину и секции закрытого хранения.

Портфолио Remplanner
Портфолио Remplanner

Рядом с консолью на красном фоне можно разглядеть дверь-невидимку – это санузел, можно назвать его гостевым или запасным.

Портфолио Remplanner
Портфолио Remplanner

Оформление строгое, отчасти даже классическое. Использование реек вместе с панелями позволило создать объемную отделку стены с инсталляцией и чашей унитаза. Она не лишена строгости, но немного сглаживает эффект серых стен.

Портфолио Remplanner
Портфолио Remplanner

Черная сантехника выглядит в таком интерьере максимально эффектно, настолько, что даже странно представить белую.

Если мы откроем вторую межкомнатную дверь, ту, что в гостиной, мы попадем не просто в спальню, а на приватную половину квартиры. Потому что здесь у нас сразу 4 помещения.

Непосредственно спальня занимает 11,7 м2, всю ее обстановку составляют шкаф-стеллаж, кровать и тумба под телевизором. Изголовье оформлено стеновыми панелями и зеркальной вставкой, вместо бра – вертикально установленный трек с разнонаправленными светильниками.

Портфолио Remplanner
Портфолио Remplanner

Обратите внимание на полосу из стеклоблоков в углу – это наша альтернатива стеклянной перегородки. Мы сохранили хорошую шумоизоляцию и приватность – блоки светопрозрачные, но сквозь них невозможно увидеть что-то, кроме размытых пятен.

Портфолио Remplanner
Портфолио Remplanner

Часть комнаты у окна занимает рабочий кабинет, со спальней они соединены просто широким дверным проемом – достаточным для пропускания порции солнечного света. Кстати, вход в спальню именно через кабинет, а не наоборот.

Портфолио Remplanner
Портфолио Remplanner

В кабинете у нас баланс белого и графитового, всё строго функционально: большой стол, стеллаж, и даже нашлось место для синтезатора.

Портфолио Remplanner
Портфолио Remplanner

Стильное и практичное рабочее пространство, в котором при скромности размеров (7,6 м2) достаточно места для комфортной работы. Кстати, внутренний блок кондиционера расположен в зоне спальни, но рассчитан на охлаждение обоих смежных помещений.

Ну и финальное – ванная комната. Это строго хозяйская ванная, вход расположен в спальне, рядом с дверью в гардеробную. Как мы уже упоминали – все эти помещения строго приватная часть квартиры, куда закрыт доступ посторонним.

Портфолио Remplanner
Портфолио Remplanner

Площадь её 5,3 м2, поэтому использовали мы их максимально рационально, в каком-то смысле – это ванная с функциями прачечной.

Портфолио Remplanner
Портфолио Remplanner

Здесь не только установлены стиральная и сушильная машины, но и предусмотрено значительное число мест хранения как для стиральных принадлежностей, так и для грязного и чистого белья.

Портфолио Remplanner
Портфолио Remplanner

В частности, инсталляция тут не «спрятана в стену», вокруг нее построен целый шкаф. Второй шкаф сооружен вокруг колонны со стирально-сушильной техникой.

Портфолио Remplanner
Портфолио Remplanner

Сантехника здесь белая – все же для ежедневного использования белый цвет более практичен. Хотя настроение здесь тоже задают оттенки серого, графита и дерева. Чуть более теплым это помещение делает использование подсветки теплого желтого цвета, она смягчает темные тона и добавляет уюта.

Портфолио Remplanner
Портфолио Remplanner

Что можно сказать в заключение? Это одна из самых комфортных с точки зрения организации жизни и быта «однушек». Да, для семьи с детьми всё ещё не лучший вариант, хотя, согласитесь, здесь было бы куда проще разместиться, но вот для постоянного проживания одного или двух человек – здесь есть всё необходимое, в том числе свободное пространство, где можно уединиться или принять большую компанию друзей!

Больше разных проектов вы найдете в нашем портфолио, а если вы хотите получить индивидуальный проект вашей квартиры или дома – оставляйте заявку на нашем сайте или по телефону!