Добавить в корзинуПозвонить
Найти в Дзене
DIVAN.RU

ДО/ПОСЛЕ: переделали «уставшую» однушку в уютное гнездышко с контрастной отделкой

Владелица этой квартиры долгое время жила в другой стране, а квартиру сдавала в аренду. За несколько лет ремонт хорошо «подустал». Техника и сантехника не обслуживались, были грязными. Отделка местами была повреждена, к тому же, морально устарела. Решено было делать капитальный ремонт. Об объекте: однокомнатная квартира 34 кв.м в г. Санкт-петербург Автор проекта: дизайнер Наталия Ставратий Ограничений в плане конструктива не было, но были ограничения по бюджету. Исходные границы помещений сохранили, перенесли только дверной проем в прихожей, за счет чего получилось выделить место для шкафа. Установили дверь в кухню вместо арочного проема. Дверь улучшает шумоизоляцию, предотвращает попадание запахов из кухни в комнату. Стиральную машину оставили в кухне, радиаторы отопления и сантехнику частично оставили от прежнего ремонта. Стены в квартире выровняли, для отделки выбрали антивандальную краску — за таким покрытием легче всего ухаживать, а при необходимости стены легко перекрасить. В ком
Оглавление

Владелица этой квартиры долгое время жила в другой стране, а квартиру сдавала в аренду. За несколько лет ремонт хорошо «подустал». Техника и сантехника не обслуживались, были грязными. Отделка местами была повреждена, к тому же, морально устарела. Решено было делать капитальный ремонт.

Автор проекта: дизайнер Наталия Ставратий, автор фото: Андрей Усачев
Автор проекта: дизайнер Наталия Ставратий, автор фото: Андрей Усачев

Об объекте: однокомнатная квартира 34 кв.м в г. Санкт-петербург

Автор проекта: дизайнер Наталия Ставратий

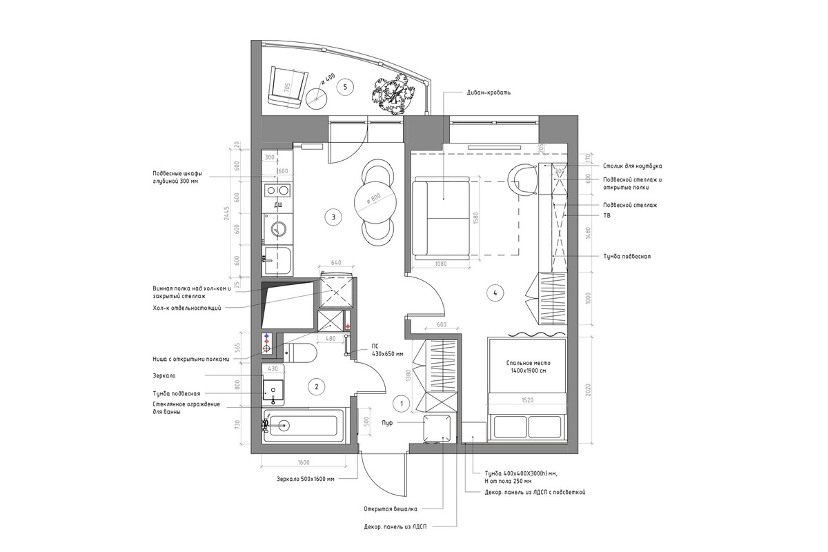
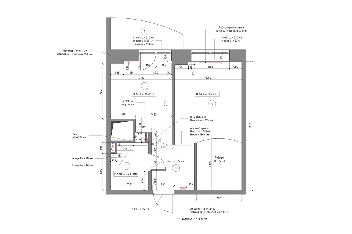
Планировочное решение

Ограничений в плане конструктива не было, но были ограничения по бюджету. Исходные границы помещений сохранили, перенесли только дверной проем в прихожей, за счет чего получилось выделить место для шкафа. Установили дверь в кухню вместо арочного проема. Дверь улучшает шумоизоляцию, предотвращает попадание запахов из кухни в комнату. Стиральную машину оставили в кухне, радиаторы отопления и сантехнику частично оставили от прежнего ремонта.

Комната

Состояние комнаты ДО ремонта
Состояние комнаты ДО ремонта

Стены в квартире выровняли, для отделки выбрали антивандальную краску — за таким покрытием легче всего ухаживать, а при необходимости стены легко перекрасить.

В комнате уже была ниша для спальной зоны. Стены внутри выкрасили в темно-серый оттенок. От основного пространства импровизированную спальню отделили шторой. Кровать выбрали с подъемным механизмом и бельевым ящиком. Для удобства нишу оснастили подсветкой и парой бра с обеих сторон от кровати.

Обратите внимание: стену за изголовьем задекорировали ЛДСП-панелями. Они выполняют роль изголовья и защищают стену от повреждений и загрязнения.

Диван Ольен Мини от бренда divan.ru имеет приятный бонус в механизме раскладывания — он двухсекционный: можно выдвинуть только одну половинку и вытянуть ноги перед телевизором. Обивку выбрали в онлайн-конструкторе: износостойкую и с функцией легкой очистки. Отдельно стоит сказать о габаритах: 158 см в ширину — впишется в любое пространство.

➡️В кадре диван Ольен Мини от бренда divan.ru >>

💥Этот диван сейчас можно купить со скидкой до 23 000₽*. Выбирайте мебель и аксессуары по выгодным ценам на распродаже в divan.ru

-6

Система хранения с фасадами в цвет стен состоит из тумбы и шкафа с дверцами, открытых полок и макияжного столика, который при необходимости можно использовать в качестве рабочего места. Получилась функциональная мебельная стенка.

Кухня

Состояние комнаты ДО ремонта
Состояние комнаты ДО ремонта

Верхние шкафы гарнитура в кухне выполнены в светлом оттенке, нижние поддерживают цвет спальной зоны в комнате и создают нужный акцент в помещении. Над холодильником — шкаф для хранения вина. За дверцами одного из нижних шкафов скрыта стиральная машина (листайте галерею). Гарнитур оборудовали подсветкой рабочей зоны, встроенной в профиль Gola.

Обеденную зону выделили светом — на стену повесили бра. Круглый стол в дубовом шпоне дополнили стульями с основанием из фанеры. Окно закрыли шторами легкой фактуры с натуральным эффектом и приятной тактильностью.

Прихожая

Состояние прихожей ДО ремонта
Состояние прихожей ДО ремонта

На пол в прихожей уложили керамогранит, который контрастирует с напольным покрытием в других комнатах. Между распашным шкафом и стеной оставили пространство для штанги, на которой будет удобно сушить верхнюю одежду в сырую погоду. Для удобства предусмотрели пуф и зеркало с подсветкой, которое можно оставлять включенным вечером для дополнительного освещения вместо яркого верхнего света. Встроенная подсветка присутствует в панелях, освещает темную нишу с вешалкой.

Санузел

Состояние санузла ДО ремонта
Состояние санузла ДО ремонта

В качестве базы для стен выбрали краску насыщенного цвета, которая не боится влаги. Мокрые зоны облицевали светлой керамической плиткой с серой затиркой.

Для хранения предусмотрели подвесную тумбу.

==========

Оцените интерьер в комментариях, а если материал понравился — не забудьте поставить лайк👍

🖤divan.ru — не только блог про интерьеры, но и производитель доступной дизайнерской мебели. Ищите новые идеи и переходите на сайт, чтобы воплотить их в жизнь.

*Цены актуальны на момент публикации статьи