Добавить в корзинуПозвонить
Найти в Дзене

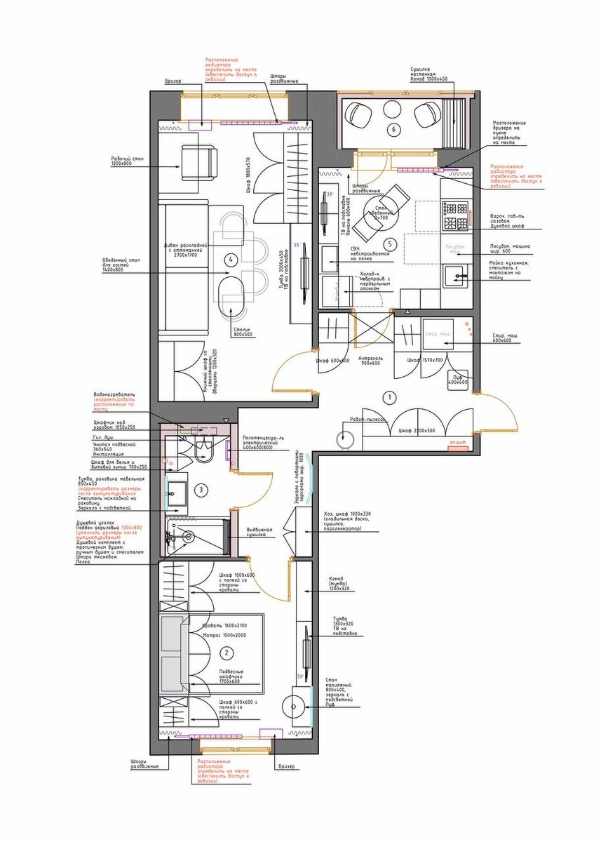
Объединить кухню и гостиную

Объединить кухню и гостиную Таким было первое пожелание в проекте двушки киевской планировки. Я всегда за любую идею клиента. Но давайте разберемся, возможно ли такое в этом типе постройки. Стена является несущей. При большом желании можно заказать проект проема с укреплением швеллерной рамой. Проем будет шириной 90-120 см и с отступом от угла около 1 метра. К тому же, раму предстоит облагородить. Ибо вид у нее так себе ⬆️ 👉 Газовое оборудование обязывает вдобавок установить двери или стеклянную перегородку в этом проеме. Очарование идеей совмещенного пространства не выдержало такого количества предстоящих манипуляций ради неполноценного проема, и мы с клиентами решили оставить все как есть. Единственную перепланировку мы запроектировали в санузле, сделав его совмещенным. У каждой квартиры свой потенциал. Узнать, как умело задействовать каждый метр пространства, возможно, заказав у меня проект #проект #планировка

Объединить кухню и гостиную

Таким было первое пожелание в проекте двушки киевской планировки.

Я всегда за любую идею клиента. Но давайте разберемся, возможно ли такое в этом типе постройки.

Стена является несущей. При большом желании можно заказать проект проема с укреплением швеллерной рамой. Проем будет шириной 90-120 см и с отступом от угла около 1 метра. К тому же, раму предстоит облагородить. Ибо вид у нее так себе ⬆️

👉 Газовое оборудование обязывает вдобавок установить двери или стеклянную перегородку в этом проеме.

Очарование идеей совмещенного пространства не выдержало такого количества предстоящих манипуляций ради неполноценного проема, и мы с клиентами решили оставить все как есть.

Единственную перепланировку мы запроектировали в санузле, сделав его совмещенным.

У каждой квартиры свой потенциал. Узнать, как умело задействовать каждый метр пространства, возможно, заказав у меня проект

#проект #планировка

-2
-3