Найти в Дзене
СК "ВИ-СТРОЙ"

Секреты удобной планировки: как сделать дом комфортным для жизни?

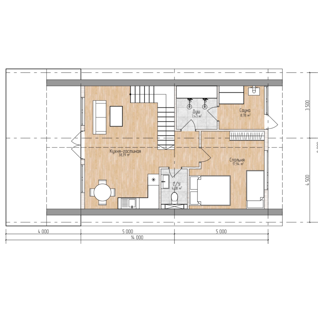
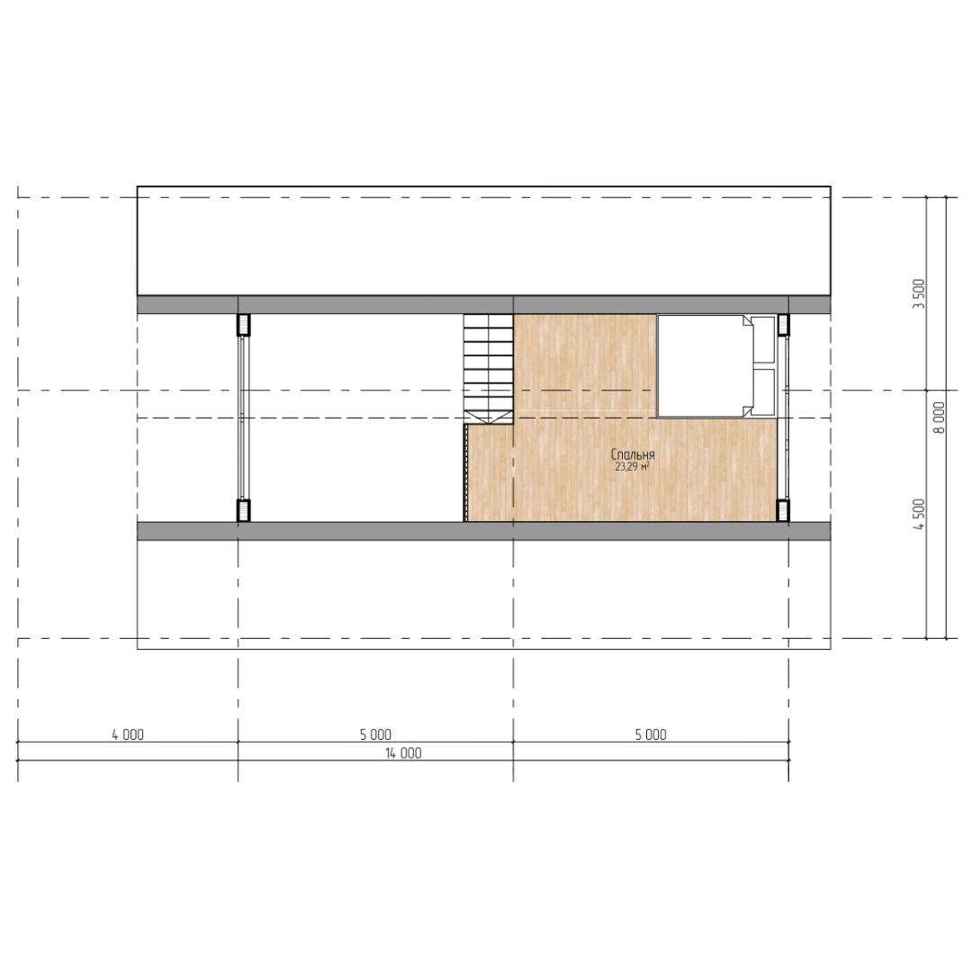
Грамотно спроектированный дом – это не только эстетика, но и комфорт на долгие годы. Продуманная планировка позволяет рационально использовать пространство, создавая уютную и функциональную среду. Разберёмся, на что обратить внимание при планировании. Разделение дома на дневную и ночную зоны повышает удобство проживания. Например, гостиная и кухня располагаются ближе к входу, а спальни – в удалённой части дома, обеспечивая тишину и уединение. Коридоры не должны занимать слишком много места, но при этом их ширина должна быть достаточной для комфортного передвижения. Открытые пространства, объединённые зоны (например, кухня-гостиная) визуально расширяют пространство и делают дом уютнее. Освещение играет ключевую роль в восприятии пространства. Большие окна с правильной ориентацией на стороны света позволяют максимально использовать естественный свет. При этом кирпичные дома под ключ обеспечивают хорошую теплоизоляцию и комфортный микроклимат. При планировании важно предусмотреть места дл
Оглавление

Грамотно спроектированный дом – это не только эстетика, но и комфорт на долгие годы. Продуманная планировка позволяет рационально использовать пространство, создавая уютную и функциональную среду. Разберёмся, на что обратить внимание при планировании.

Оптимальное зонирование пространства

Разделение дома на дневную и ночную зоны повышает удобство проживания. Например, гостиная и кухня располагаются ближе к входу, а спальни – в удалённой части дома, обеспечивая тишину и уединение.

Эргономика и удобство перемещения

Коридоры не должны занимать слишком много места, но при этом их ширина должна быть достаточной для комфортного передвижения. Открытые пространства, объединённые зоны (например, кухня-гостиная) визуально расширяют пространство и делают дом уютнее.

Правильное расположение окон и дверей

Освещение играет ключевую роль в восприятии пространства. Большие окна с правильной ориентацией на стороны света позволяют максимально использовать естественный свет. При этом кирпичные дома под ключ обеспечивают хорошую теплоизоляцию и комфортный микроклимат.

Технические помещения

При планировании важно предусмотреть места для хранения, кладовые и котельную. Например, если Вы рассматриваете строительство дома с рассрочкой, лучше заранее продумать все необходимые инженерные решения и их стоимость, чтобы распределить платежи.

Гибкость планировки

Дом должен адаптироваться под изменяющиеся потребности семьи. Например, дополнительную комнату можно использовать как детскую, гостевую или кабинет в зависимости от этапа жизни.

Продуманная планировка делает дом удобным, комфортным и энергоэффективным. Учитывайте зонирование, эргономику, освещение и технические помещения, чтобы Ваш дом радовал долгие годы!

Хотите построить дом, в котором будут предусмотрены все мелочи? Напишите нам, чтобы получить каталог домов или обсудить индивидуальный проект: https://vk.me/vi_stroi

Рассчитайте стоимость дома и ежемесячный платёж за него: https://vk.cc/cCF8Pr