Найти в Дзене

Проект Root House | Классика

ROOT HOUSE | КЛАССИКА — один из самых востребованных проектов из кирпича среди наших клиентов. Он сочетает в себе стильную архитектуру, продуманную планировку и комфортное пространство для семьи из 4- 6 человек. Элегантный фасад и просторная терраса Этот одноэтажный дом выполнен в сдержанной и стильной палитре — тёплые коричневые и холодные серые оттенки гармонично сочетаются между собой. Фасад украшен деревянными ламелями из термообработанной доски, а по бокам дома расположены элегантные вставки из серого кирпича. Вечерняя подсветка подчёркивает современные линии здания и делает его облик ещё более выразительным. Одной из главных особенностей проекта является просторная терраса площадью 30 м², которая идёт вдоль всего дома. Здесь можно организовать зону отдыха, семейные ужины на свежем воздухе или уютное место для утреннего кофе. Попасть на террасу можно как из просторной кухни-гостиной, так и из одной из детских комнат. Общая площадь дома вместе с террасой составляет 133 м². Функцио

ROOT HOUSE | КЛАССИКА — один из самых востребованных проектов из кирпича среди наших клиентов. Он сочетает в себе стильную архитектуру, продуманную планировку и комфортное пространство для семьи из 4- 6 человек.

Элегантный фасад и просторная терраса

Этот одноэтажный дом выполнен в сдержанной и стильной палитре — тёплые коричневые и холодные серые оттенки гармонично сочетаются между собой. Фасад украшен деревянными ламелями из термообработанной доски, а по бокам дома расположены элегантные вставки из серого кирпича. Вечерняя подсветка подчёркивает современные линии здания и делает его облик ещё более выразительным.

Одной из главных особенностей проекта является просторная терраса площадью 30 м², которая идёт вдоль всего дома. Здесь можно организовать зону отдыха, семейные ужины на свежем воздухе или уютное место для утреннего кофе. Попасть на террасу можно как из просторной кухни-гостиной, так и из одной из детских комнат.

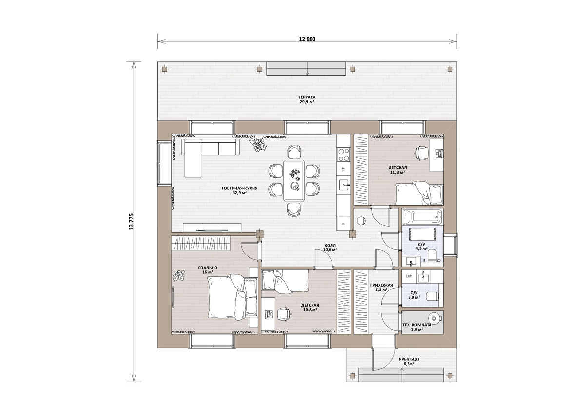
Общая площадь дома вместе с террасой составляет 133 м².

Функциональная и удобная планировка

Зайдём внутрь и прогуляемся по дому:

-2

Вход начинается с крыльца, откуда мы попадаем в прихожую. Здесь предусмотрено место для шкафа и хранения верхней одежды.

Из прихожей есть доступ к санузлу и техническому помещению, где можно разместить стиральную машину и инженерные коммуникации.

Далее мы оказываемся в холле, который соединяет все основные комнаты дома.

  • Здесь находится ещё один санузел с ванной – удобное решение для семьи с детьми.
  • Из холла можно пройти в две детские комнаты – уютные, светлые, с местом для игр и учёбы.
  • Отсюда же есть вход в родительскую спальню, где можно обустроить идеальное пространство для отдыха.

Главным сердцем дома является кухня-гостиная- место, где семья может собираться вместе, готовить ужин, встречать гостей. Большие окна наполняют пространство светом, а из кухни есть выход на просторную террасу – идеальное место для летнего отдыха.

Почему клиенты выбирают этот проект?

Удобная планировка – четкое зонирование для комфортной жизни семьи.

Стильный дизайн экстерьера – дом выделяется среди соседей благодаря элегантному сочетанию оттенков и современной подсветке.

Просторная терраса 30 м²- идеальное место для летнего отдыха, семейных вечеров и уютных завтраков на свежем воздухе.

Функциональные помещения – продуманные технические и жилые зоны.

Уют и комфорт – одноэтажный дом без лестниц, удобный для всех возрастов.

Хотите жить в доме мечты, который сочетает уют, стиль и продуманность?

Напишите нам- обсудим детали и сделаем ваш идеальный дом реальностью!