Найти в Дзене
ЭТО ВАШ ИНТЕРЬЕР

Мне в наследство от бабушки досталась старая хрущевка. Она была потрепанной, поэтому пришлось всё переделывать. Смотрите, как я здесь живу

Меня зовут Александра Крючкова, и я — дизайнер интерьеров. Сегодня я хочу рассказать вам о том, как из обычной советской квартиры со старым ремонтом в хрущёвке мы создали современное и функциональное пространство. Наша история началась в доме 1963 года постройки в районе Москвы Хорошево-Мневники. Здесь проживает Марина — моя клиентка, её молодой человек и кошка. Общая площадь квартиры составляет 46 квадратных метров. Марина получила эту квартиру в наследство от своих бабушки и дедушки. Наша задача состояла в том, чтобы превратить советский интерьер — в чистое и современное пространство, сохранив при этом дух того времени. Для этого нам необходимо было сделать перепланировку. Начнём с кухни. Изначально вход на кухню находился за холодильником, и из прихожей выходил небольшой коридор. Мы решили избавиться от этого коридора и сделать вход на кухню через гостиную. В результате кухня стала довольно просторной, так как столовая зона была перенесена в гостиную. В результате мы получили светло
Оглавление

Меня зовут Александра Крючкова, и я — дизайнер интерьеров. Сегодня я хочу рассказать вам о том, как из обычной советской квартиры со старым ремонтом в хрущёвке мы создали современное и функциональное пространство.

Наша история началась в доме 1963 года постройки в районе Москвы Хорошево-Мневники. Здесь проживает Марина — моя клиентка, её молодой человек и кошка. Общая площадь квартиры составляет 46 квадратных метров.

Марина получила эту квартиру в наследство от своих бабушки и дедушки. Наша задача состояла в том, чтобы превратить советский интерьер — в чистое и современное пространство, сохранив при этом дух того времени. Для этого нам необходимо было сделать перепланировку.

Проект

  • Местоположение: Москва
  • Площадь квартиры: 46 квадратных метров
  • Владельцы: молодая пара с кошкой
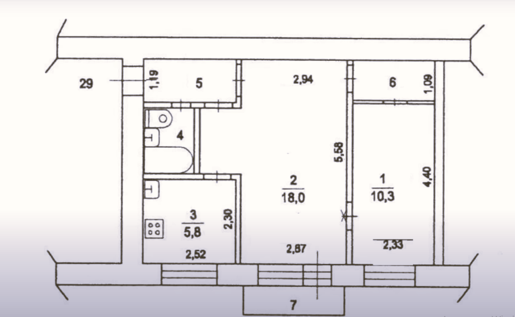
Исходная планировка
Исходная планировка

Кухня

Начнём с кухни. Изначально вход на кухню находился за холодильником, и из прихожей выходил небольшой коридор. Мы решили избавиться от этого коридора и сделать вход на кухню через гостиную.

-3

В результате кухня стала довольно просторной, так как столовая зона была перенесена в гостиную. В результате мы получили светлое и чистое пространство. Чтобы облегчить пребывание на кухне, мы не стали устанавливать шкафы над рабочей зоной по всему периметру. При этом все необходимое для готовки уместилось.

-4

Фасады выполнены симметрично, а за ними расположилась посудомоечная машина. Мы установили большую мойку из искусственного камня светлого цвета, которая уже больше года отлично справляется со своей работой. Газовая плита компактная, а под ней находится духовой шкаф.

Для отделки стен мы использовали моющуюся краску — отличное решение для кухни. Потолок выполнен из бетона и также окрашен. На полу у нас плитка. Фартук выполнен из плитки, но он не полноценный по высоте, так как заказчица нечасто готовит. Столешница выполнена из дуба и покрыта маслом. Как видите, за год эксплуатации с ней ничего не случилось. Сам гарнитур выполнен на заказ.

Поскольку у нас газовая плита, при перепланировке необходимо было изолировать кухню от гостиной, чтобы согласовать изменения. Мы нашли прекрасное решение в виде красивой перегородки, которая создаёт атмосферу парижской квартиры.

-7

Перегородка выполнена из массива, также на заказ. Хотя она не так часто закрывается, она служит не только для зонирования, но и прекрасно дополняет интерьер. Подоконники также сделаны из дуба и покрыты маслом.

Гостиная-столовая

Из кухни мы попадаем в столовую, которая является частью гостиной. Вокруг элегантного круглого стола мы решили расставить разные стулья. Мы визуально зонировали столовую группу, разместив её на ковре. Над столом висит красивая блестящая люстра. Подоконники также выполнены из дуба.

На балконе мы перекрасили старую вагонку в белый цвет и дополнили её плинтусом. Здесь же находится шкаф, который обеспечивает все необходимые места для хранения. А еще здесь нашлось пространство для утренней чашечки кофе в тёплую погоду.

На полу у нас паркет «ёлочка». Мы очень хотели сохранить старый паркет, но, к сожалению, в процессе перепланировки и перестройки нам это не удалось. Однако мы создали его весьма бюджетно с помощью наших замечательных строителей. Стыки напольных покрытий из дуба и плитки мы выполнили с помощью пробкового компенсатора.

-10

В результате перепланировки на месте коридора на кухню теперь находится встроенный хозяйственный шкаф. Ручки в виде прекрасных львов также достались нам по наследству от бабушки. Мы очистили их, слегка подкрасили, и теперь они стали прекрасным дополнением к интерьеру.

-11

Стены в гостиной мы выкрасили моющейся краской. Хочу обратить ваше внимание на стену возле входа. Это фактически открытое хранилище. Мы подсмотрели в скандинавских интерьерах стеллажи и решили сделать что-то похожее. Мы использовали направляющие для открытой системы хранения.

-12

Направляющие мы покрасили в сложный золотисто-латунный цвет и разместили на них дубовые полки. Здесь хранится всё ценное и важное для хозяйки. Также вы могли бы обратить внимание, что у нас здесь расположены ресивер и проектор.

-13

Над окном у нас был экран проектора. Также здесь есть колонки, которые подключены к ресиверу. Люстра может отодвигаться к стене, и тогда, сидя на диване, вы можете наслаждаться просмотром любимых фильмов. Напротив открытых стеллажей расположился кривой и удобный диван с латунными ножками.

-14

Прихожая

Как и в гостиной, здесь у нас есть шкаф для верхней одежды и обуви, который расположен у входа. Чтобы не перегружать интерьер, мы специально подобрали фасады в цвет стен. Эта лесенка уже пережила ремонт, мы очистили её и покрасили ножки.

-15

На входной двери вы можете увидеть необычную конструкцию. Это замок, который достался нам в наследство от дедушки, и мы очень хотели сохранить его и даже выделить. Мы также очистили и покрасили замок в его первоначальный цвет.

-16

Сама дверь, как и стены, имеет сложный синий оттенок, который создаёт контрастный и стильный акцент в интерьере. На стене повесили компактное зеркало.

-17

Спальня

Сейчас мы находимся в спальне. Хочу обратить ваше внимание на двери — они немного выше обычного, что визуально делает потолок более высоким. На полу у нас паркет, уложенный елочкой.

Вход в спальню был немного смещён относительно первоначального положения, и гардеробная, скрытая за дверями, раньше была чуть меньше. Однако она была оборудована ещё с хрущёвских времён.

-18

На потолке расположены точечные накладные светильники. Над кроватью висит прекрасная люстра ручной работы из бисера, за которой мы долго охотились. Кровать стандартная, из Икеи, без подъёмного механизма, но, учитывая наличие отдельной гардеробной и хозяйственного шкафа, это не так уж и важно.

-19

Рядом с кроватью висит подвесная прикроватная тумба, а также зеркало, на которое вы можете посмотреть, выйдя из гардеробной. Рядом расположено винтажное кресло. Шторы мы также купили в Икее, но решили их усложнить и добавить строчку.

-20

Справа от кровати стоит интересный стеклянный столик, который визуально не перегружает помещение, но при этом выполняет свою функцию. Как вы могли заметить, здесь нет батареи — она была встроена в стену ещё на этапе строительства дома.

-21

Гардеробная

Мы установили в гардеробной высокие жалюзийные двери, изготовленные по индивидуальному заказу. Системы хранения, которые мы использовали, были куплены в магазине Икеа. В основном это открытые полки, а также закрытые выдвижные ящики для белья и других вещей.

-22

Чтобы было удобно доставать до верхних полок, мы установили небольшую лесенку. Также в гардеробной нашлось место для чемоданов. В потолке расположены накладные светильники, которые можно поворачивать, чтобы осветить нужную зону.

-23

Ванная комната

На полу у нас уложена плитка, продолжающая мотивы, использованные в прихожей. На стенах мы применили водостойкую краску и также плитку. Как вы могли заметить, плитка не доходит до потолка, что позволило нам сэкономить на материалах. Полотенцесушитель у нас водяной, выполненный в белом цвете.

-24

В зоне душевой мы установили эффектную и достаточно бюджетную перегородку из стеклоблока. Это решение не только практично и функционально, но и отсылает нас к стилю 60-х годов, который был весьма популярен в то время.

-25

Стиральная машина у нас установлена под столешницей, из-за чего высота столешницы получилась высокой, но удобной. Сама столешница выполнена из дуба и покрыта маслом, что до сих пор позволяет ей выглядеть презентабельно.

-26

Под столешницей находятся строгие ящики с отделениями для хранения. Здесь предусмотрен выпил под сифон и достаточно места для размещения всех необходимых порошков и бытовой химии.

-27

Под шкафами расположена корзина для белья, а для нашей любимой кошки предусмотрен лоток. На потолке установлены накладные влагозащищенные светильники, приобретенные в Икее.

-28

Если вам понравилась статья, то не забудьте поставить лайк и подписаться, чтобы не пропустить новый материал!

Так же пишите в комментариях, что вам понравилось в этом проекте, а что вызывает сомнения.