Найти в Дзене
Сантехника-Онлайн

ДО / ПОСЛЕ. Превратили квартиру без стен в трешку мечты

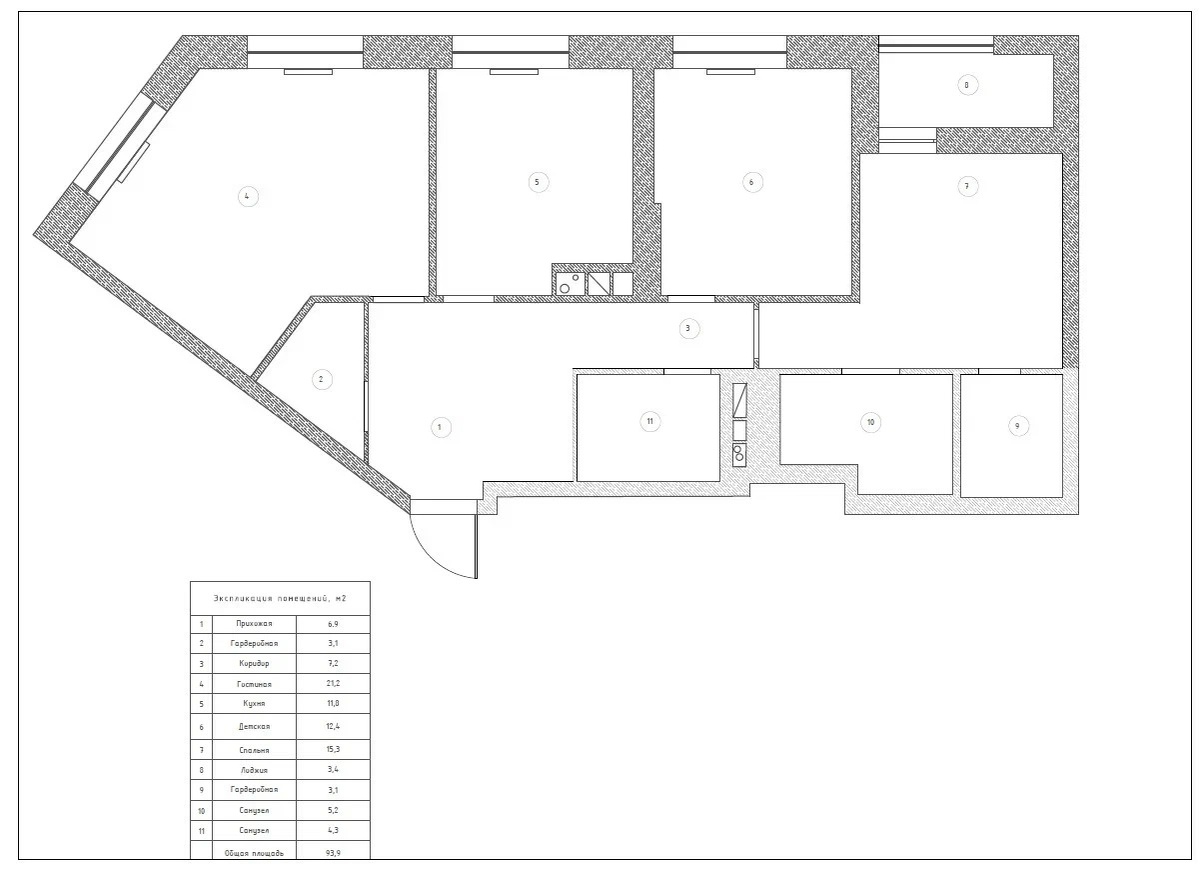
В этой квартире площадью 94 кв. м совсем не было стен. Они существовали исключительно на чертежах застройщика. Много проблем дизайнеру Наталье Распоповой доставила кухня-гостиная неправильной формы с тремя окнами. Специально под нее изготовили круглый обеденный стол, который скрыл неудачную планировку. Всю мебель для квартиры изготовили на заказ, а еще использовали несколько удачных технических решений — шторы в комнатах открываются автоматически, а приточно-вытяжная вентиляция спрятана за гипсовыми карнизами. Подробнее о каждой комнате рассказали в этой статье. Теперь переходим к истории перепланировки. Квартира передавалась застройщиком без внутренних стен и отделки. Перегородки существовали только на планах. Поэтому вначале их возвели по чертежам, а потом сделали и узаконили перепланировку, чтобы учесть пожелания заказчиков. Так квартира с черновой отделкой стала полноценной трешкой: с мастер-спальней, детской, кухней-гостиной, двумя санузлами и двумя гардеробными. Световое решение
Оглавление

В этой квартире площадью 94 кв. м совсем не было стен. Они существовали исключительно на чертежах застройщика. Много проблем дизайнеру Наталье Распоповой доставила кухня-гостиная неправильной формы с тремя окнами. Специально под нее изготовили круглый обеденный стол, который скрыл неудачную планировку. Всю мебель для квартиры изготовили на заказ, а еще использовали несколько удачных технических решений — шторы в комнатах открываются автоматически, а приточно-вытяжная вентиляция спрятана за гипсовыми карнизами.

Подробнее о каждой комнате рассказали в этой статье. Теперь переходим к истории перепланировки.

Перепланировка

До перепланировки
До перепланировки

Квартира передавалась застройщиком без внутренних стен и отделки. Перегородки существовали только на планах. Поэтому вначале их возвели по чертежам, а потом сделали и узаконили перепланировку, чтобы учесть пожелания заказчиков. Так квартира с черновой отделкой стала полноценной трешкой: с мастер-спальней, детской, кухней-гостиной, двумя санузлами и двумя гардеробными.

После перепланировки
После перепланировки

Особенности квартиры

Световое решение проекта многоуровневое, задействованы изящные хрустальные люстры, точечные светильники и бра. Люстры украшают помещения, но совершенно их не перегружают, выглядят воздушно.

-4

В отделке стен и пола использовали натуральные материалы. Стены покрасили экологичной краской английского бренда, пол оформили инженерной доской, выложенной «французской елкой». Подоконники изготовили из натурального мрамора.

-5

Вся встроенная мебель в квартире уникальна — спроектирована и изготовлена на заказ под объект. Мебель подогнана под потолок, специально под нее были сделаны инженерные опуски, обрамленные гипсовыми карнизами.

-6

Межкомнатные двери высотой 260 см придают соразмерность пространству.

Кухня-гостиная

-7
Процесс возведения стен в кухне-гостиной
Процесс возведения стен в кухне-гостиной

Кухня-гостиная была неправильной формы, с непрямым углом, занятым тремя окнами. Конфигурацию комнаты получилось обыграть, разделив помещение на три полноценные зоны: кухню с островом, обеденную группу и гостиную для комфортного отдыха.

-9

Учитывая особенность помещения — угол в 125 градусов в центральной части — в обеденной зоне установили круглый стол, изготовленный на заказ. Подстолье выполнили в виде рифленой опоры в цвет патины, используемой в окраске мебели, а столешницу сделали из цельного слэба керамогранита.

-10
-11

Спальня и лоджия

Процесс возведения стен в спальне
Процесс возведения стен в спальне

В мастер-спальне был предусмотрен выход на лоджию. По пожеланию заказчика лоджию утеплили и отделили от комнаты раздвижными стеклянными перегородками в латунном профиле. Такое решение визуально добавило простора и света в спальню. В получившемся помещении организовали кабинет с письменным столом и крутящимся креслом.

-13
-14

Детская

Процесс возведения стен в детской
Процесс возведения стен в детской

Детскую проектировали так, чтобы она была удобна для ребенка восьми лет и в будущем подростка. Есть рабочая зона, кровать и просторная гардеробная. Основные цвета отделки — песочный, терракотовый и графитовый.

-16
-17

Технические лайфхаки

  • Трубы приточно-вытяжной вентиляции аккуратно скрыли за гипсовыми карнизами с вентиляционными отверстиями.
  • Люки для обслуживания вентиляционных блоков разместили в гардеробных комнатах, что заметно снизило шум работы техники.
  • Шторы можно открывать и закрывать буквально по щелчку клавиши выключателя.
-18
-19

Вот такое интересное прошлое у этой элегантной трешки в ЖК «Серебряный фонтан». Еще больше примеров ДО / ПОСЛЕ вы найдете в разделе «Лови инсайт». Здесь дизайнеры делятся своими лучшими проектами — есть что взять на заметку!

Источник: https://santehnika-online.ru/wiki/dizajn/do-posle-prevratili-kvartiru-bez-sten-v-treshku-mechty/?utm_source=dzen&utm_medium=social&utm_campaign=ideas