Найти в Дзене

Дома из бруса: варианты проектов от компании «Пионер»

Думаете о том, чтобы построить дом из бруса? Отличный выбор!
Вот несколько преимуществ деревянного домостроения: Немного о планировке дома, что на картинке выше: Еще один достойный проект нашей компании из бруса. Для тех, кто хочет площадь поменьше: Немного о планировке дома: Давайте рассмотрим еще дом одноэтажный. Их сейчас выбирают чаще. Предлагаем вам присмотреться к такому проекту от нашей компании: Проект 1004 — это уютный одноэтажный дом, площадью 72 квадратных
метра. Идеальный вариант для тех, кто планирует проживать небольшой
семьей. Немного о планировке дома: Больше планировок вы можете найти на нашем сайте, вот тут: https://pioneer-sk.ru/product/doma-iz-kleenogo-brusa/ Если у вас есть вопросы, пишите в комментариях. Наши специалисты отправят вам презентацию любого проекта.

Думаете о том, чтобы построить дом из бруса? Отличный выбор!
Вот несколько преимуществ деревянного домостроения:

  1. Дом из бруса выдерживает любые климатические изменения.
  2. Легкая конструкция постройки позволит вам сэкономить на фундаменте при строительстве деревянного дома.
  3. Деревянное домостроение не требует внешней и внутренней отделки, так как само по себе выглядит эстетично.

Немного о планировке дома, что на картинке выше:

  • на первом этаже располагается просторная кухня-гостиная для того, чтобы собраться всей семьей и с комфортом провести время
  • санузел, котельная, гостевая комната также размещаются на первом этаже дома
  • на втором этаже — три спальни с отдельным входом для каждой и санузел.

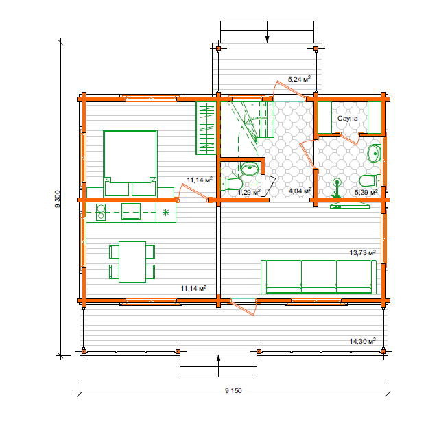
Еще один достойный проект нашей компании из бруса. Для тех, кто хочет площадь поменьше:

Немного о планировке дома:

  • помещение для сауны — прямо в доме
  • кухня-гостиная — 11,14 кв.м
  • две комнаты: спальня и гостевая
  • два санузла, один совмещен с сауной
  • терраса — 14 кв.м

Давайте рассмотрим еще дом одноэтажный. Их сейчас выбирают чаще. Предлагаем вам присмотреться к такому проекту от нашей компании:

Проект 1004 — это уютный одноэтажный дом, площадью 72 квадратных
метра. Идеальный вариант для тех, кто планирует проживать небольшой
семьей.

Немного о планировке дома:

  • кухня со свободным выходом в гостиную
  • три комнаты с отдельным входом для каждой
  • небольшая терраса для любителей быть на свежем воздухе
  • один санузел

Больше планировок вы можете найти на нашем сайте, вот тут: https://pioneer-sk.ru/product/doma-iz-kleenogo-brusa/

Если у вас есть вопросы, пишите в комментариях. Наши специалисты отправят вам презентацию любого проекта.