Найти в Дзене
Мегалюкс Маркетинг

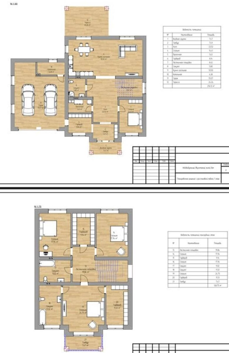
Дом от ДСК-АДАМ 300 м2

2-этажный коттедж с гаражом на 2 машины общей площадью 300 м2
- гараж
- котельная
- прихожая
- гардероб
- кухня-гостиная
- спальня
- спальня
- санузел
- кабинет
- балкон
- ванная комната
- коридор
Панорамные окна.
Стены возведены из керамзитобетонного блока толщиной 300 мм.
Фасад выполнен из облицовочного кирпича (баварская кладка).
Проект дома от ДСК-АДАМ 300 м2
-2

2-этажный коттедж с гаражом на 2 машины общей площадью 300 м2
- гараж
- котельная
- прихожая
- гардероб
- кухня-гостиная
- спальня
- спальня
- санузел
- кабинет
- балкон
- ванная комната
- коридор
Панорамные окна.
Стены возведены из керамзитобетонного блока толщиной 300 мм.
Фасад выполнен из облицовочного кирпича (баварская кладка).