Найти в Дзене

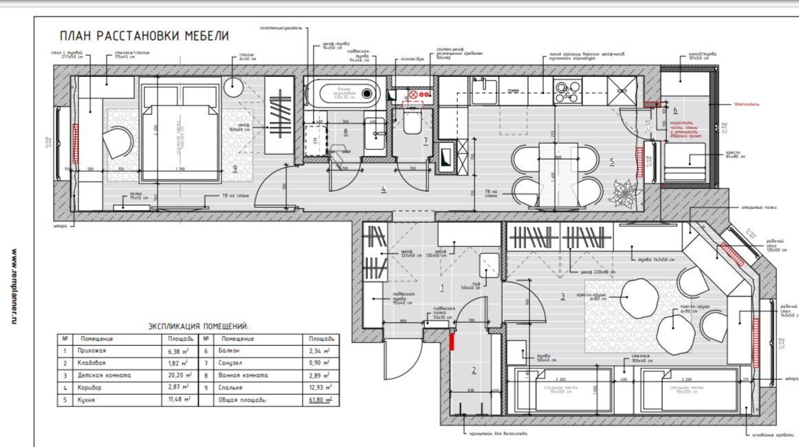
2-комнатная квартира 62 м2 для семьи с двумя детьми!

Наш новый проект – это квартира для четверых человек, двое взрослых и двое детей. Комнат только две, нужно было правильно распорядиться пространством. Изначальная архитектура дома не предполагала перепланировки. Как видите, большая из двух комнат была отдана детям, и это разумно, ведь ребенку комната необходима не только для сна. Это и игровая, и комната, где ребенок делает уроки, там же он принимает своих маленьких гостей. Площадь в 20 м2 и два окна позволили достаточно комфортно распределить мебель. Рабочие зоны расположились у окна, вдоль одной стены – хранения, вдоль другой – спальная зона. Между кроватями расположен стеллаж для книг, он сочетает в себе функцию хранения и служит для зонирования. Причем доступ к содержимому стеллажа возможен с трех сторон. Еще два стеллажа находятся в торце каждого рабочего стола. В центре комнаты большой ковер с мягким, но невысоким ворсом, и пара бинбегов – это игровое пространство. Зона хранения разделена на две части. Во-первых, это два одинаков

Наш новый проект – это квартира для четверых человек, двое взрослых и двое детей. Комнат только две, нужно было правильно распорядиться пространством. Изначальная архитектура дома не предполагала перепланировки.

Портфолио Remplanner
Портфолио Remplanner

Как видите, большая из двух комнат была отдана детям, и это разумно, ведь ребенку комната необходима не только для сна. Это и игровая, и комната, где ребенок делает уроки, там же он принимает своих маленьких гостей.

Портфолио Remplanner
Портфолио Remplanner

Площадь в 20 м2 и два окна позволили достаточно комфортно распределить мебель. Рабочие зоны расположились у окна, вдоль одной стены – хранения, вдоль другой – спальная зона.

Портфолио Remplanner
Портфолио Remplanner

Между кроватями расположен стеллаж для книг, он сочетает в себе функцию хранения и служит для зонирования. Причем доступ к содержимому стеллажа возможен с трех сторон. Еще два стеллажа находятся в торце каждого рабочего стола. В центре комнаты большой ковер с мягким, но невысоким ворсом, и пара бинбегов – это игровое пространство.

Портфолио Remplanner
Портфолио Remplanner

Зона хранения разделена на две части. Во-первых, это два одинаковых отсека для одежды, по одному на каждого ребенка. Вверху штанги, внизу полки и ящики. Плюс антресоли для сезонных вещей. Во-вторых, зона с телевизором, над которой также есть антресоли, а внизу ящики для игрушек.

Портфолио Remplanner
Портфолио Remplanner

Цвет стен единый во всей квартире, различаются только акценты. Светлый серо-бежевый оттенок краски в сочетании с белой мебелью расширяет пространство, плюс это достаточно практичный цвет в плане уборки.

Гостиной в квартире нет, но есть относительно большая кухня – её площадь 11,5 м2. За счет угловой конфигурации удалось получить достаточно комфортную и функциональную кухню с полным набором встроенной техники и достаточной площадью рабочей поверхности.

Портфолио Remplanner
Портфолио Remplanner

Выступ с вентиляционной шахтой занимает неглубокий шкаф, одна его часть состоит из декоративного стеллажа контрастного черного цвета (как и цоколь кухни) и закрытого шкафа. Его размеры вполне позволяют хранить кухонные салфетки, полотенца, специи и многое другое, для чего всегда требуется место.

Стену в кухне мы оформили вставками гипсовых панелей с вертикальными линиями, этот декоративный прием разбавляет плоскость, делает интерьер выразительнее, при этом это не самое дорогое решение. К тому же в кухне нет двери и сам проем отсутствует, то есть нет притолоки, это визуально увеличивает площадь кухни. Спастись от шума и запахов в комнатах позволяют их межкомнатные двери.

Из кухни можно попасть на небольшую лоджию, где на 2,3 м2 разместилась маленькая зона отдыха и уединения. Просто уютное кресло в углу и небольшой шкаф напротив.

Портфолио Remplanner
Портфолио Remplanner

Прямо напротив кухни в узком коридоре расположена спальня родителей, ее площадь 12,9 м2, и, кроме спальни, она также служит рабочим пространством в дневное время.

Портфолио Remplanner
Портфолио Remplanner

Рабочая зона расположена вдоль окна и занимает всё пространство стены с окном. Это консоль с выдвижными ящиками и стеллаж справа, а тумба слева. Кстати, стеллаж спроектирован так, что плавно переходит в прикроватную тумбу, а с другой стороны роль тумбы играет изящный круглый столик. Это неплохое решение для ограниченных пространств.

Портфолио Remplanner
Портфолио Remplanner

Шкаф на 2 секции находится справа от двери. Напротив кровати нет комода или тумбы, так как пространство от стены до изножья и так минимальное.

Портфолио Remplanner
Портфолио Remplanner

Две другие двери в квартире – это ванная и санузел. Площадь их невелика, и объединение никак бы не улучшило ситуацию, только создало бы проблемы, все-таки в квартире 4 человека.

Портфолио Remplanner
Портфолио Remplanner

Вентиляционная шахта и коммуникации позади инсталляции не оставили шансов даже на крохотную раковину в углу на входе. Свободного пространства всего 0,9 м2, при этом ширина всего 90 см. Кстати, кроме труб и счётчиков внутри шкафа над чашей унитаза скрывается водонагреватель, обеспечивающий горячей водой и кухню, и ванную.

Портфолио Remplanner
Портфолио Remplanner

Ванная комната площадью 2,9 м2 своей планировкой знакома многим. Центральное место занимает ванна размером 170х70 см, слева от входа стиральная машина, а справа тумба с умывальником. Классика!

Портфолио Remplanner
Портфолио Remplanner

Тумба имеет максимально возможную ширину и глубину (до стиральной машины 76 см), а от воды ее призвана спасти штора. Использование стеклянного ограждения в такой ванной комнате было бы достаточно неудобным решением – оставалось бы мизерное пространство для пролезания в ванну.

Портфолио Remplanner
Портфолио Remplanner

Естественно, пространство над стиральной машиной также использовано максимально. Шкаф рядом с машиной и навесной шкафчик сверху сделаны из влагостойких материалов. Однако от прямого попадания воды нуждаются в защите, здесь опять же помогает штора. Полотенцесушитель, чтобы разместить всё задуманное, пришлось переместить на территорию ванны.

Портфолио Remplanner
Портфолио Remplanner

Закончим мы на прихожей, которая здесь довольно просторная, при этом проходная, и это создает некоторую проблему. Всю грязную зону мы разместили максимально близко к входной двери и на удалении от маршрута движения из коридора с кухней и санузлами.

Портфолио Remplanner
Портфолио Remplanner

Пространство большое, но проходное, однако почти все свободные стены мы заняли шкафами. Кроме тумбы на входе для хранения шапок, шарфов и перчаток, здесь два больших шкафа. Зеркала на боковых стенках немного искажают их размеры и заставляют думать, что они совсем неглубокие.

Портфолио Remplanner
Портфолио Remplanner

Две двери-невидимки – это хозблок и детская. Хозблок ближе ко входу, это помещение для хранения велосипедов, санок, пылесосов и много другого, что есть в каждой квартире. Если бы мы перенесли вход в детскую вправо, то лишились бы места под шкаф – установить его на место нынешней двери не позволила бы соседняя дверь в хозблок. А хранение вещей – это одна из основных проблем в большинстве квартир и даже домов.