Найти в Дзене

Как выглядит готовый дизайн-проект, из чего состоит и для чего нужен? Рассмотрим на конкретном примере.

Что представляет собой работа над дизайном, какие элементы в нее включены, и зачем вообще это необходимо? Что на самом деле получает заказчик по завершению дизайн-проекта. Каким образом оформляется проект дизайна, что он охватывает и с какой целью создается? Изучим на основе реального случая из практики. Дизайн-проект выглядит как презентация будущего интерьера, подкрепленная документами для ремонтных бригад и списком товаров, которые нужны для осуществления дизайна. Некоторые пункты в нем будут отсутствовать, если вы выбрали пакет услуг, в который не входят чертежи и сметы на ремонт с расчетом материалов. Также в зависимости от условий квартиры исключаются планы, в которые не требуется вносить изменения. К примеру, не всегда бывает необходимость в демонтаже и монтаже перегородок или смене радиаторов. Соответственно, эти чертежи в проект не войдут. 1. Обмерочный план Обмерочный план дизайнер составляет в самом начале работы. После выезда на замеры чертит планировку и указывает все техн

Что представляет собой работа над дизайном, какие элементы в нее включены, и зачем вообще это необходимо? Что на самом деле получает заказчик по завершению дизайн-проекта.

Каким образом оформляется проект дизайна, что он охватывает и с какой целью создается? Изучим на основе реального случая из практики.

Дизайн-проект выглядит как презентация будущего интерьера, подкрепленная документами для ремонтных бригад и списком товаров, которые нужны для осуществления дизайна.

Некоторые пункты в нем будут отсутствовать, если вы выбрали пакет услуг, в который не входят чертежи и сметы на ремонт с расчетом материалов.

Также в зависимости от условий квартиры исключаются планы, в которые не требуется вносить изменения. К примеру, не всегда бывает необходимость в демонтаже и монтаже перегородок или смене радиаторов. Соответственно, эти чертежи в проект не войдут.

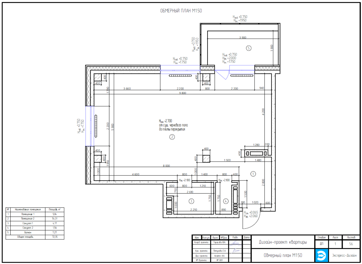
1. Обмерочный план

-2

Обмерочный план дизайнер составляет в самом начале работы. После выезда на замеры чертит планировку и указывает все технические особенности квартиры – радиаторы, вентиляцию, электрику. В дальнейшем на него ориентируются и сам дизайнер, и строители.

Если вы заказываете дизайн-проект удаленно, как это можно сделать в экспресс дизайн, вам вышлют инструкцию для того чтобы самостоятельно снять замеры. Либо предложат подрядчиков, которые занимаются замерами в вашем городе.

-3

2. Планировочный план/ план расстановки мебели

План с габаритами комнаты, на котором схематично показана расстановка всей мебели в квартире: начиная диваном и заканчивая домиком для кошки. Перепланировка выполняется в том случае, если новые хозяева хотят изменить дом под свои потребности и предпочтения. Они обозначают функционал комнат, а дизайнер выполняет зонирование.‌

-4

3. Планировочный план в объеме (3D модель)

Поможет максимально представить ваше спланированное пространство.

-5
-6

4. Планы демонтажа перегородок и вновь возводимых конструкций

-7

После согласования с клиентом, дизайнер решает, какие перегородки нужно разрушить, а какие установить.

-8

5. Планы пола

Этот чертеж необходим строителям для обозначения покрытий пола, а также его уровней. На схеме видно, что в текущем проекте сделали наклон пола в душевой.‌

Отдельная схема требуется для того, чтобы сориентировать, куда класть теплый пол и где выводить датчики.
Отдельная схема требуется для того, чтобы сориентировать, куда класть теплый пол и где выводить датчики.

6. План сантехники

Чтобы сантехник понял, куда нужно вывести воду, и как «спрятать» трубы, дизайнер чертит для него специальную схему.‌

-10

7. Планы электропроводки

Для электрика предназначено несколько планов – для установки светильников и выключателей, а также для розеток.‌

План привязки осветительных приборов
План привязки осветительных приборов
План разводки осветительных приборов
План разводки осветительных приборов
План электрики
План электрики
Палн подогрева теплого пола
Палн подогрева теплого пола

8. План потолков

Рабочая документация по потолкам, где отмечаются уровни, потолочные плинтусы (багеты), материал отделки потолков, места, где проходят коммуникации и прочее.

План потолка
План потолка
Узел крепления натяжного потолка
Узел крепления натяжного потолка

9. Развертки стен

Это схематические чертежи стен. Мы создаем развертки каждой комнаты, где наглядно показаны некоторые предметы мебели, указана покраска, обои или тип покрывающей поверхности. Здесь наглядно видны высоты – расположение картин, декора, бра, электрооборудования, расположения шкафов, полок и тд. Указаны размеры, виды покрытий и тд.

Развертка стен прихожая
 обозначения
Развертка стен прихожая обозначения
Развертка стен прихожая
Развертка стен прихожая
Развертка стен прихожая
Развертка стен прихожая
Развертка стен туалет
Развертка стен туалет
Развертка стен туалет
Развертка стен туалет
Развертка стен ванная
Развертка стен ванная

Развертки занимают самое больше место в проекте, каждая комната показывается детально и к ней прикрепляется ведомость материалов.

В проекте на данную квартиру развертки вышли на 30 листках

Содержание
Содержание

10. Визуализация

-24
-25
-26
-27
-28
-29
-30
-31
-32

В экспресс дизайн стоимость пакета с визуализацией, планировочным решением и рабочей документации – за 39 900 рублей для однокомнатной квартиры. Оставьте заявку на сайте, чтобы рассчитать стоимость дизайн-проекта для вашего дома или офиса.

Заказывая дизайн-проект, вы получаете четкое представление о будущем интерьере дома и стоимости его реализации. А чертежи для строительной бригады с расчетами материалов и списком покупок ускорят и облегчат процесс ремонта.

Чтобы быть уверенным в дизайн-студии, в которую будете обращаться, обязательно посмотрите ее готовые проекты.

Портфолио Экспресс Дизайн точно не оставит вас равнодушным!

+7 (905) 860-79-15

ВК | ТЕЛЕГРАМ