Найти в Дзене

Планировка одноэтажного мини дома с трехслойными кирпичными стенами.

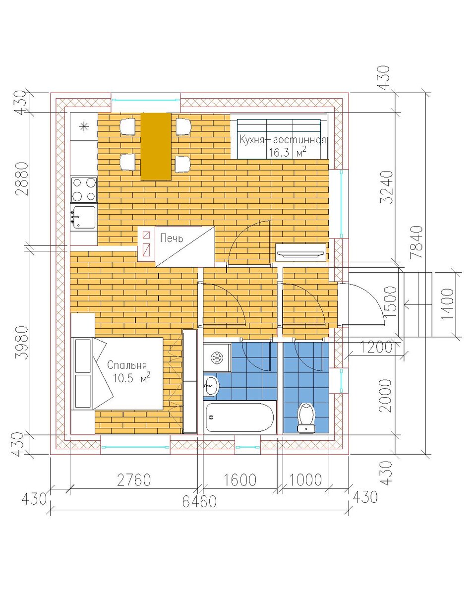
Планировка небольшого и уютного одноэтажный дом 50.65 м2 (7.84на 6.46 м) с одной спальней, кухней – гостинной, двускатной крышей, печным отоплением, один из оптимальных вариантов для проживания семьи из 3 человек. При необходимости часть гостиной можно отгородить мебельной или трансформируемой перегородкой для зоны отдыха или уединения. Пролет дома принят в свету 5600 мм из расчета длины пиломатериалов 6000 мм, во избежание устройства внутренних несущих стен. Высота помещений -270 см. Наружные трехслойные кирпичные стены колодцевой кладки с утеплителем (минераловатные плиты плотностью 120 кг/м2 толщиной 150 мм, экструдированный пенополистирол, плотностью не менее 30 кг/м2 толщиной 150 мм) общей толщиной 43 см. Колодцевая кладка стен из кирпича или керамических блоков, это две параллельных стены в пол кирпича, жестко между собой связанные поперечными стенками с уширенным швом 60 мм без заполнения раствором, с расстоянием 530 мм и опирающиеся на один фундамент. При этом внутренн
Планировка мини дома.
Планировка мини дома.
Боковой фасад.
Боковой фасад.

Планировка небольшого и уютного одноэтажный дом 50.65 м2 (7.84на 6.46 м) с одной спальней, кухней – гостинной, двускатной крышей, печным отоплением, один из оптимальных вариантов для проживания семьи из 3 человек. При необходимости часть гостиной можно отгородить мебельной или трансформируемой перегородкой для зоны отдыха или уединения. Пролет дома принят в свету 5600 мм из расчета длины пиломатериалов 6000 мм, во избежание устройства внутренних несущих стен. Высота помещений -270 см. Наружные трехслойные кирпичные стены колодцевой кладки с утеплителем (минераловатные плиты плотностью 120 кг/м2 толщиной 150 мм, экструдированный пенополистирол, плотностью не менее 30 кг/м2 толщиной 150 мм) общей толщиной 43 см. Колодцевая кладка стен из кирпича или керамических блоков, это две параллельных стены в пол кирпича, жестко между собой связанные поперечными стенками с уширенным швом 60 мм без заполнения раствором, с расстоянием 530 мм и опирающиеся на один фундамент. При этом внутренняя стена и наружная несущие в полкирпича. Поэтому для несущих стены используется, как правило, красный пустотелый кирпич, а для наружной облицовочный керамический. Фундаменты ленточные малозаглубленные монолитные железобетонная являются универсальным вариантом и представляет собой замкнутый контур из бетонных лент, которые повторяют наружные и внутренние стены строения и заглубляются в грунт на 50 см или более и обеспечивает прочную и устойчивую базу под мини дом. Чердачное перекрытие по деревянным балкам. Утеплителем может служить, кроме традиционных (минераловатные плиты плотностью 120 кг/м2 толщиной 150 мм, экструдированный пенополистирол, плотностью не менее 30 кг/м2) можно использовать камышовые маты. Для Московской области толщиной 30-35 см, поверху устраивают цементно-песчаную стяжку 3 см или глино-песчаная замазка 4 см. Если в доступной близости находятся заросли камыша и есть возможность воспользоваться бесплатным и доступным материалом для того, чтобы утеплить чердачное перекрытие. Для заготовки пригодны только растения, обитающие на берегах водоемов с пресной водой или на заболоченных лугах. Сырье заготавливается в осенне-зимний период и спрессовывается в маты, для прочности скрепленные оцинкованной проволокой или пропиленовой леской. Камыш скашивают садовым акуммуляторным триммером, после замерзания водоема. В качестве кровельного покрытия могут использоваться следующие материалы: фальцевая кровля ,металлочерепица, профлист. Это формовочные стальные листы с оцинкованным или полимерным покрытием. Материал рассчитан на длительную эксплуатацию при неблагоприятных внешних факторах, при этом небольшого веса.