Найти в Дзене

В какой момент планировать инженерные сети и внутреннюю отделку?

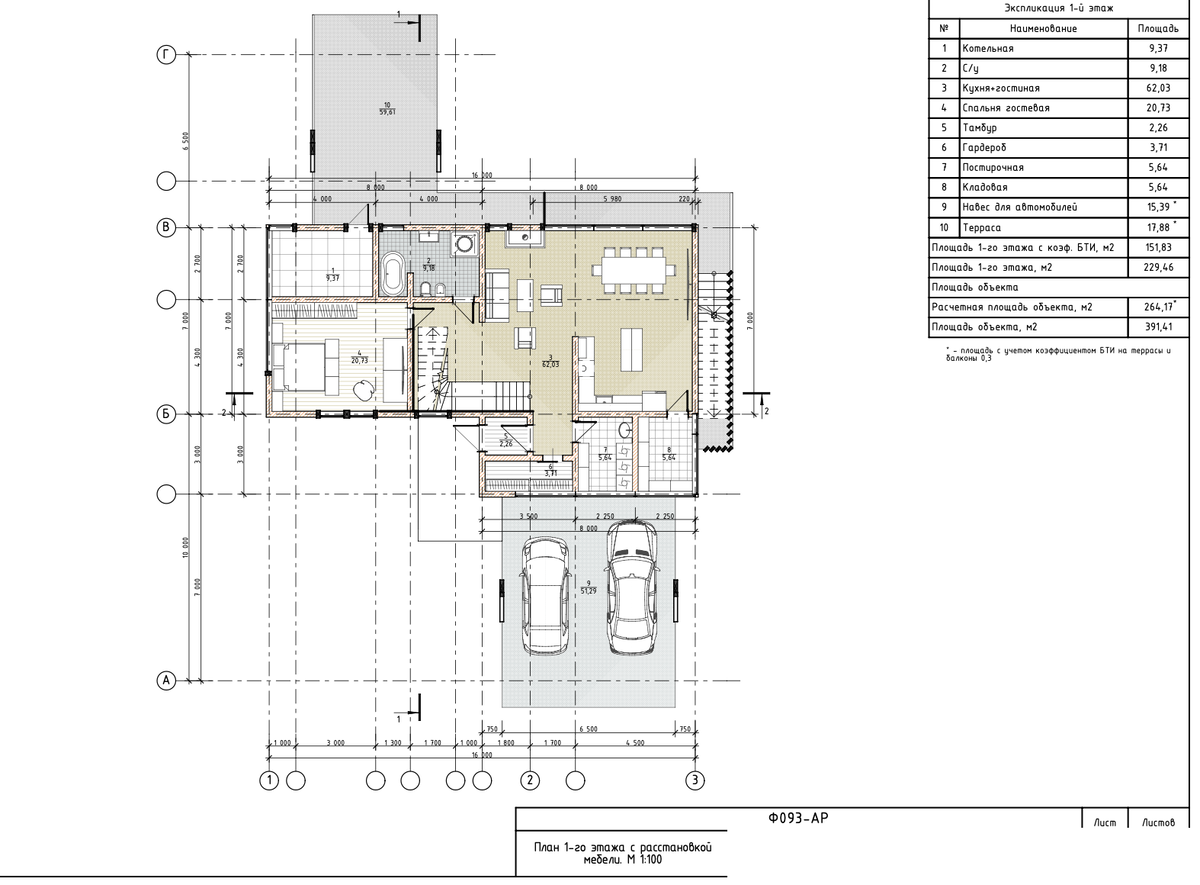
На этапе строительства теплого контура мы рекомендуем клиентам задуматься об инженерных сетях и отделке внутреннего пространства. Подобная тактика будет способствовать беспрерывной работе мастеров на объекте, а значит, и ощутимо уменьшит сроки возведения коттеджа. Итак, сперва дизайнер разработает специальный технический альбом, включающий: Следующим шагом станут непосредственно черновые работы. Примерное время – 3-4 месяца. Однако нужно понимать, что все индивидуально и зависит от сложности работ. За это время строители выполнят: За время проведения черновых работ наши специалисты подготовят смету на мебель и отделочные материалы, предоставят ее заказчику для оплаты. Все делается для того, чтобы после окончания черновых работ мы сразу же могли приступить к выполнению чистовой отделки. Представленный этап будет длиться гораздо меньше предыдущего. Работы, которые выполнят строители: Рекомендуем также заранее позаботиться о виде придомовой территории - природных видах, которые вы буд
Оглавление

На этапе строительства теплого контура мы рекомендуем клиентам задуматься об инженерных сетях и отделке внутреннего пространства. Подобная тактика будет способствовать беспрерывной работе мастеров на объекте, а значит, и ощутимо уменьшит сроки возведения коттеджа.

-2

Итак, сперва дизайнер разработает специальный технический альбом, включающий:

  • план расстановки мебели;
  • узлы инженерных сетей;
  • расположение межкомнатных перегородок;
  • нахождение вентиляции и трасс кондиционеров;
  • типы настенных и напольных покрытий;
  • расположение светильников, выключателей и иную информацию.

Следующим шагом станут непосредственно черновые работы. Примерное время – 3-4 месяца. Однако нужно понимать, что все индивидуально и зависит от сложности работ.

За это время строители выполнят:

  • разводку электрики;
  • чистовую стяжку;
  • монтаж систем канализации, водоподготовки, отопления;
  • сборку котельной под ключ.
-3
-4

За время проведения черновых работ наши специалисты подготовят смету на мебель и отделочные материалы, предоставят ее заказчику для оплаты. Все делается для того, чтобы после окончания черновых работ мы сразу же могли приступить к выполнению чистовой отделки.

Представленный этап будет длиться гораздо меньше предыдущего. Работы, которые выполнят строители:

  • укладка напольного покрытия;
  • покраска стен;
  • установка сантехники, светильников;
  • расстановка мебели.
-5

Рекомендуем также заранее позаботиться о виде придомовой территории - природных видах, которые вы будете рассматривать сквозь высокие окна в пол. Помните! Панорамное остекление стирает границы между внутренним пространством и окружающим ландшафтом, объединяя их в единое целое. Очень удобно, что наша компания занимается еще и ландшафтным дизайном. Вам не придется искать других специалистов, вы получите комплексную и квалифицированную помощь.

-6

Обеспечив беспрерывную работу профессиональных мастеров SWS Group, вы сможете переехать в современный, функциональный, стильный фахверковый коттедж уже через 10-12 месяцев!

↓↓↓

В телеграм-канале показываем этапы строительства

______

Приглашаем в офис и на демонстрационные экскурсии!

Оставляйте заявки на сайте!

sales@swsgroup.ru

+7(495) -118-28-18

Ставьте лайк и подписывайтесь на нас!

Больше проектов на нашем сайте swsgroup.ru