Добавить в корзинуПозвонить
Найти в Дзене
#ХочуДизайн

Как устаревшая вторичка превратилась в современный интерьер

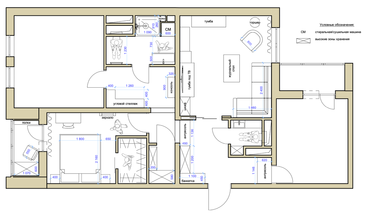
Здесь переделка коснулась не всей квартиры. Ремонт кухни и детской уже был выполнен и устраивал заказчиков. В гостиной задача стояла сохранить существующую мебель, но при этом сделать помещение более стильным и современным. Я добилась этого, поменяв расположение элементов мебельной композиции, а также добавлением цветовых акцентов в покраске стен. В гостиной задача стояла сохранить существующую мебель, но при этом сделать помещение более стильным и современным. Я добилась этого, поменяв расположение элементов мебельной композиции, а также добавлением цветовых акцентов в покраске стен. Образ гостевого санузла сложился очень быстро и легко. Сочетание эффектного керамогранита под мрамор и краски в терракотовом оттенке создает нужный эффект и отвлекает от небольших размеров помещения. Прихожую, как другие общие помещения отличает современный стиль и лаконичность. Я старалась максимально функционально продумать каждую деталь. Здесь нашлось место для открытого и закрытого хранения одежды, ящ

Здесь переделка коснулась не всей квартиры. Ремонт кухни и детской уже был выполнен и устраивал заказчиков.

В гостиной задача стояла сохранить существующую мебель, но при этом сделать помещение более стильным и современным. Я добилась этого, поменяв расположение элементов мебельной композиции, а также добавлением цветовых акцентов в покраске стен.

До переделки..
До переделки..

В гостиной задача стояла сохранить существующую мебель, но при этом сделать помещение более стильным и современным. Я добилась этого, поменяв расположение элементов мебельной композиции, а также добавлением цветовых акцентов в покраске стен.

Образ гостевого санузла сложился очень быстро и легко. Сочетание эффектного керамогранита под мрамор и краски в терракотовом оттенке создает нужный эффект и отвлекает от небольших размеров помещения.

Прихожую, как другие общие помещения отличает современный стиль и лаконичность. Я старалась максимально функционально продумать каждую деталь. Здесь нашлось место для открытого и закрытого хранения одежды, ящичков для мелочей, банкетки, ростового зеркала и укромное место для ежедневной обуви.

В приватных зонах совсем другая история… Они отличаются от основной части квартиры более романтическим настроением с классическими элементами.

В коридоре, ведущем в спальни и ванную комнату, очень элегантно сочетаются нежная фреска в теплой серой гамме и классическая раскладка молдингов.

Я люблю, когда проходные зоны в квартире становятся полноценной её частью, создают настроение, а не просто служат транзитом.

Поэтому в этом коридоре я расположила изящный книжный шкаф и акцентную консоль с декором.

Туалет и ванную комнату объединили в одно просторное помещение, разместили хоз. зону и удобную большую душевую.

В спальне использован один из любимых мной декораторских приемов - colorblock - когда только часть стены окрашивается в контрастный цвет. Здесь он применён с классической отделкой стен молдингами.

Изящное панно с журавлями расположено не за изголовьем кровати, как это часто делают, а напротив. Чтобы можно было любоваться им, лёжа на кровати.

В этой спальне много световых сценариев - помимо основного света, это композиция над изголовьем кровати, светодиодная подсветка панно, подвесы над рабочей зоной.

А также интересный приём со сдвижной реечной дверью в гардероб. Это не только хорошая вентиляция содержимого гардероба, но и красивая игра света и тени при включённом свете внутри.

Кровать, стол и зеркало из предыдущего интерьера заказчиков отлично вписались в новый интерьер.

Балкончик маленький, но уютный..

Эффектно смотрится подсветка под подоконником, особенно на рельефных поверхностях. Здесь в качестве отделки подоконного пространства использованы гипсовые панели.

В целом весь интерьер построен на игре благородных контрастов, как в цвете, так и в отделочных материалах.

Дизайнер - Мухачева Елена #ХочуДизайн