Найти в Дзене

Красиво и изысканно. Проект стильного, комфотабельного дома для большой семьи

Проект "Юджин" - это двухэтажный коттедж в классическом стиле с благородными формами и аристократичным лицом. Отделка фасада выполнена с безупречным вкусом и привлекает внимание. Планировка весьма рациональна и подарит большой семье до 10 человек комфортную и радостную жизнь. Площадь дома - 288 кв.м.
Габариты - 15.6 м x 17.2 м. Чтобы узнать стоимость проекта и стоимость строительства дома проходите по ссылке => проект "Юджин". Переходите на сайт, оставляйте заявку или связывайтесь с нашими менеджерами. Планировка Гармоничный и продуманный простор внутренних помещений создает все условия для комфортной жизни большой и гостеприимной семьи. Смотрите на нашем сайте другие проекты двухэтажных домов. ⭐ Вам необходимо индивидуальное решение задачи? Озвучивайте задание, и мы спроектируем и построим «под ключ» дом Вашей мечты высокого качества! 👉 Приглашаем Вас посетить наши строящиеся дома, чтобы Вы могли вживую оценить профессионализм, компетентность и ответственность нашей компании. ☎ Позво

Проект "Юджин" - это двухэтажный коттедж в классическом стиле с благородными формами и аристократичным лицом. Отделка фасада выполнена с безупречным вкусом и привлекает внимание.

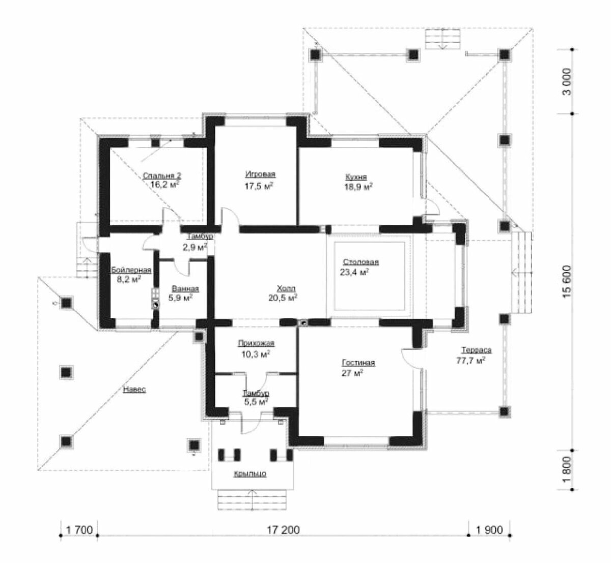
Планировка весьма рациональна и подарит большой семье до 10 человек комфортную и радостную жизнь.

Площадь дома - 288 кв.м.
Габариты - 15.6 м x 17.2 м.

Чтобы узнать стоимость проекта и стоимость строительства дома проходите по ссылке => проект "Юджин". Переходите на сайт, оставляйте заявку или связывайтесь с нашими менеджерами.

Планировка

Гармоничный и продуманный простор внутренних помещений создает все условия для комфортной жизни большой и гостеприимной семьи.

Смотрите на нашем сайте другие проекты двухэтажных домов.

⭐ Вам необходимо индивидуальное решение задачи? Озвучивайте задание, и мы спроектируем и построим «под ключ» дом Вашей мечты высокого качества!

👉 Приглашаем Вас посетить наши строящиеся дома, чтобы Вы могли вживую оценить профессионализм, компетентность и ответственность нашей компании.

☎ Позвоните нам для консультации: 8-965-199-61-04

Если Вам интересны другие проекты домов, приглашаем Вас на наши сайты:

#проектдома #строительство #проектирование #дома с террасой двухэтажные #каменный дом #проект частных домов #проекты домов #дом частный проект #проекты дома с террасой #загородныедома