Найти в Дзене

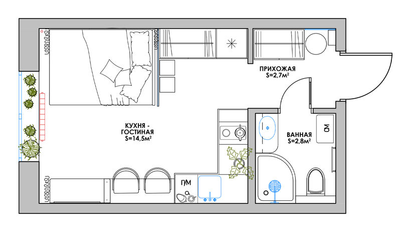
Кухня-гостиная в небольшой квартире-студии 20 м кв

Кухня Угловой кухонный гарнитур с техникой и местами хранения, с отделкой кухонного фартука двумя разными керамическими плитками. Минималистичная столовая зона на две персоны. Видео: дизайн интерьера этой квартиры Гостиная Соседствующая спальня отделена прозрачной перегородкой со шторой. Смотреть еще интерьеры этой квартиры: #дизайнинтерьера #дизайнинтерьераквартиры #кухня-гостиная #маленькаякухня #маленькаяквартира #маленькаякухнядизайн #квартира-студия #квартирастудия
Оглавление

Кухня

Угловой кухонный гарнитур с техникой и местами хранения, с отделкой кухонного фартука двумя разными керамическими плитками.

-2
  • Черная квадратная плитка Artisan 24514 Lunas B&W с декором абстрактных геометрических фигур, размер 13.2x13.2 см, производство Испания.
24514 Artisan 🏆 Lunas B&W 13,2x13,2 декор от Equipe купить керамическую плитку и керамогранит в Москве в магазине 3Дплитка

  • Глянцевая настенная плитка Equipe Artisan 24464 White на кухонном фартуке в оттенках бежевого цвета, размер 6.5x20 см. Коллекция Artisan от испанской фабрики Equipe.
24464 Artisan 🏆 White 6,5x20 настенная плитка от Equipe купить керамическую плитку и керамогранит в Москве в магазине 3Дплитка

-3

Минималистичная столовая зона на две персоны.

-4

Видео: дизайн интерьера этой квартиры

Гостиная

Соседствующая спальня отделена прозрачной перегородкой со шторой.

-6
-7

Смотреть еще интерьеры этой квартиры:

https://vk.com/olga_dsgnr
https://vk.com/olga_dsgnr

#дизайнинтерьера #дизайнинтерьераквартиры #кухня-гостиная #маленькаякухня #маленькаяквартира #маленькаякухнядизайн #квартира-студия #квартирастудия