Добавить в корзинуПозвонить
Найти в Дзене
Изумрудный дом

Мастер-спальня: что это и почему она вам нужна?

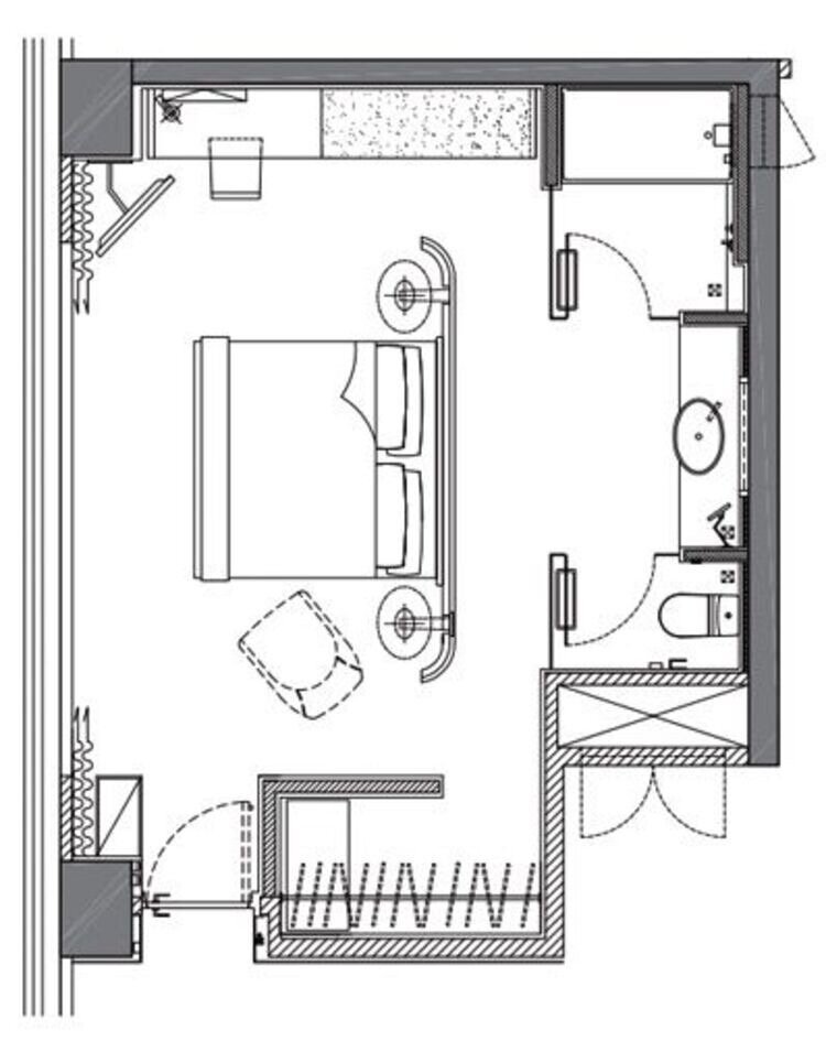
О какой спальне вы мечтаете? Тихая, удобная, а главное, неприкосновенная? Тогда вам нужна мастер-спальня. Мастер‐спальня или хозяйская спальня – пространство, которое объединило в себе несколько функций. Здесь ваша личная ванная комната и гардеробная, а вход в них имеется только из вашей комнаты. Для чего она нужна? Это, как минимум, удобно. Хозяевам квартиры необходимо приватное пространство, где поутру можно спокойно собраться на работу, а вечером принять расслабляющую ванну в тишине и уединении. Очень грамотное решение для большой семьи, где есть члены семьи разных возрастов. А ещё это стильно и современно. Но это решение ещё не было таким популярным в прошлые десятилетия, у нас оно только набирает обороты. Поэтому мастер-спальнями, как правило, сегодня могут похвастаться владельцы частных домов или новых элитных жилых комплексов. Вы тоже можете создать личное пространство со своей спальней, гардеробной и санузлом, даже если в вашей планировке не была продумана эта зона. В наших

О какой спальне вы мечтаете? Тихая, удобная, а главное, неприкосновенная? Тогда вам нужна мастер-спальня.

Мастер‐спальня или хозяйская спальня – пространство, которое объединило в себе несколько функций. Здесь ваша личная ванная комната и гардеробная, а вход в них имеется только из вашей комнаты.

Для чего она нужна?

Это, как минимум, удобно. Хозяевам квартиры необходимо приватное пространство, где поутру можно спокойно собраться на работу, а вечером принять расслабляющую ванну в тишине и уединении. Очень грамотное решение для большой семьи, где есть члены семьи разных возрастов.

А ещё это стильно и современно. Но это решение ещё не было таким популярным в прошлые десятилетия, у нас оно только набирает обороты. Поэтому мастер-спальнями, как правило, сегодня могут похвастаться владельцы частных домов или новых элитных жилых комплексов.

-2

Вы тоже можете создать личное пространство со своей спальней, гардеробной и санузлом, даже если в вашей планировке не была продумана эта зона. В наших проектах мы не раз создавали мастер-спальни и знаем, как можно воплотить любое дизайнерское решение в вашем доме.

Узнайте, как создать вашу мастер-спальню:

WhatsApp +7 (981) 239-89-89

Группа ВКонтакте