Добавить в корзинуПозвонить
Найти в Дзене

Мини-проект прихожей в хрущевке, часть 2

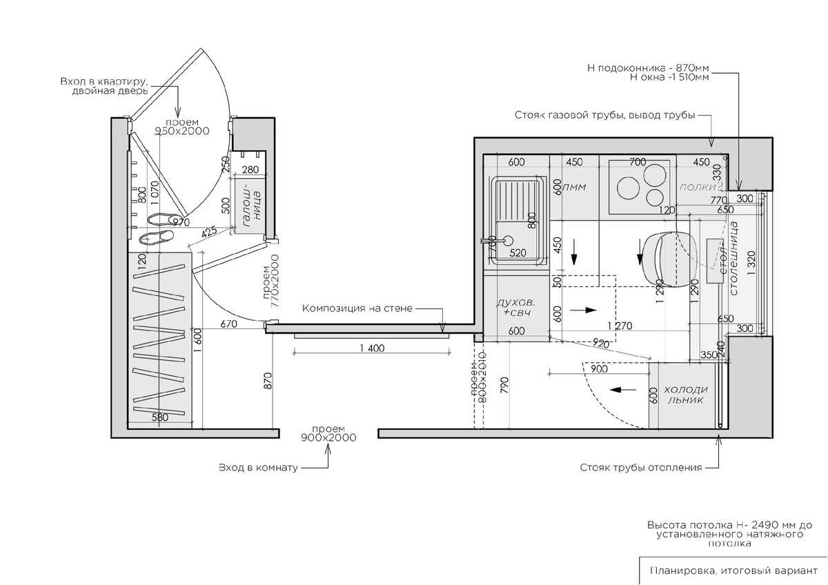
Какой может быть кухня-крошка S=5,5 кв.м.? В прошлой части я рассказала, как мы разработали зону прихожей, сегодня покажу кухню. Вспомним планировочное решение:
Мы заменили на кухне обеденный стол барной стойкой, переходящей в кухонную столешницу. Выбрали белый кухонный гарнитур и глубокий благородный цвет стен (как основные элементы интерьера) Сам кухонный гарнитур решили делать с белыми глянцевыми фасадами, сочетая его со столешницей с текстурой дерева - что-то взяли от скандинавского стиля и добавили деталей современного интерьера - в светильниках, стульях и закаленном стеклена кухонном фартуке (получился микс современного и скандинавского дизайна :) Следуя приему, использованному в прихожей, во втором варианте добавила черных акцентов немного. Думаю, в реализации получится очень круто :)

Какой может быть кухня-крошка S=5,5 кв.м.? В прошлой части я рассказала, как мы разработали зону прихожей, сегодня покажу кухню. Вспомним планировочное решение:

Планировочное решение проектируемых зон
Планировочное решение проектируемых зон


Мы заменили на кухне обеденный стол барной стойкой, переходящей в кухонную столешницу. Выбрали белый кухонный гарнитур и глубокий благородный цвет стен (
как основные элементы интерьера)

Коллаж кухни, вариант 1
Коллаж кухни, вариант 1

Сам кухонный гарнитур решили делать с белыми глянцевыми фасадами, сочетая его со столешницей с текстурой дерева - что-то взяли от скандинавского стиля и добавили деталей современного интерьера - в светильниках, стульях и закаленном стеклена кухонном фартуке (получился микс современного и скандинавского дизайна :)

Коллаж кухни, вариант 2
Коллаж кухни, вариант 2

Следуя приему, использованному в прихожей, во втором варианте добавила черных акцентов немного. Думаю, в реализации получится очень круто :)