Найти в Дзене

Загородный дом представительского класса для ценителей красоты, простора и максимального комфорта - 447 кв.м.

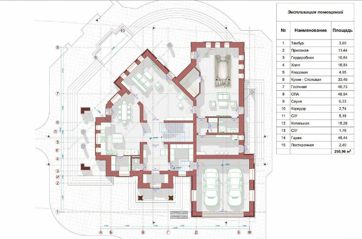
Проект дома "ПАЙН ХАУС" отлично подойдет для людей, ценящим роскошь и простор. Здесь запроектировано множество помещений разного назначения, включая сауну и СПА. Множество панорамных окон впустят в дом большое количество дневного света, а балконы идеально добавляют общему дизайну изящность. Отделка фасада выполнена с безупречным вкусом и привлекает внимание. ПЛАНИРОВКА Площадь дома - 447 кв.м.
Габариты - 22.0 м x 19.5 м. Если Вы планируете построить дом по этому проекту, обращайтесь к специалистам нашей компании, переходите на проект "ПАЙН ХАУС", оставляйте заявку. Мы проконсультируем, адаптируем под Ваши пожелания и земельный участок, построим Вам надежный дом и предложим гарантию 5 лет на свою работу. Смотрите на нашем сайте другие проекты двухэтажных домов 👉 Приглашаем Вас посетить наши строящиеся дома, чтобы Вы могли вживую оценить профессионализм, компетентность и ответственность нашей компании. Позвоните нам для консультации: 8-965-199-61-04
Ещё мы ждём Вас в наших социальных се

Проект дома "ПАЙН ХАУС" отлично подойдет для людей, ценящим роскошь и простор. Здесь запроектировано множество помещений разного назначения, включая сауну и СПА.

Множество панорамных окон впустят в дом большое количество дневного света, а балконы идеально добавляют общему дизайну изящность. Отделка фасада выполнена с безупречным вкусом и привлекает внимание.

ПЛАНИРОВКА

Площадь дома - 447 кв.м.
Габариты - 22.0 м x 19.5 м.

Если Вы планируете построить дом по этому проекту, обращайтесь к специалистам нашей компании, переходите на проект "ПАЙН ХАУС", оставляйте заявку. Мы проконсультируем, адаптируем под Ваши пожелания и земельный участок, построим Вам надежный дом и предложим гарантию 5 лет на свою работу.

Смотрите на нашем сайте другие проекты двухэтажных домов

👉 Приглашаем Вас посетить наши строящиеся дома, чтобы Вы могли вживую оценить профессионализм, компетентность и ответственность нашей компании.

Позвоните нам для консультации: 8-965-199-61-04
Ещё мы ждём Вас в наших социальных сетях
Телеграмм канал и Инстаграм
Также советуем зайти на наши сайты
stone-wood-house.ru и winerberger.ru

Будем благодарны за обратную связь!

#проект коттеджа #проект дома в дворцовом стиле #дом из камней #загородный дом проекты #строительство #проектирование #проектдома #коттедж #проекты дома с гаражом #дом частный проект