Добавить в корзинуПозвонить
Найти в Дзене

Проекты каркасных домов 8 на 8 (одноэтажные, двухэтажные, с мансардой)

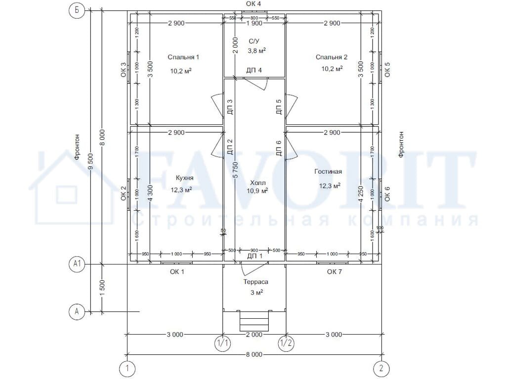
Выбрать и построить дом своей мечты не так просто, как можно подумать. На начальном этапе будущему владельцу стоит определиться с большим количеством важных параметров. Одной из самых главных характеристик дома остается его размер и жилая площадь. Достойным выбором может стать проект каркасного дома под ключ размером 8 на 8 метров. Проекты каркасных домов с площадью застройки, равной 64 квадратным метрам, пользуются большим спросом. Они объединяют лучшие технические решения, современные планировки и свежие архитектурные идеи. На сайте компании «Фаворит» вы можете найти каркасные дома 8х8 метров с общей жилой площадью от 96 кв. м до 130 кв. м. Все проекты отличает разная стилистика, поэтому они способны заинтересовать покупателей с различными требованиями. Например, для тех, кто хочет иметь дом с террасой, мы подготовили проекты: КК-11, КК-12 и КК-13. При этом у нас есть вариант, который оснащен небольшим крыльцом: КК-14. Если вы хотите просто небольшой дом для загородного отдыха, то ва

Выбрать и построить дом своей мечты не так просто, как можно подумать. На начальном этапе будущему владельцу стоит определиться с большим количеством важных параметров. Одной из самых главных характеристик дома остается его размер и жилая площадь. Достойным выбором может стать проект каркасного дома под ключ размером 8 на 8 метров. Проекты каркасных домов с площадью застройки, равной 64 квадратным метрам, пользуются большим спросом. Они объединяют лучшие технические решения, современные планировки и свежие архитектурные идеи.

На сайте компании «Фаворит» вы можете найти каркасные дома 8х8 метров с общей жилой площадью от 96 кв. м до 130 кв. м. Все проекты отличает разная стилистика, поэтому они способны заинтересовать покупателей с различными требованиями. Например, для тех, кто хочет иметь дом с террасой, мы подготовили проекты: КК-11, КК-12 и КК-13. При этом у нас есть вариант, который оснащен небольшим крыльцом: КК-14. Если вы хотите просто небольшой дом для загородного отдыха, то вам подойдет одноэтажный вариант.

Каждый дом мы разрабатываем в соответствии с современными стандартами строительной отрасли. При работах используются высококачественные строительные материалы и технологии. А все наши каркасные дома строятся не больше одного месяца. К тому же, еще одним фактором, определяющим спрос на подобные дома, является их стоимость.

Строительная компания «Фаворит» гарантирует лучшие цены на каркасные дома и при необходимости предлагает полный комплекс услуг, чтобы дачный домик можно было использовать даже в холодное время года.

Посмотреть все проекты каркасных домов вы можете здесь: https://favorit-nnov.ru/proekty/doma/karkasnye-doma/