Добавить в корзинуПозвонить
Найти в Дзене
Филдс

Как дизайнеры сделали универсальный интерьер для продажи, заодно, превратив однушку 53 м² в двушку

Дизайнер Анастасия Лаппо оформила двухкомнатную квартиру площадью 53 м² на продажу. Заказчики просили создать удобную планировку, а интерьер сделать максимально универсальным. Планировка Гостиная Вход в гостиную оформили двустворчатыми распашными дверьми со стеклянными вставками. Благодаря этому удалось впустить больше света в кухню, лишённую окон. Кухня Гарнитур поделили на два блока: один расположили Г-образно, второй — с пеналами — встроили в нишу напротив прихожей. Навесные шкафы оставили только на одной стене и сделали их фасады стеклянными, чтобы визуально облегчить интерьер. Спальня В оформлении спальни придерживались принципа лаконичности — в комнате нет ничего лишнего. Кровать подобрали в тон стенам, а роль акцентов исполняет текстиль. За дверью-гармошкой сбоку от изголовья скрыли вход в гардеробную. Прихожая Как и во всей квартире, на пол в прихожей уложили ламинат. При входе повесили компактную консоль с зеркалом, под которой удобно расположился акцентный бордовый пуф
Оглавление

Дизайнер Анастасия Лаппо оформила двухкомнатную квартиру площадью 53 м² на продажу. Заказчики просили создать удобную планировку, а интерьер сделать максимально универсальным.

  • Общая площадь: 53 м²
  • Место: Москва
  • Количество комнат: 2
  • Кто здесь живет: на продажу

Планировка

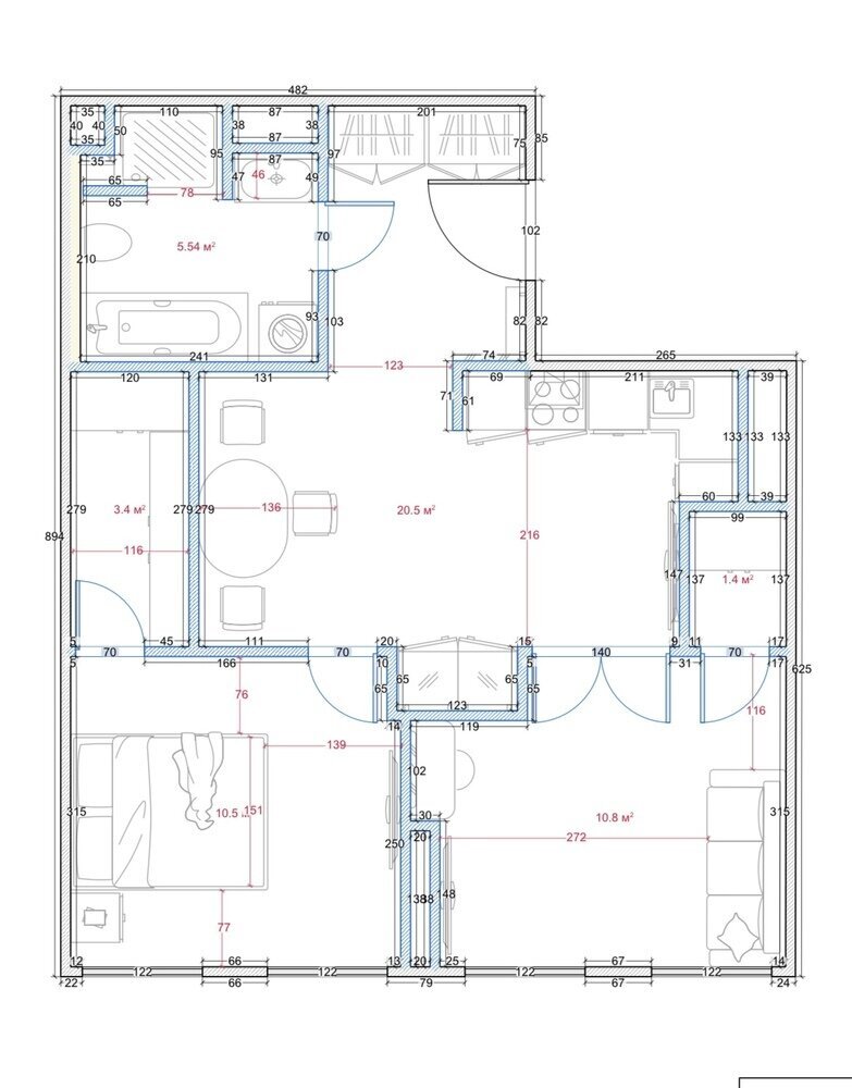
В результате перепланировки типовую однушку превратили в двушку. Вдоль окон расположили спальню и гостиную, а кухню оттеснили вглубь квартиры, ближе к прихожей. Помимо этого удалось выделить место для хозяйственных помещений — гардеробной при спальне и кладовой в гостиной.
В результате перепланировки типовую однушку превратили в двушку. Вдоль окон расположили спальню и гостиную, а кухню оттеснили вглубь квартиры, ближе к прихожей. Помимо этого удалось выделить место для хозяйственных помещений — гардеробной при спальне и кладовой в гостиной.

Гостиная

Вход в гостиную оформили двустворчатыми распашными дверьми со стеклянными вставками. Благодаря этому удалось впустить больше света в кухню, лишённую окон.

Кухня

Гарнитур поделили на два блока: один расположили Г-образно, второй — с пеналами — встроили в нишу напротив прихожей. Навесные шкафы оставили только на одной стене и сделали их фасады стеклянными, чтобы визуально облегчить интерьер.

Спальня

В оформлении спальни придерживались принципа лаконичности — в комнате нет ничего лишнего. Кровать подобрали в тон стенам, а роль акцентов исполняет текстиль. За дверью-гармошкой сбоку от изголовья скрыли вход в гардеробную.

Прихожая

Как и во всей квартире, на пол в прихожей уложили ламинат. При входе повесили компактную консоль с зеркалом, под которой удобно расположился акцентный бордовый пуф. Вдоль противоположной стены выстроили вместительную систему хранения, она служит дополнением к гардеробной.

Санузел

Санузел полностью облицевали керамогранитом под мрамор, фрагмент более мелкой плитки есть только в душевой. Несмотря на достаточно небольшую площадь в 5,5 м2, помимо душевой удалось установить ещё и ванну. Тумбу с раковиной сделали подвесной, чтобы облегчить уборку.

Интересные мнения в комментариях приветствуются. Если материал понравился — ставь лайк!

Филдс это не только блог на Дзене, но и магазин дизайнерской мебели. Дарим 3000 ₽ на первую покупку. Заходите на сайт и выбирайте мебель, которую используют дизайнеры в своих проектах.