Найти в Дзене
3D CAD модели & Чертежи

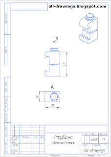
Чертежи струбцины для фланцев ISO-K

Двухсторонние струбцины используются для для сборки соединения, состоящего из двух одинаковых фланцев ISO-K с условно-проходным диаметром 63-100 мм. Зажимы струбцины изготовлены из алюминиевого сплава. Для сжатия зажимов струбцины применяется болт с метрической резьбой М8х45. Для монтажа соединения между фланцами ISO-K необходимо разместить центрующее кольцо с уплотнением. Захваты двухсторонних зажимов размещаются в проточках, расположенных со стороны, противоположной опорным поверхностям фланцев ISO-K. Усилие для сжатия уплотнительного кольца обеспечивается последовательной затяжкой болтов зажимов. 3D модель и чертежи струбцины для фланцев ISO-K
Оглавление

Двухсторонние струбцины используются для для сборки соединения, состоящего из двух одинаковых фланцев ISO-K с условно-проходным диаметром 63-100 мм. Зажимы струбцины изготовлены из алюминиевого сплава. Для сжатия зажимов струбцины применяется болт с метрической резьбой М8х45. Для монтажа соединения между фланцами ISO-K необходимо разместить центрующее кольцо с уплотнением. Захваты двухсторонних зажимов размещаются в проточках, расположенных со стороны, противоположной опорным поверхностям фланцев ISO-K. Усилие для сжатия уплотнительного кольца обеспечивается последовательной затяжкой болтов зажимов.

3D модель и чертежи струбцины для фланцев ISO-K

Чертежи струбцины для фланцев ISO-K
Чертежи струбцины для фланцев ISO-K
Чертежи струбцины для фланцев ISO-K