Добавить в корзинуПозвонить
Найти в Дзене

Большой каркасный дом 8х9 с террасой и балконом. Фотоотчет, планировка, цена.

• Площадь: 110 м2
• Размер: 8х9 м
• Этажность: 2
• Оплата: Без предоплаты
• Доставка: Индивидуально
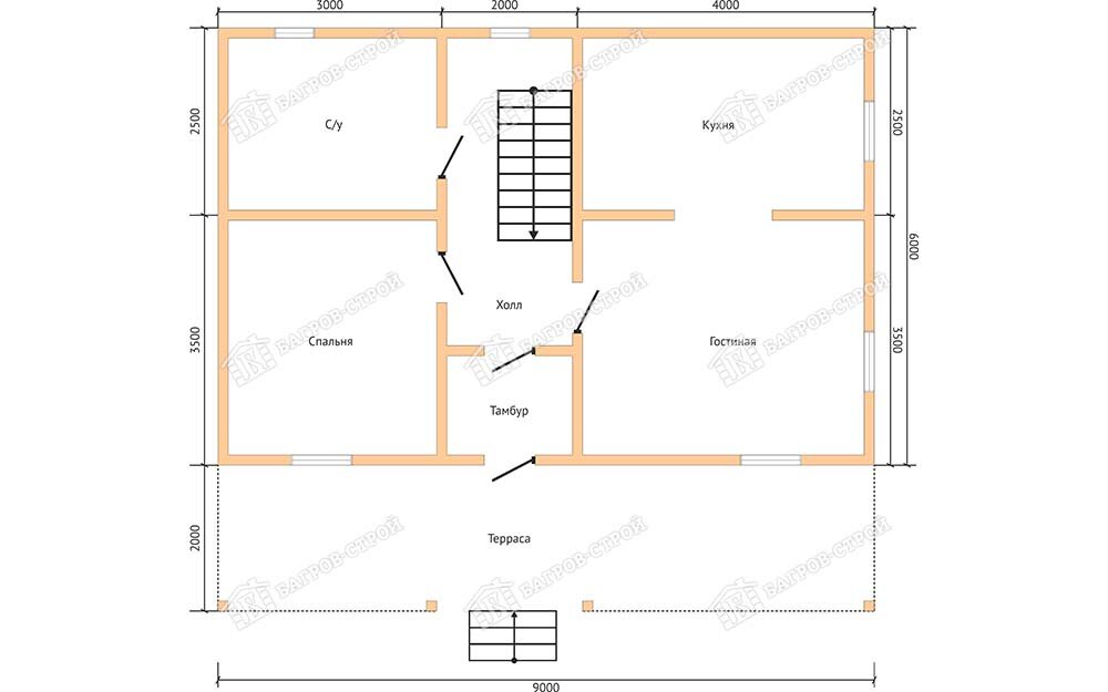
• Сроки стр-ва: 12-14 дней Планировка: Фото построенного дома: 👉 СТОИМОСТЬ (цены актуальны на момент публикации): 1. Без отделки:
• Каркас 100 мм - 675 000 ₽
• Каркас 150 мм - 847 800 ₽
• Каркас 200 мм - 1 020 600 ₽
2. С отделкой:
• Каркас 100 мм - 1 517 400 ₽
• Каркас 150 мм - 1 786 500 ₽
• Каркас 200 мм - 2 142 000 ₽ Посмотреть комплектацию на сайте: bagrovstroy.ru/karkasnye-doma/ivan 👉🏻Что входит в каждую комплектацию? В комплектацию «с отделкой» входит все, что перечислено в комплектации «без отделки» + то, что перечислено на слайдах в карусели.
____________________
В каждую комплектацию УЖЕ ВКЛЮЧЕНА стоимость материалов, работа бригады, фотоотчет и мой личный контроль за строительством) Доставка рассчитывается так же отдельно.
В карусели вы увидите что конкретно входит в каждый вариант :)
По вашему пожеланию, можно учесть доп.опции, убрать или заменить: фундамент, коммуникац
Оглавление

• Площадь: 110 м2
• Размер: 8х9 м
• Этажность: 2
• Оплата: Без предоплаты
• Доставка: Индивидуально
• Сроки стр-ва: 12-14 дней

Планировка:

Фото построенного дома:

👉 СТОИМОСТЬ (цены актуальны на момент публикации):

1. Без отделки:
• Каркас 100 мм - 675 000 ₽
• Каркас 150 мм - 847 800 ₽
• Каркас 200 мм - 1 020 600 ₽

2. С отделкой:
• Каркас 100 мм - 1 517 400 ₽
• Каркас 150 мм - 1 786 500 ₽
• Каркас 200 мм - 2 142 000 ₽

Посмотреть комплектацию на сайте: bagrovstroy.ru/karkasnye-doma/ivan

👉🏻Что входит в каждую комплектацию?

В комплектацию «с отделкой» входит все, что перечислено в комплектации «без отделки» + то, что перечислено на слайдах в карусели.
____________________

В каждую комплектацию УЖЕ ВКЛЮЧЕНА стоимость материалов, работа бригады, фотоотчет и мой личный контроль за строительством) Доставка рассчитывается так же отдельно.

В карусели вы увидите что конкретно входит в каждый вариант :)

По вашему пожеланию, можно учесть доп.опции, убрать или заменить: фундамент, коммуникации, заменить окна на пластиковые, изменить внешнюю отделку дома и другие.

Понравился дом? Свяжитесь с нами, мы сделаем для вас расчет стоимости или подберем подходящий проект под ваши пожелания.

📍 Наши контакты:

• Сайт: bagrovstroy.ru
• Группа VK:
vk.com/bagrovstroy