Добавить в корзинуПозвонить
Найти в Дзене
Пикабу

Потеет линолеум в комнате

Доброго у кого что ребята, нужна помощь кто шарит в стройке, а именно такая проблема, как запотевание линолеумав одном из углов дома. Дом у нас частный, на 4-х хозяев, который давали нам как сиротам, который построен как обычно из говна и палок, а то и того меньше, где и вентиляция изначально была сделана через ж и все остальное. Так вот примерная схема. В комнате угол ерхний на плане и до половины комнаты сыреет и сырет пол, линолеум просто в воде в сырую погоду, на этом углу также подходит газовая труба, которая рядом с отмосткой выходит из земли. Возможно ли, что вода, которая течет с крыши, попадая на отмостку затекает в траншею где лежит труба, а оттуда уже бетон забирает из земли влагу? И спасет ли меня переделка отмостки в более качественное исполнение, чем сейчас она сделана строителями, налившими бетон на землю, в толщину где-то 10 сантиметров? Спасибо.

Доброго у кого что ребята, нужна помощь кто шарит в стройке, а именно такая проблема, как запотевание линолеумав одном из углов дома.

Дом у нас частный, на 4-х хозяев, который давали нам как сиротам, который построен как обычно из говна и палок, а то и того меньше, где и вентиляция изначально была сделана через ж и все остальное.

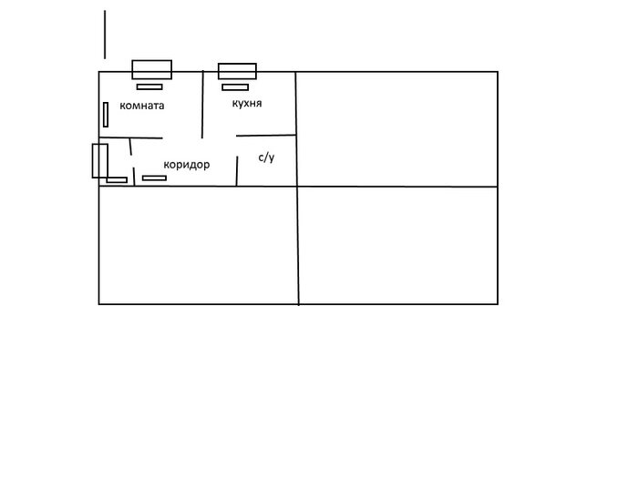
Так вот примерная схема.

В комнате угол ерхний на плане и до половины комнаты сыреет и сырет пол, линолеум просто в воде в сырую погоду, на этом углу также подходит газовая труба, которая рядом с отмосткой выходит из земли.

Возможно ли, что вода, которая течет с крыши, попадая на отмостку затекает в траншею где лежит труба, а оттуда уже бетон забирает из земли влагу?

И спасет ли меня переделка отмостки в более качественное исполнение, чем сейчас она сделана строителями, налившими бетон на землю, в толщину где-то 10 сантиметров? Спасибо.