Добавить в корзинуПозвонить
Найти в Дзене
ЭТО ВАШ ИНТЕРЬЕР

Женщина с мужем сделали современный ремонт в своей новой квартире. Получилось стильно и элегантно

Наши герои всю жизнь жили в Новосибирске. И после долгих раздумий все-таки решили переехать в северную столицу. Квартиру выбрали в хорошем районе и с необычной "ломаной" планировкой, которая сначала отталкивала, а потом наоборот, стала изюминкой в новом интерьере. Проект Квартира была куплена в новостройке и находится на 5-ом этаже. Перепланировку решили не делать, так как планировка квартиры была вполне удачной. Прихожая и коридор Коридор получился очень длинным и изогнутым, но это лишь придало ритм новому интерьеру. Благодаря тому, что в коридор ведут все двери из всех помещений, в него попадает естественный свет, из-за чего коридор не кажется узким и тесным. Весь коридор выполнен в светлой цветовой гамме. На полу уложили паркетную доску. Гостиная Гостиная выполнена в светлых и нежных тонах. Напольное покрытие тоже выложено из инженерной доски. Часть мебели переехала из старой квартиры. С левой стороны расположился большой раскладной диван. Телевизора здесь нет, но есть библиотека на
Оглавление

Наши герои всю жизнь жили в Новосибирске. И после долгих раздумий все-таки решили переехать в северную столицу. Квартиру выбрали в хорошем районе и с необычной "ломаной" планировкой, которая сначала отталкивала, а потом наоборот, стала изюминкой в новом интерьере.

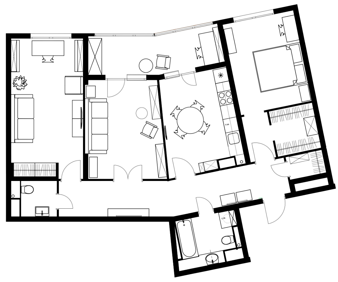
Проект

  • Местонахождение: г. Санкт-Петербург
  • Площадь квартиры: 95 кв. метров
  • Владельцы: семья из трёх человек

Квартира была куплена в новостройке и находится на 5-ом этаже. Перепланировку решили не делать, так как планировка квартиры была вполне удачной.

Прихожая и коридор

Коридор получился очень длинным и изогнутым, но это лишь придало ритм новому интерьеру. Благодаря тому, что в коридор ведут все двери из всех помещений, в него попадает естественный свет, из-за чего коридор не кажется узким и тесным. Весь коридор выполнен в светлой цветовой гамме. На полу уложили паркетную доску.

Гостиная

Гостиная выполнена в светлых и нежных тонах. Напольное покрытие тоже выложено из инженерной доски. Часть мебели переехала из старой квартиры. С левой стороны расположился большой раскладной диван. Телевизора здесь нет, но есть библиотека наших героев, так как они предпочитают читать книги, а не смотреть телевизор.

Лоджия

Лоджия захватывает всю гостиную и всю кухню. С левой стороны находится зона хранения, а с правой стороны расположилась рабочая зона для мужа хозяйки квартиры. Ну а посередине находится небольшая зона отдыха.

Кухня

Кухонное пространство так же выполнено в нежных пастельных тонах в классическом стиле. Справа от входа расположился кухонный пенал, в котором находится часть бытовой техники и места для хранения. Напольное покрытие выложено из светлого керамогранита. Посредине кухни расположилась столовая группа.

Спальня

Спальня выполнена таком же стиле, что и вся квартира. Справа от входа находится гардеробная. Посередине комнаты расположилась двуспальная кровать с большим мягким изголовьем. Стену за изголовьем сделали акцентной и оклеили ее обоями с геометрическим принтом. Возле кровати расположилось рабочее место для хозяйки квартиры.

Детская

Детскую комнату тоже выполнили в светлых тонах. Слева от входа в комнату расположилась встроенная система хранения до самого потолка. С левой стороны находится спальное место, а напротив него повесили небольшой телевизор. У окна появилось рабочее место и книжные стеллажи.

Ванная комната

Ванную комнату оформили светлой плиткой и влагостойкой краской того же оттенка. Столешница под раковиной изготовлена из акрилового камня. Напольное покрытие выложено из плитки с графичным орнаментом.

-8

Гостевой санузел

Этот санузел решили сделать в более темных тонах. Нижнюю часть стен выложили темной прямоугольной плиткой, а верхнюю часть покрасили влагостойкой краской.

-9

Если вам понравилась статья, то не забудьте поставить лайк и подписаться, чтобы не пропустить новый материал!

Так же пишите в комментариях, что вам понравилось в этом проекте, а что вызывает сомнения.

Если вам будет интересно, то заходите на мой второй новый канал)

https://dzen.ru/id/6313a65e908abf1aca233ad4?lang=ru&referrer_place=layout