Добавить в корзинуПозвонить
Найти в Дзене
Brainstorm.büro

Когда кухня- вагончик- на помощь приходит остров.

Дано:
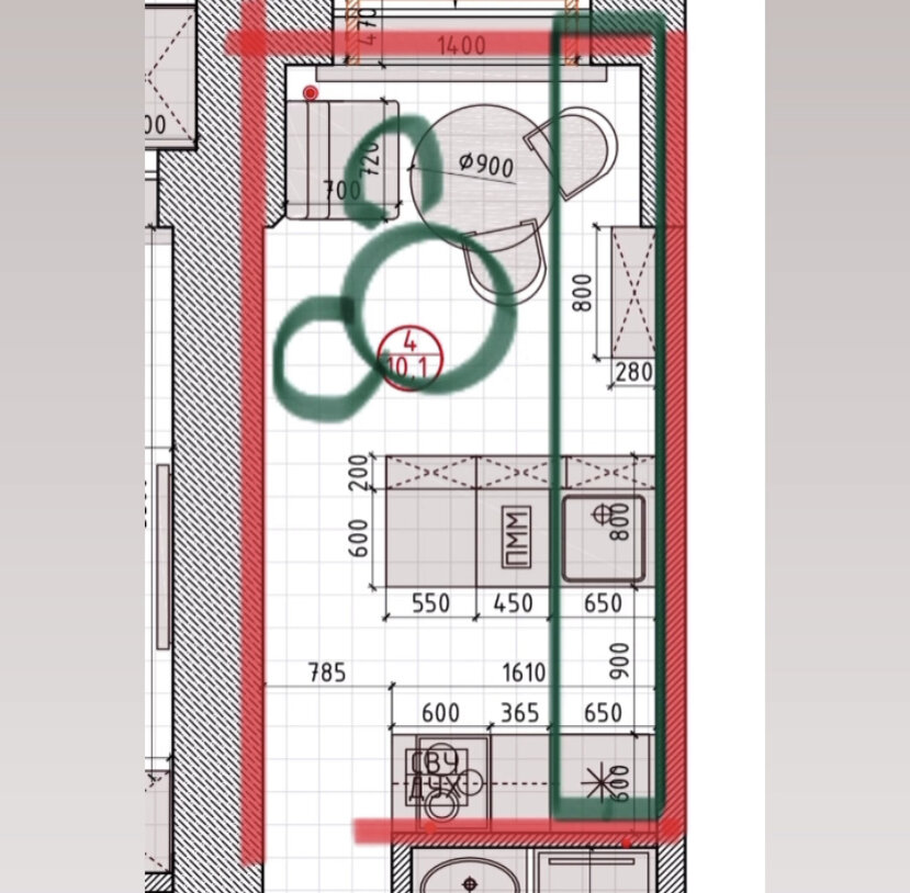
- кухня- вытянутая коробочка 2,4х4,6 м: по длине зажата между газовой трубой и внешней стеной, по ширине - несущей стеной и стеной соседей, листайте👉🏼
-Что делать?
📎Линейная кухня👉🏼- большая рабочая поверхность, да, но разместить стол так, чтобы было комфортно и красиво не удастся, про диван даже говорить нечего..
📎Крутили, вертели, пришли к выводу, что кухня из двух частей, с островом- то, что «доктор прописал».
Остров выступает рабочей поверхностью и неким зонированием кухни и столовой.
Глубину основного крыла мы увеличили, чтобы пройти газовую трубу, и, учитывая, что по длине помещения мы не были ограничены, решили увеличить глубину и второго крыла. Под столешницей расположили стандартные 600 модули, а со стороны окна сделали полочки на 200 мм для красивой мелочевки, которые придают уют.
Вот так! Пишите, какой вариант выбрали бы вы🤗

Дано:
- кухня- вытянутая коробочка 2,4х4,6 м: по длине зажата между газовой трубой и внешней стеной, по ширине - несущей стеной и стеной соседей, листайте👉🏼


-Что делать?

📎Линейная кухня👉🏼- большая рабочая поверхность, да, но разместить стол так, чтобы было комфортно и красиво не удастся, про диван даже говорить нечего..

-2


📎Крутили, вертели, пришли к выводу, что кухня из двух частей, с островом- то, что «доктор прописал».

Остров выступает рабочей поверхностью и неким зонированием кухни и столовой.

Глубину основного крыла мы увеличили, чтобы пройти газовую трубу, и, учитывая, что по длине помещения мы не были ограничены, решили увеличить глубину и второго крыла. Под столешницей расположили стандартные 600 модули, а со стороны окна сделали полочки на 200 мм для красивой мелочевки, которые придают уют.

Вот так! Пишите, какой вариант выбрали бы вы🤗

-3
-4
-5