Добавить в корзинуПозвонить
Найти в Дзене
dreamhouselife

GORNY дом на склоне с видом на море , планировки.

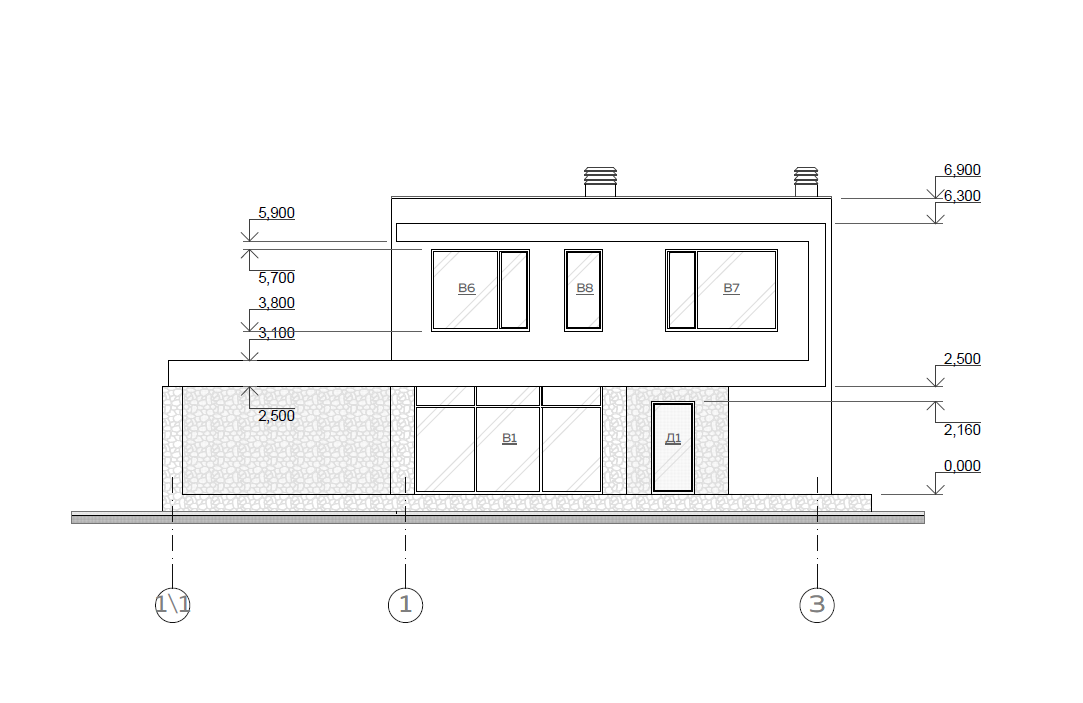
GORNY дом на склоне планировки В данном проекте применена классическая схема для данного региона. Первый этаж гостевой и хозяйственный, так же, немаловажно как размещение летней кухни. Зона отдыха, мангальная зона и кальянная в одном. Видовая. Первый этаж не жилой, хотя можно разместиться на ночлег в гостиной. Итак гостиная кухня, санузел, техническая комната. Входная дверь, лестница на второй этаж, прихожая, гардеробная. Массивная веранда перед домом, огромное пространство зоны отдыха. Полноценная гостинная. Из гостиной - огромное окно - окна в пол и во всю стену. Выход из гостиной на веранду через сдвижную дверь, с возможностью открывания в полпроема. Второй этаж уже стандартно. 2 спальни с видом на юг, на море и долину. Одна спальня хозяйская, с собственными ванной и гардеробной комнатой. Другие комнаты оснащены гардеробными шкафами, на этаже для них предусмотрен свой санузел. Задняя спальня может легко измениться в кабинет или детскую комнату. Во всех комнатах и коридорах есть ес

GORNY дом на склоне планировки

В данном проекте применена классическая схема для данного региона.

Первый этаж гостевой и хозяйственный, так же, немаловажно как размещение летней кухни. Зона отдыха, мангальная зона и кальянная в одном. Видовая.

дом на склоне в Крыму
дом на склоне в Крыму

Первый этаж не жилой, хотя можно разместиться на ночлег в гостиной.

Итак гостиная кухня, санузел, техническая комната.

Входная дверь, лестница на второй этаж, прихожая, гардеробная.

летняя кухня
летняя кухня

Массивная веранда перед домом, огромное пространство зоны отдыха. Полноценная гостинная. Из гостиной - огромное окно - окна в пол и во всю стену.

Выход из гостиной на веранду через сдвижную дверь, с возможностью открывания в полпроема.

дом на склоне с видом на море
дом на склоне с видом на море

Второй этаж уже стандартно. 2 спальни с видом на юг, на море и долину. Одна спальня хозяйская, с собственными ванной и гардеробной комнатой.

Другие комнаты оснащены гардеробными шкафами, на этаже для них предусмотрен свой санузел. Задняя спальня может легко измениться в кабинет или детскую комнату.

дом на склоне проект
дом на склоне проект

Во всех комнатах и коридорах есть естественное освещение. В данной статье указана планировка дома, без прилегающей инфраструктуры.

Так же запроектирован гараж, бассейн и придомовая территория.

проект #gorny_dreamhouselife #домнасклоне #проектдома