Добавить в корзинуПозвонить
Найти в Дзене

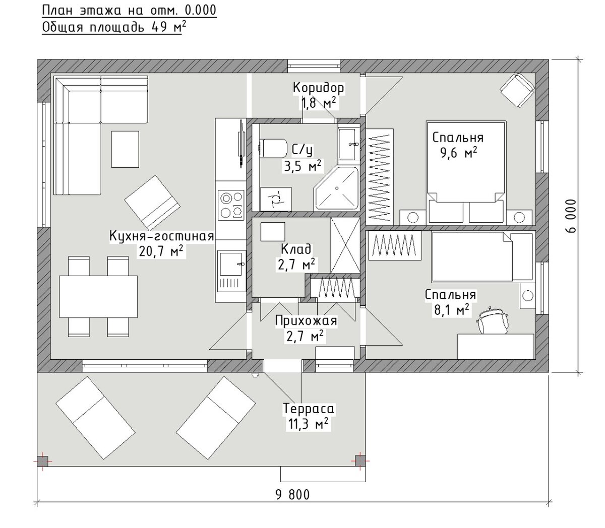
Двухспаленный мини-домик 9,8*6м

На примете есть еще один мини-домик - двухспаленный. Он еще не совсем проработан в смысле архитектуры, но основа вполне разумна.
Есть и БАРН - вариант тоже..
Поскольку это мини-домик, то пытаемся сделать максимально
Одна из главных проблемок этого домика - размещение газового котла по нормам наших газовщиков. Если вы хотите или надеетесь получить магистральный газ, то их хорошо бы соблюсти. Архитекторы думают, а пока
Варианты такие:
- в гостиной, в одном из кухонных шкафов. В шкафу потому, что этот гаджет совсем не бесшумный.
- в кладовке, заменив дверь в нее на две раскладывающиеся створки без упоров в центре, как показывали вход в салун в старых ковбойских фильмах.. тогда для газовщиков прихожая и кладовая станут одним объемом, достаточным для размещения котла Поскольку домик просят и хочется сделать весьма бюджетным, пока вырисовываются следующие элементы комплектации - стены 25 см газосиликт Д400 (возможно удастся взять 300мм д300, но это будет заметное уд

На примете есть еще один мини-домик - двухспаленный. Он еще не совсем проработан в смысле архитектуры, но основа вполне разумна.

Планировка 6*9.8
Планировка 6*9.8
двухскатный вид
двухскатный вид


односкатный 6*9,8
односкатный 6*9,8

Есть и БАРН - вариант тоже..

Поскольку это мини-домик, то пытаемся сделать максимально
Одна из главных проблемок этого домика - размещение газового котла по нормам наших газовщиков. Если вы хотите или надеетесь получить магистральный газ, то их хорошо бы соблюсти. Архитекторы думают, а пока

Варианты такие:
- в гостиной, в одном из кухонных шкафов. В шкафу потому, что этот гаджет совсем не бесшумный.
- в кладовке, заменив дверь в нее на две раскладывающиеся створки без упоров в центре, как показывали вход в салун в старых ковбойских фильмах.. тогда для газовщиков прихожая и кладовая станут одним объемом, достаточным для размещения котла

Поскольку домик просят и хочется сделать весьма бюджетным, пока вырисовываются следующие элементы комплектации

- стены 25 см газосиликт Д400 (возможно удастся взять 300мм д300, но это будет заметное удорожание)
- веранда - включена, с крышей на деревянных столбах. Фундамент - монолитная бетонная лента. Поверхность перекрытия пока непонятна.
- фундамент - монолитная лента с мягкой отмосткой, в несъемной опалубке из пенопласта.
- утепленный пол по грунту, с коммуникациями под ним. в полу - 5 см пенопласта. Почему не 10: грунт под теплым домом зимой не остывает ниже +6 +7. Это намного теплее зимнего воздуха за бортом. Поэтому из этого утепления 5 см можно сократить.
- кровля - приличный профнастил
- с большой вероятностью перекрытия над этажом - не будет. Вместо него - скаты крыши и утеплением по ним
- утепление - пенопласт ПСБС между стропилами. Видимо толщиной 15 см.
- окна в пол на веранде - баловство, убираем/ А обычные - оставляем.
- дверь входная - отечественная, металл.
- ввод канализации и разводку ее в доме - делаем.
- разводку 35 точек электропроводки - делаем. Порядок подключения согласовывается с заказчиком отдельно.

Отделка
Внутренняя
- натяжной потолок
- на полу - ламинат
- стены оштукатурены и поклеены обоями под покраску.
- локально на полу и части стен - плитка. (санузел и фартук на кухне)
- пол на веранде - пока не понятно. Но хочется плитку.
- снаружи - швы перетерты шпаклевкой и наружные стены покрашены толстой фасадной краской. Это не идеально ровно, но вполне прилично и практичною.

Чтобы придумать бюджетную конструкцию такого домика, мне надо потратить довольно много времени - придумать его конструкцию, отмоделить его в Архикаде, посчитать объемы. Если кому этот домик интересен, пишите в комментариях - это поднимет его приоритет и ускорит эту работу. А пока видимо опишу строку большого домика, стройка которого сейчас заканчивается.