Добавить в корзинуПозвонить
Найти в Дзене
Все о ремонте квартир

Отличный ремонт в"однушке" 40 м2, которую купили для мамы.

Небольшую квартиру в новом доме дочь купила для своей мамы пенсионного возраста. При выборе недвижимости отталкивались от того, чтобы она располагалась недалеко от их собственного жилья и от школы внуков. И теперь по завершению ремонта здесь частенько собираются три поколения одной семьи. Квартира была приобретена без отделки и перегородок, и для того, чтобы "бетонную коробку" превратить в полноценную комфортную квартиру дочь обратилась к архитектору Наталье Хиловой. План квартиры после ремонта и установки мебели После разработки нового планировочного решения на небольшой площади удалось организовать: кухню-гостиную, гардеробную при спальне хозяйки, хозблок, а на лоджии, которую утеплили и присоединили к кухне оформить рабочее место для внуков и столовую группу. Кухня-гостиная По плану от застройщика мокрая зона располагалась сразу у входа справа - в процессе ремонта ее сместили ближе к окну, где позже и оформили рабочую и столовую зоны. А на ее месте организовали небольшую гостиную,

Небольшую квартиру в новом доме дочь купила для своей мамы пенсионного возраста. При выборе недвижимости отталкивались от того, чтобы она располагалась недалеко от их собственного жилья и от школы внуков. И теперь по завершению ремонта здесь частенько собираются три поколения одной семьи.

Квартира была приобретена без отделки и перегородок, и для того, чтобы "бетонную коробку" превратить в полноценную комфортную квартиру дочь обратилась к архитектору Наталье Хиловой.

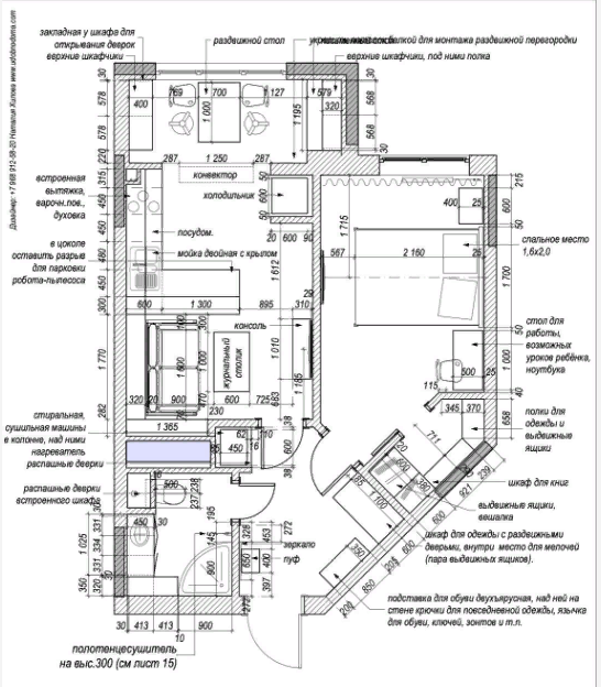
План квартиры после ремонта и установки мебели

После разработки нового планировочного решения на небольшой площади удалось организовать: кухню-гостиную, гардеробную при спальне хозяйки, хозблок, а на лоджии, которую утеплили и присоединили к кухне оформить рабочее место для внуков и столовую группу.

Кухня-гостиная

По плану от застройщика мокрая зона располагалась сразу у входа справа - в процессе ремонта ее сместили ближе к окну, где позже и оформили рабочую и столовую зоны. А на ее месте организовали небольшую гостиную, в которой благодаря тому, что за стенкой со стороны коридора организовали постирочную, получилось сделать полки для книг и других памятных вещей мамы.

Кухню и гостиной зонировали не только барной стойкой с вместительными полками, но и цветом мебели, и напольным покрытием: плитка + инженерная доска.

Вход на лоджию отделили раздвижной стеклянной перегородкой (что соответствует закону) - для тепла со стороны кухни установили напольный конвектор. (Обеденную группу пока не купили)

-3

Прихожая

Несмотря на небольшую площадь здесь получилось разместить все необходимое: вешалку с обувницей, шкаф для хранения и хоз. блог со стиральной машинкой и водонагревателем. Для комфорта под керамогранит на полу уложили теплый пол.

Спальня

Отличное решение использовала дизайнер при планировки спальни: скошенный угол, который на первый взгляд выглядит большим недостатком, превратила в плюс - оформив здесь гардеробную за зеркальной раздвижной дверью. При этом и сама комната приобрела практически правильную прямоугольную форму.

Санузел.

Унитаз оставили на месте возле коммуникаций, которые в процессе ремонта зашили гипсокартоном, а доступ к ним закрыли мебельными фасадами, таким образом общий интерьер выглядит стильно и гармонично. Здесь Наталья так же, как и во всей квартире позаботилась о функциональности, и по ее чертежам была выполнена мебель с достаточным количеством мест хранения, которая заполнила это небольшое помещение.

В итоге получилась уютная стильная, а главное функциональная квартира для комфортного проживания хозяйки и приема гостей.

Спасибо, что заглянули в мою студию! Понравилось ставьте лайки! Пишите комментарии! И не забывайте подписываться!