Добавить в корзинуПозвонить
Найти в Дзене
Эдуард Суханов

Стол для ребенка заказчик сделал не у нас

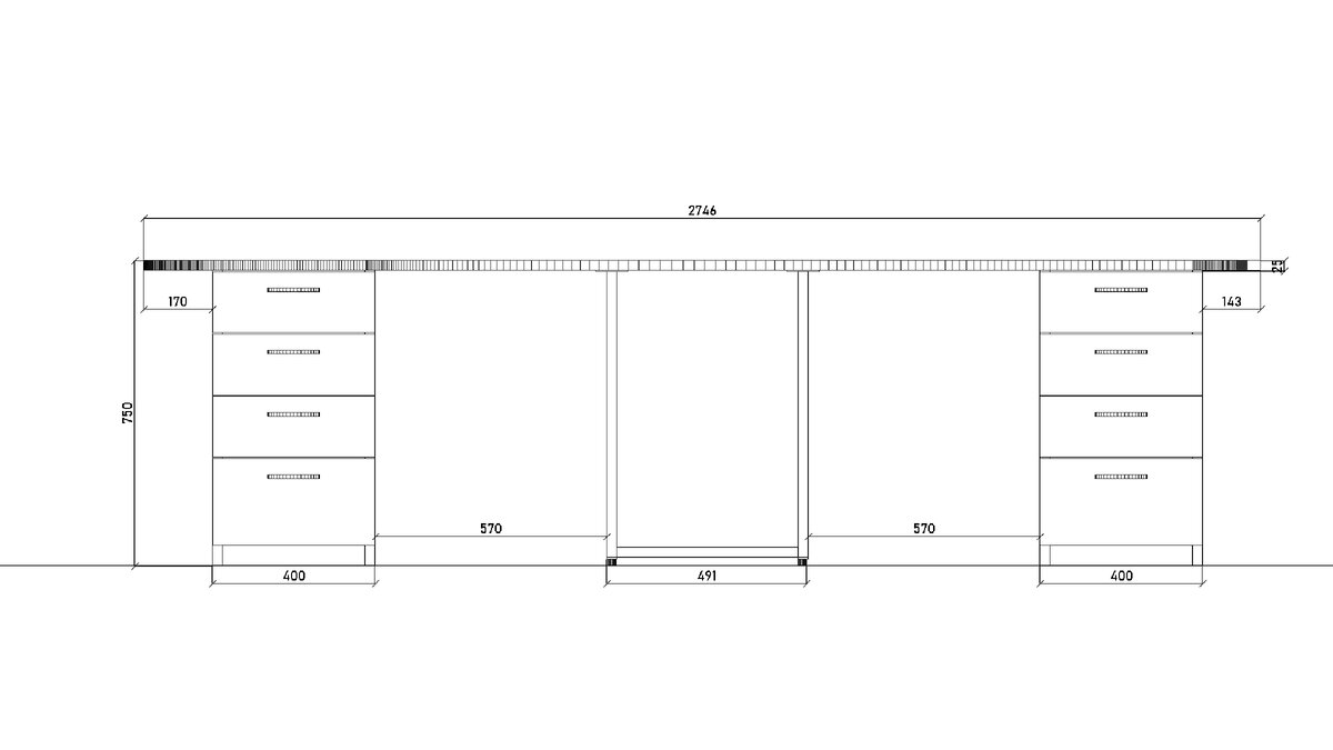
Я показывал кажется этот стол, его проект. Клиент сделал для двух дочек сестёр комнату, в розовом стиле. Там не только розовый, а серый, белый, древесно-желтый, а то сейчас опять скажите - фу какая гадость и т.п. Нормально получилось. Просто там где стоит светло-серый стол, розовая стена и одна секция шкафа розовая, поэтому может показаться что все в розовом тонет. Клиент наш постоянный, если можно так сказать, да еще мой сосед, хотя познакомились через другого клиента. Мы ему сделали гардеробную, прихожую, постирочную. Вдогонку попросил еще и стол спроектировать и сделать. Я предусмотрел вырезы в тумбах под решетку отопителя в полу и поставил третий подпор в виде металлической ножки по середине, но сдвинул ее ближе к окну. Дальше нужно было разобраться с формой столешницы. Я взял огромный кусок картона от полеты Эггера, притащил его к клиенту, расстелил на полу. Ползая на коленях, я задал ручкой форму столешницы, естественно исходя из размера листа ЛДСП. Вообще, клиент хотел стол

Я показывал кажется этот стол, его проект. Клиент сделал для двух дочек сестёр комнату, в розовом стиле. Там не только розовый, а серый, белый, древесно-желтый, а то сейчас опять скажите - фу какая гадость и т.п. Нормально получилось. Просто там где стоит светло-серый стол, розовая стена и одна секция шкафа розовая, поэтому может показаться что все в розовом тонет.

Клиент наш постоянный, если можно так сказать, да еще мой сосед, хотя познакомились через другого клиента.

Мы ему сделали гардеробную, прихожую, постирочную. Вдогонку попросил еще и стол спроектировать и сделать.

Я предусмотрел вырезы в тумбах под решетку отопителя в полу и поставил третий подпор в виде металлической ножки по середине, но сдвинул ее ближе к окну.

Дальше нужно было разобраться с формой столешницы. Я взял огромный кусок картона от полеты Эггера, притащил его к клиенту, расстелил на полу.

Ползая на коленях, я задал ручкой форму столешницы, естественно исходя из размера листа ЛДСП.

Вообще, клиент хотел столешницу из МДФ. Мы нашли компанию которая её сделает по шаблону, но цена была 25000 рублей, МДФ 25мм., с покраской с двух сторон, глянец.

Во-первых нам сказали что красить столешницы в глянец нет смысла, могут быть трещины от эксплуатации, не целесообразно.

Ну а во-вторых цена серьезная.

Решили делать из толстого ЛДСП 25мм., либо из 32-го, это когда две плиты склеиваешь по 16мм. и получается 32мм.

После разметки очертаний столешницы, я дома у себя, отрезал все лишнее ножницами, естественно получилось не идеально ровно, все линии нужно было выводить в цеху сначала на шаблонах или переводить размеры в программу для станка на ЧПУ. Тогда все будет ровно и красиво.

Ну так вот.

Мы объявили клиенту цену за этот стол солидную, ему цена не понравилась. За меньшее мы работать не захотели, говорю честно.

Клиент сказал дорого и пропал.

Позже появился, говорит - скоро 1 сентября, а стола еще нет, делайте, я согласен.

Честно сказать делать мне его уже не хотелось. Я помнил что клиенту стол делать у нас дорого, желания у него особого нет тратить такие деньги. А у меня уже душа не лежит, зная что клиенту жалко деньги за него будет отдавать... Ну это - психологическая штука))) - как друг мой говорит. Короче я не захотел его делать и начал всячески уговаривать сделать его в другой фирме.

Клиент мне рассказал, что куда только не обращался, либо цена еще больше, либо дешево, но столешница прямоугольником и тонкая.

Тогда я ему посоветовал обратиться в одну компанию в г. Королев, в которой сами иногда заказываем отдельные детали. У них целиковые изделия дорогие получаются, но если заказывать одну, две детали, даже выгодней, чем целый лист покупать.

Клиент к ним обратился, у них получилось чуть дешевле нашей цены, на 5 тысяч кажется. Он согласился.

Позвонил, попросил шаблон отдать из картона. Мы встретились, я его отдал.

В фирме изготовители изменили немного конструкцию, и сделали даже лучше моего вариант. Я предлагал просто ножку поставить на пол, третью, а они сварили железный подпор под столешницу от тумбы до тумбы.

И вот на днях я сам позвонил клиенту, спросил - сделали вам стол?

Вот что он рассказал. Да, сделали, но не с первого раза. Первый раз сделали столешницу точь в точь как я ее нарисовал и обрезал на картоне. То есть все неровности, неточности волн и линий были повторены. Представляете?))) Мастер подумал - ну если так нужно, так и сделаю.

Естественно заказчик сказал - вы что, ку-ку? это же примерный шаблон, я же объяснял и ваш мастер в салоне сказал - подправим, сделаем красиво.

Оказалось тот человек кто обещал доработать шаблон в отпуске)

Столешницу переделали, стол привезли, поставили.

Стол делали не мы
Стол делали не мы

В целом супер, только в этот раз столешница отколотая, обещали еще раз поменять.

К чему я это вообще развел, эту бодягу со столом. Я работал в мебельной фирме коммерческим директором, уже рассказывал. У нас почти на каждом углу творился бардак на производстве, анархия какая-то. Начальник производства от сохи как говориться, но это ладно, он просто вовремя директору задницу вылизывал, за счет этого и держался.

Ко мне клиенты порой разъярённые попадали, орали как резанные. Сам слушаешь и волосы дыбом вставали от бардака. Начинаешь успокаивать, берешь на личный контроль, но это же неправильно! Ходил к директору, жаловался, ругался 100 раз с начальником производства, успокоительные пил. Это называется - офисные войны. Мы на производство "бочку" катили, а они на менеджеров-продажников. Так и жили.

Конечно фирма заработала на этом столе, но сколько они потратили и еще потратят сил и времени, пока все исправят и сделают как нужно? Обыватель думает - пффф взял кусок ЛДСП и еще отрезал, все равно за копейки его покупаете у Эггера.

Да, ЛДСП когда много берешь стоит дешево, но людям платят зарплату, оплачивают электричество, расходники тратятся в виде пил, фрез, клея и т.п. Технолог должен задание подготовить, кладовщика задействовать. Опять логиста отвлекать нужно, грузчики, машина, доставка, установка. Я как это все вспомню... и думаю, как хорошо что мы мелочь.

В фирме два главных человека есть для клиента, тот кто принимает заказ, менеджер или как угодно он у вас называется. И замыкающее звено грузчик или сборщик. Тот, кто с клиентом последний контактирует. Вот их муштровать нужно и платить им хорошо. Потому что первый задает тон, а последний оставляет послевкусие. Последний даже главней часто, если умеет с клиентом общаться. Даже проблемы все решит, успокоит, все урегулирует от лица фирмы, клиент останется довольный обратиться в фирму еще раз, да другим посоветует.