Добавить в корзинуПозвонить
Найти в Дзене

ХУТОРОК 77 м2 - проект одноэтажного дома 9х14 с 3 спальнями, террасой-гульбищем, из газобетона с двухскатной крышей.

Продолжаем тему "апгрейта" старых популярных проектов ИНВАПОЛИС. Новые - это не хорошо забытые, а прокачанные старые проекты :) На этот раз трансформациям подвергли СЛОБОДУ - маленький, но удобный трёхкомнатный дом для строительства в глубине участка. 👇 Проект СЛОБОДА СЛОБОДА лёгким движением руки архитектора превратилась в элегантный ХУТОРОК. Но не просто сама превратилась. Часть изменений выполнена по пожеланиям читателей нашего канала. Главные пожелания - самую малость попросторнее и максимально простая крыша. 👇 Ещё дома для строительства в глубине участка Что изменилось: Итог - проект компактного, недорогого и вполне симпатичного домика для семьи из 3-6 человек ► Чтобы не пропускать публикации, реагируйте лайком 👍 и подписывайтесь на канал, комментируйте, тогда нейросети будут показывать нас вам чаще :) ► Получать обзоры наших проектов и следить за новостями и можно также в ТЕЛЕГРАММ-КАНАЛЕ ИНВАПОЛИС – подписывайтесь, контент немного отличается 😊

Продолжаем тему "апгрейта" старых популярных проектов ИНВАПОЛИС.

Новые - это не хорошо забытые, а прокачанные старые проекты :)

На этот раз трансформациям подвергли СЛОБОДУ - маленький, но удобный трёхкомнатный дом для строительства в глубине участка.

👇 Проект СЛОБОДА

СЛОБОДА 76 м2 - проект одноэтажного трёхкомнатного дома из газоблоков
Инваполис - проекты рациональных домов 24 октября 2021

СЛОБОДА лёгким движением руки архитектора превратилась в элегантный ХУТОРОК. Но не просто сама превратилась. Часть изменений выполнена по пожеланиям читателей нашего канала.

Главные пожелания - самую малость попросторнее и максимально простая крыша.

👇 Ещё дома для строительства в глубине участка

ШЕСТЬ домов и ТРИ домика - проекты для строительства у дальней границы участка
Инваполис - проекты рациональных домов 7 июля 2020
Четыре проекта одноэтажных дома с тремя спальнями для строительства в глубине участка.
Инваполис - проекты рациональных домов 28 января 2023

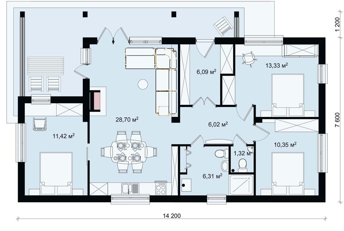
Что изменилось:

  • Дом подрос немного. На 7 м2. Чуть-чуть за счет увеличения габаритов, а чуть-чуть за счет уменьшения толщины наружных стен.
  • Конструктив упростился. Стены сделали теплее и тоньше (газоблок D500 заменили на D400 - для одноэтажников нормативно), внутри оставили только 2 столба (по нагрузке более чем достаточно). И главное, запроектировали двухскатную крышу, что значительно удешевляет и упрощает кровельные работы.
  • Планировка стала удобнее. Комнаты побольше, в ванной можно установить котёл без нарушения норм. Появилась терраса, соединяющая оба входа - гуляй не хочу.
КАК ЖИТЬ УЮТНО - принципы комфортной планировки дома
Инваполис - проекты рациональных домов 14 января 2023
  • Всё "мокоре" поместили компактно, на один стояк. Не очень важно, но приятный бонус.
А прихожая - то какая просторная! Любо-дорого.
А прихожая - то какая просторная! Любо-дорого.

Итог - проект компактного, недорогого и вполне симпатичного домика для семьи из 3-6 человек

  • Заказать документацию можно на страничке проекта дома на сайте бюро ИНВАПОЛИС.
  • Другие проекты одноэтажных домов ИНВАПОЛИС здесь

► Чтобы не пропускать публикации, реагируйте лайком 👍 и подписывайтесь на канал, комментируйте, тогда нейросети будут показывать нас вам чаще :)

► Получать обзоры наших проектов и следить за новостями и можно также в ТЕЛЕГРАММ-КАНАЛЕ ИНВАПОЛИС – подписывайтесь, контент немного отличается 😊