Добавить в корзинуПозвонить
Найти в Дзене

Проект квартиры-студии 25 кв.м.

Проект студии для молодой девушки в ЖК "Хорошевский". В работу досталось единое пространство, которое нужно было грамотно зонировать. В итоге с помощью перегородок и расположения мебели в квартире выделили кухню с барной стойкой; спальную зону; большую зону хранения с рабочим местом; санузел; прихожую. Общей характеристикой маленьких квартир является функциональность - каждый метр площади должен быть функциональным и использоваться по назначению. Для зонирования лучше использовать легкие перегородки из стекла или реечные, мебель. Также визуально можно зонировать с помощью акцентных цветов, новых фактур и материалов отделки. У заказчицы достаточно большой гардероб, поэтому много места отдано для системы хранения. При входе одна секция в шкафу отведена для хозяйственных нужд (ее отделили непрозрачным черным стеклом), остальные под одежду. Затем шкаф плавно переходит в рабочее место с тумбой, телевизором и колонкой-бульдогом, а завершается секцией под домашнюю библиотеку. В студии раз

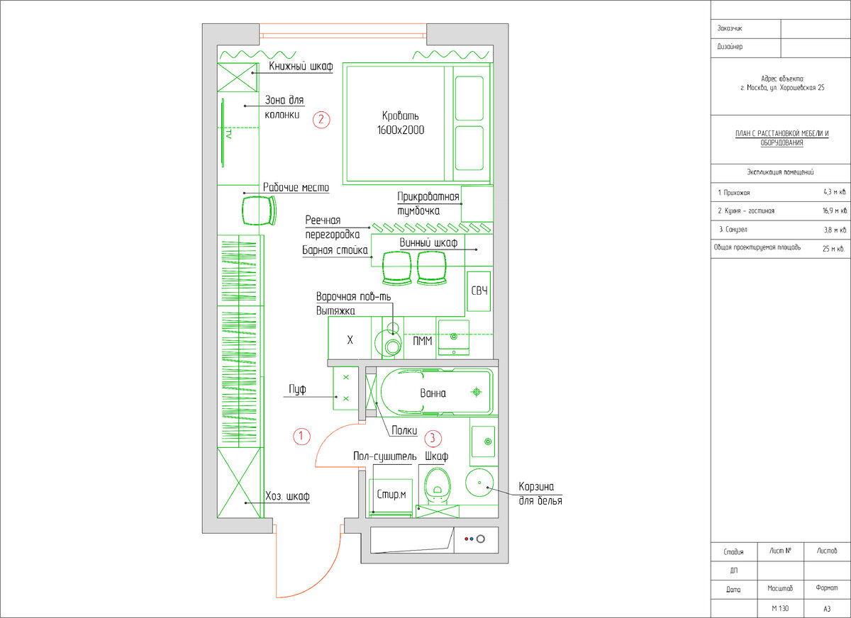
Проект студии для молодой девушки в ЖК "Хорошевский". В работу досталось единое пространство, которое нужно было грамотно зонировать. В итоге с помощью перегородок и расположения мебели в квартире выделили кухню с барной стойкой; спальную зону; большую зону хранения с рабочим местом; санузел; прихожую.

Планировочное решение квартиры-студии.
Планировочное решение квартиры-студии.
Общей характеристикой маленьких квартир является функциональность - каждый метр площади должен быть функциональным и использоваться по назначению. Для зонирования лучше использовать легкие перегородки из стекла или реечные, мебель. Также визуально можно зонировать с помощью акцентных цветов, новых фактур и материалов отделки.
Зона прихожей.
Зона прихожей.
Прихожая и жилая зона со системой хранения.
Прихожая и жилая зона со системой хранения.

У заказчицы достаточно большой гардероб, поэтому много места отдано для системы хранения. При входе одна секция в шкафу отведена для хозяйственных нужд (ее отделили непрозрачным черным стеклом), остальные под одежду. Затем шкаф плавно переходит в рабочее место с тумбой, телевизором и колонкой-бульдогом, а завершается секцией под домашнюю библиотеку.

 Зоны спальни и кухни.
Зоны спальни и кухни.
Реечная перегородка зонирует пространство кухни и спальни.
Реечная перегородка зонирует пространство кухни и спальни.

В студии разместили полноценную небольшую кухню с варочной панелью, СВЧ, посудомойкой, холодильником и мойкой. Вместо стола сделали барную стойку. Кухню отделили от спальной зоны реечной перегородкой. В интерьере за основу взят стиль лофт. В качестве отделочных материалов использовали бетон, дерево, штукатурку, стекло. Основными цветами стали серый, белый, черный и древесные оттенки. Для того, чтоб больше подчеркнуть стиль потолки решили оставить бетонными и покрыть их только лаком.

Санузел. Тумба под раковину из станины Зингер.
Санузел. Тумба под раковину из станины Зингер.
Санузел. Шкаф над инсталляцией.
Санузел. Шкаф над инсталляцией.
Санузел. Ванна и встроенные полочки для косметических средств.
Санузел. Ванна и встроенные полочки для косметических средств.

Санузел выполнен в светлых тонах. Для акцента использовали плитку под состаренный персидский ковер. Также для продолжение винтажной темы тумбу под раковину сделали из станины швейной машины Зингер, на нее заказали столешницу из слэба дуба.

#студиядизайн #студия #дизайнванной #дизайнквартиры #интерьерныйдизайн #москва #ремонт #лофтинтерьер #лофтдизайн