Найти в Дзене

Дизайн-проект двухкомнатной квартиры в темных оттенках с проходной гардеробной как в известном сериале 🖤

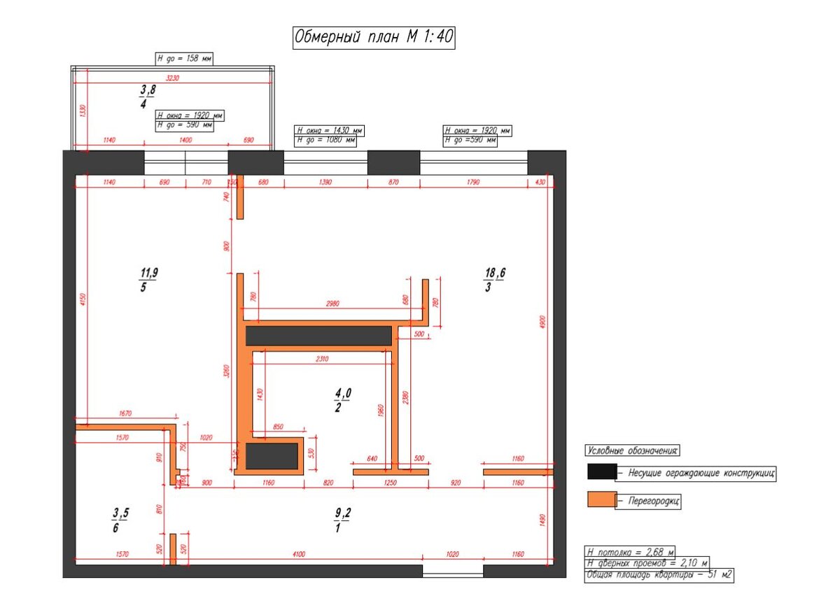
Нам всегда интересно разрабатывать необычные дизайн-проекты с нестандартными решениями. Сегодня мы покажем вам дизайн-проект двухкомнатной квартиры 51м2 в современном стиле. Наш заказчик - молодой человек - обратился к нам с целью разработки полного дизайн-проекта своей квартиры в новостройке. При обсуждении стиля и цветовой гаммы с дизайнером он четко обозначил, какой результат хочет получить: квартира в темных оттенках с полностью чёрной спальней. Планировочное решение По геометрии от застройщика квартира — евродвушка с необычной формой кухни-гостиной и двумя входами в спальню. В целом нашего заказчика устраивала изначальная планировка, но были всё-таки некоторые пожеланию по изменению конфигурации квартиры: слишком длинный коридор, в котором не было необходимости и лишние перегородки в зоне кухни-гостиной. Мы разработали планировочное решение, которое соответствует всем требованиями и критериям нашего клиента: придумали, как с умом использовать площадь коридора и как минимизир
Оглавление

Нам всегда интересно разрабатывать необычные дизайн-проекты с нестандартными решениями.

Сегодня мы покажем вам дизайн-проект двухкомнатной квартиры 51м2 в современном стиле.

Наш заказчик - молодой человек - обратился к нам с целью разработки полного дизайн-проекта своей квартиры в новостройке. При обсуждении стиля и цветовой гаммы с дизайнером он четко обозначил, какой результат хочет получить: квартира в темных оттенках с полностью чёрной спальней.

Планировочное решение

-2

По геометрии от застройщика квартира — евродвушка с необычной формой кухни-гостиной и двумя входами в спальню.

В целом нашего заказчика устраивала изначальная планировка, но были всё-таки некоторые пожеланию по изменению конфигурации квартиры: слишком длинный коридор, в котором не было необходимости и лишние перегородки в зоне кухни-гостиной.

-3

Мы разработали планировочное решение, которое соответствует всем требованиями и критериям нашего клиента: придумали, как с умом использовать площадь коридора и как минимизировать количество перегородок, сохранив при этом визуальное разделение помещений.

Первое и самое большое изменение — это гардеробная. По планировке от застройщика гардеробная также была предусмотрена: она была расположена в прихожей слева от входа. Поскольку наш заказчик сразу же сообщил, что не нуждается в такой большой прихожей, мы приняли решение за счет площади прихожей увеличить площадь гардеробной комнаты. Так как изначально из прихожей был один из входов в спальню, мы получили проходную гардеробную 5,5м2 как у Кэрри Брэдшоу из знаменитого сериала "Секс в большом городе".

Для того, чтобы убрать перегородки и создать ощущение единого пространства "общей" зоны, мы использовали стильные реечные перегородки, которые идеально справились с поставленной задачей.

Основной цвет — серый гранит: мы использовали его для отделки стен. Вокруг него стоится вся цветовая композиция квартиры.

Прихожая

Прихожая — это первое место, в которое мы попадаем, заходя в квартиру. Поскольку мы уменьшили площадь помещения, у нас получилась небольшая, но функциональная прихожая.

-4

Справа от входа мы расположили большую систему хранения в виде встроенного шкафа купе. Было принято решение использовать 2 варианта отделки дверей: зеркальная поверхность и дверь с текстурой дерева с теплым подтоном.

Справа от двери сделали небольшую вешалку с полкой для обуви и сиденьем. Вся конструкция выполнена из металла в черном цвете. Необычности ей добавляет форма и использование металлической решетки в основании полки.

-5

Напротив шкафа расположен вход в гардеробную, а справа — в санузел.

Все межкомнатные двери в квартире — филенчатые и выполнены в графитовом цвете.

В качестве напольного покрытия мы использовали керамогранит 600х600 Монте Тиберио фирмы Kerama Marazzi c текстурой мрамора. Напольное покрытие в санузле и ванной уложено единым контуром.

Кухня-гостиная

Кухня-гостиная — это самое большое помещение в квартире. Её площадь составляет 17,7м2. Благодаря необычной геометрии от застройщика: Г-образной форме помещения, — нам удалось выделить сразу несколько функциональных зон: зона кухни, обеденная зона и зона отдыха.

-6

Зона кухни расположена в небольшом коридорчике, который ведет в спальню: именно здесь расположен второй вход.

Благодаря "коридорчику" нам удалось расположить полноценный кухонный гарнитур с рабочей поверхностью необычным способом: по двум сторонам. Прямо под окном мы разместили небольшой, но удобный остров с системами хранения в виде ящиков. Расположенная рядом с окном рабочая поверхность — это один из наиболее популярных приемов в дизайн-проектах больших загородных домов: всегда есть доступ света и можно любоваться тем, что происходит за окном. Рядом с рабочей поверхностью расположен встраиваемый холодильник.

На противоположной стороне расположена остальная часть кухонного гарнитура: нижние шкафы со встраиваемой техникой, верхние шкафы под потолок и мойка.

Для выбора цвета кухонного гарнитура отталкивались от основной концепции. Мы остановились на сочетании нескольких оттенков: графитового, серого и текстуры дерева, которая идеально подходит к темному интерьеру. Графитовый цвет использовали на наружной стороне рабочей поверхности, для ниши со встраиваемым холодильником и на фасадах верхних шкафов, нижние фасады — с текстурой дерева, которая разбавляет темный интерьер и добавляет в него тепла. Серый цвет ввели при помощи столешницы из искусственного камня и кухонного фартука, который облицован керамогранитом Серфейс Стил фирмы Italon.

-7

Пространство гостиной разделено на обеденную зону и на зону отдыха.

В обеденной зоне мы установили обеденную группу на 4 человека в такой же цветовой гамме, что и кухонный гарнитур. Особым пожеланием заказчика было создать в этой зоне эффект барной стойки: сделать полноценный стол, но чтобы он был таким же высоким, какой принято делать барную стойку.

-8

В зоне отдыха мы разместили диван с ТВ-зоной. Благодаря планировке от застройщика в этой зоне у нас была сделана ниша, которая и стала визуальным центром помещения. Это место мы дополнительно выделили цветом: использовали в отделке декоративную штукатурку в цвете мокрого бетона. В эту же нишу мы встроили ТВ-тумбу, которая добавила дополнительные места для хранения вещей.

Изначально в зоне входа в гостиную была перегородка, часть которой мы заменили на реечную перегородку, а часть обыграли зеркалом во весь рост. Использование зеркал в интерьере — это отличный способ визуально расширить пространство и добавить света в помещение.

Особое внимание необходимо уделить освещению в кухне-гостиной: Здесь использовано 4 сценария:

  • Закарнизная подсветка в ТВ-зоне
  • Светодиодная подсветка под верхними шкафами кухонного гарнитура
  • 14 встраиваемых точечных светильников по периметру всего помещения
  • Подвесной светильник в зоне обеденной группы

Санузел

Санузел полностью соответствует общей концепции квартиры: для его отделки использовано сочетание черного и белого цветов с разными текстурами и фактурами.

Для отделки стен использован керамогранит коллекции Материя в оттенке Титанио фирмы Italon. Керамогранит с необычной текстурой камня и патинированной фактурой идеально справился с поставленной задачей.

-9

По планировке от застройщика в санузле есть ниша, в которой мы приняли решение разместить душевой поддон с строительном исполнении с прозрачной перегородкой со слайдер-дверью.

Душевой поддон в строительном исполнении — это одно из самых популярных решений отделки ванной комнаты на данный момент. Да, такая работа непроста и требует большого профессионализма, но результат стоит того: стильно, удобно и без нагромождения мебели и лишних элементов.

В санузле, конечно, же установлена инсталляция. Вопреки трендам наш заказчик решил сделать короб только в районе каркаса инсталляции и не использовать над ним никакой мебели. Вместо этого над инсталляцией поместили электрический полотенцесушитель.

-10

Наш заказчик предпочел использовать в санузле как можно меньше мебели и предметов, затрудняющих уборку, поэтому полка для накладной раковины выполнена на заказ вместе со встраиваемым шкафом. Вся мебель в санузле выполнена в черном цвете с матовой фактурой.

Шкаф в санузле предусмотрен не только для хранения всякой мелочи, но и для стиральной машины, которую клиент пожелал скрыть из виду.

В санузле использован санфаянс в белом цвете, а элементы чистовой сантехники выбраны в цвете хром.

Особое внимание стоит уделить зеркалу и светодиодной подсветке, которые визуально вытягивают помещение, создавая эффект огромного свободного пространства.

Спальня

Спальня — это последнее помещение в квартире, о котором мы вам расскажем. Идея интерьера в темных тонах началась именно в этого помещения, ведь оно выполнено полностью в черном-сером цвете со светлыми акцентами в виде мебели.

-11

Самой трудной задачей было найти подходящий цвет для покраски стен, Использовать чисто черный цвет было нельзя: полностью черный интерьер может быстро надоесть, поэтому мы использовали темно-серый цвет Tikkurilla N499 Basaltti, который при разном освещении выглядит по разному.

Само помещение спальни разделено на 2 зоны: непосредственно спальная зона и чиллаут-зона, между которыми установлена так полюбившаяся нашему заказчику реечная перегородка.

В спальной зоне мы расположили кровать на ножках с мягким изголовьем, обшитую тканью в светло-сером цвете - примерно таком же, какой использован для отделки стен в остальных помещениях квартиры, и прикроватные тумбы с графитовом цвете.

-12

В чиллаут-зоне поставили мягкое кресло и небольшой кофейный стол с круглой столешницей из металла, выполненный в черном цвете. Так же в этой зоне стене установлено зеркало. Использование зеркал в этом помещении обусловлено желанием визуально расширить площадь, добавить больше света и создать воздушное пространство.

На полу в спальне, как и на полу в кухне-гостиной уложен ламинат фирмы Egger Pro в оттенке Дуб Сантеро Табачный: на контрасте с темными стенами он добавляет в интерьер тепла и уюта.

Балкон

Балкон — это место, которому чаще всего уделяют мало внимания, превращая его в забытую часть дома. Конечно, тенденции меняются, и сейчас всё больше людей задумываются о том, как использовать площадь балкона в пользой.

У нашего заказчика балкон с французскими окнами с черными рамами, что идеально вписывается в цветовую гамму квартиры. Для отделки стен балкона выбрана такая же краска, как в спальне, а на полу — такой же керамогранит как в санузле и прихожей.

-13

С одном стороны балкона мы поместили небольшой диван с мягкими подушками, чтобы можно было отдохнуть после трудного дня, наблюдая за жизнью города.

-14

С другой стороны балкона уже ставшееся привычным решение — рабочее место: небольшой стол и мягкое кресло из той же коллекции, что и диван.

Конечно, для того, чтобы сделать на балконе зону отдыха или рабочий кабинет, на балконе должно быть, как минимум, установлено теплое остекление.

Вот таким у нас получился интерьер в темных оттенках: строгий, брутальный, но в тоже время стильный и уютный, - то, что и желал видеть наш заказчик.

Как вам дизайн-проект? Осмелились бы вы сделать интерьер в темных оттенках в своей квартире?👀

#дизайнквартиры #дизайнинтерьера #современныйстиль #темныйинтерьер #дизайн-проект #спальня #гардеробная