Найти в Дзене

Одноэтажный дом из газобетона КТ-16 141,38 кв. м. с террасой и плоской кровлей.

На нашем сайте некоторое время назад появилось несколько новых проектов домов из газобетона, один из них проект одноэтажного дома из газобетона КТ-16 с террасой (13,6 кв. м.) и плоской крышей. Планировка В доме размещены 2 спальни (15,8 кв. м.) и 2 кабинета (18,6 кв. м.), которые вы можете обустроить как вам угодно - под гостей, рабочее место или детскую. Так же в доме расположена кухня-столовая (28 кв. м.), в которой хватит места для большой семьи. В проекте данного дома так же имеются 2 санузла (6,1 кв.м. ) и котельная (9,8 кв. м.). Общие характеристики Подробнее о вариантах комплектаций проекта смотрите на нашем сайте. Наши контакты Все проекты наших домов смотрите в группе https://vk.com/market-131172071 или на нашем сайте https://keilstroy.ru/ Для заказа геологии, расчета сметы или разработки проекта — звоните по телефону +7 921 964 09 18 (WhatsApp) или пишите на почту info@keilstroy.ru. Мы работаем в Ленинградской и Московской областях. Отзывы наших клиентов https://vk.com/topic-
Оглавление

На нашем сайте некоторое время назад появилось несколько новых проектов домов из газобетона, один из них проект одноэтажного дома из газобетона КТ-16 с террасой (13,6 кв. м.) и плоской крышей.

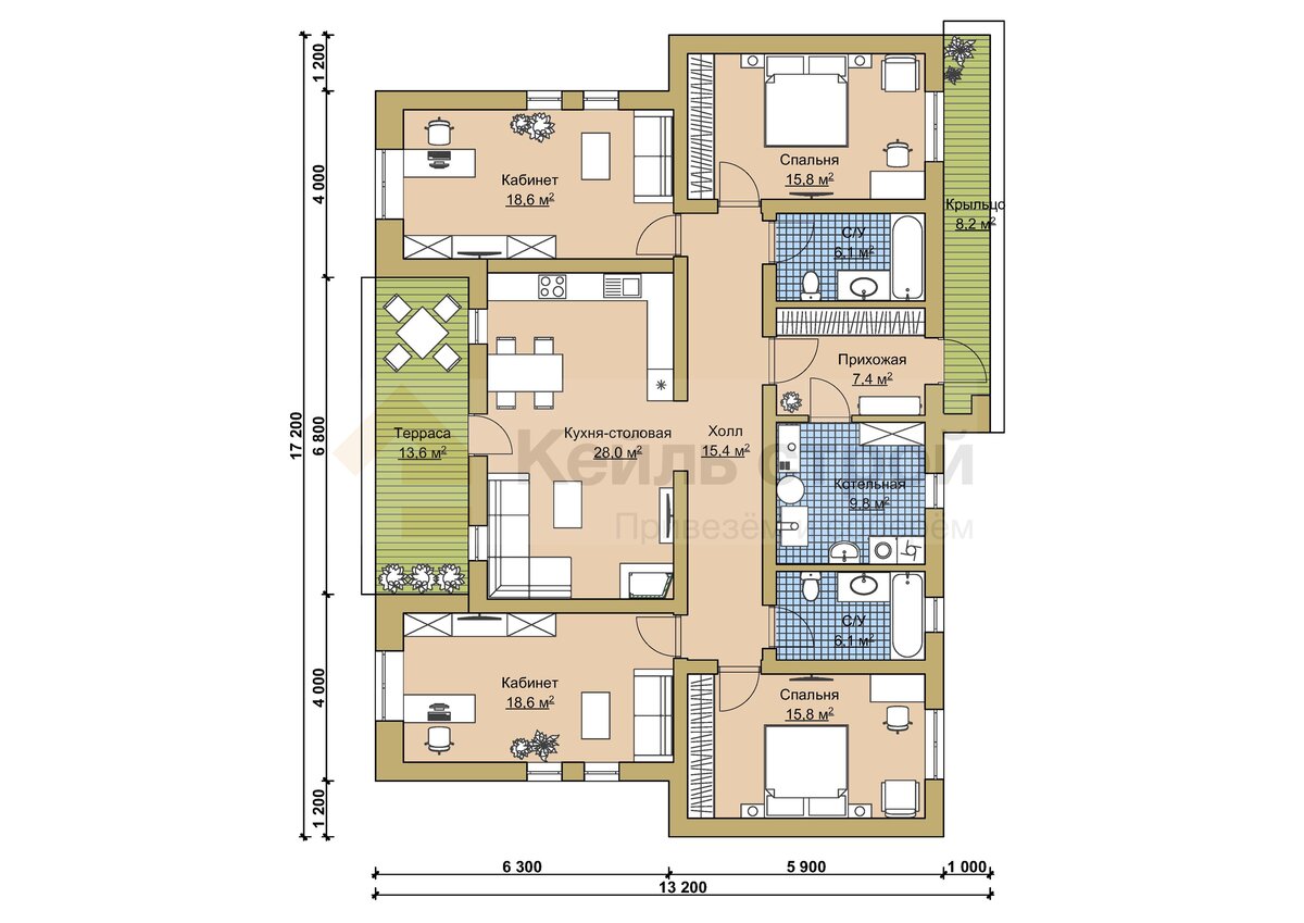
Планировка

В доме размещены 2 спальни (15,8 кв. м.) и 2 кабинета (18,6 кв. м.), которые вы можете обустроить как вам угодно - под гостей, рабочее место или детскую.

Так же в доме расположена кухня-столовая (28 кв. м.), в которой хватит места для большой семьи.

В проекте данного дома так же имеются 2 санузла (6,1 кв.м. ) и котельная (9,8 кв. м.).

Планировка дома из газобетона КТ-16
Планировка дома из газобетона КТ-16

Общие характеристики

  • Комнат: 5
  • Этажность: 1
  • Площадь: 141,38 кв. м.
  • Жилая площадь: 96,74 кв. м.
  • Дополнительно: терраса, плоская кровля

Подробнее о вариантах комплектаций проекта смотрите на нашем сайте.

Наши контакты

Все проекты наших домов смотрите в группе https://vk.com/market-131172071 или на нашем сайте https://keilstroy.ru/

Для заказа геологии, расчета сметы или разработки проекта — звоните по телефону +7 921 964 09 18 (WhatsApp) или пишите на почту info@keilstroy.ru. Мы работаем в Ленинградской и Московской областях.

Отзывы наших клиентов https://vk.com/topic-131172071_39515215 и на сайте https://keilstroy.ru/otzyvy

Можем ответить на все ваши вопросы Звоните +7 921 964 09 18 (WhatsApp).

Почта: info@keilstroy.ru

#домизгазобетона #проектдомаизгазобетона #дом из газобетона кт-16 #строительстводомов #кейль строй