Найти в Дзене
GREY HOUSE

Фотоотчет о ходе строительства каркасного дома по индивидуальному проекту (Каркас, стропильная система, ветрозащита, фасад)

Строим дом в КП "Тихие Зори", г.о. Солнечногорск Размеры дома - 11,5х15,4м Площадь теплоконтура - 130 м2 Планировка дома Монтаж каркаса дома Монтаж стропильной системы Ветрозащита Комплектация дома:
- Каркас дома сухой строганный 45х145мм
- Ветрозащита - JUTAVEK 115
- Пароизоляция Ютафол Н110+скотч
- Отделка снаружи скандинавская доска толщиной 21мм с заводской покраской
- Утепление - пол, потолок, стены 200мм Paroc Extra Light
- Отделка внутри - имитация бруса толщиной 16мм + гипсокартон влагостойкой 
- Отделка пола на террасе лиственницей толщиной 28мм
- Кровля - металлочерепица толщиной 0,45мм
- Окна ПВХ Rehau Grazio толщиной 70мм двойной стеклопакет 
-Двери входные - ПВХ Rehau толщиной 70мм и Финская дверь SWEDOOR Льготная ипотека от Сбербанка! Можем сделать ленточный или плитный фундамент! Подробная смета и актуальная цена по запросу! Внесение любых изменений в проект - бесплатно! Срок строительства дома - 1,5 месяца ***
Все новости читайте в нашем телеграм-канале Подписывайтесь

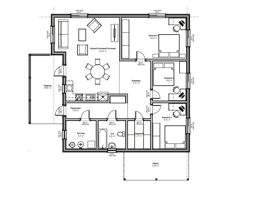
Строим дом в КП "Тихие Зори", г.о. Солнечногорск

Размеры дома - 11,5х15,4м

Площадь теплоконтура - 130 м2

Планировка дома

Монтаж каркаса дома

Монтаж стропильной системы

Ветрозащита

Комплектация дома:
- Каркас дома
сухой строганный 45х145мм
- Ветрозащита -
JUTAVEK 115
- Пароизоляция Ютафол Н110+скотч
- Отделка снаружи скандинавская доска толщиной 21мм
с заводской покраской
- Утепление - пол, потолок, стены 200мм
 Paroc Extra Light
- Отделка внутри - имитация бруса толщиной 16мм + гипсокартон влагостойкой 
- Отделка пола на террасе лиственницей толщиной 28мм
- Кровля - металлочерепица толщиной 0,45мм
- Окна
ПВХ Rehau Grazio толщиной 70мм двойной стеклопакет 
-Двери входные -
ПВХ Rehau толщиной 70мм и Финская дверь SWEDOOR

Льготная ипотека от Сбербанка!

Можем сделать ленточный или плитный фундамент!

Подробная смета и актуальная цена по запросу!

Внесение любых изменений в проект - бесплатно!

Срок строительства дома - 1,5 месяца

***
Все новости читайте в нашем телеграм-канале

Подписывайтесь на нашу группу Вконтакте

И, конечно же, подписывайтесь на нас в «Дзене»

Наши контакты:
Телефон:
8-495-504-71-33
What’s App
mail@grey-house.ru
Сайт:
grey-house.ru

#каркасныедома #каркасныйдом #каркасныйдомподключ #финскийдом #проектдома #строительствокаркасника #проектыодноэтажныхдомов #одноэтажныедома #одноэтажныйпроект #одноэтажныйкаркасныйдом