Добавить в корзинуПозвонить
Найти в Дзене
Bibik Architect

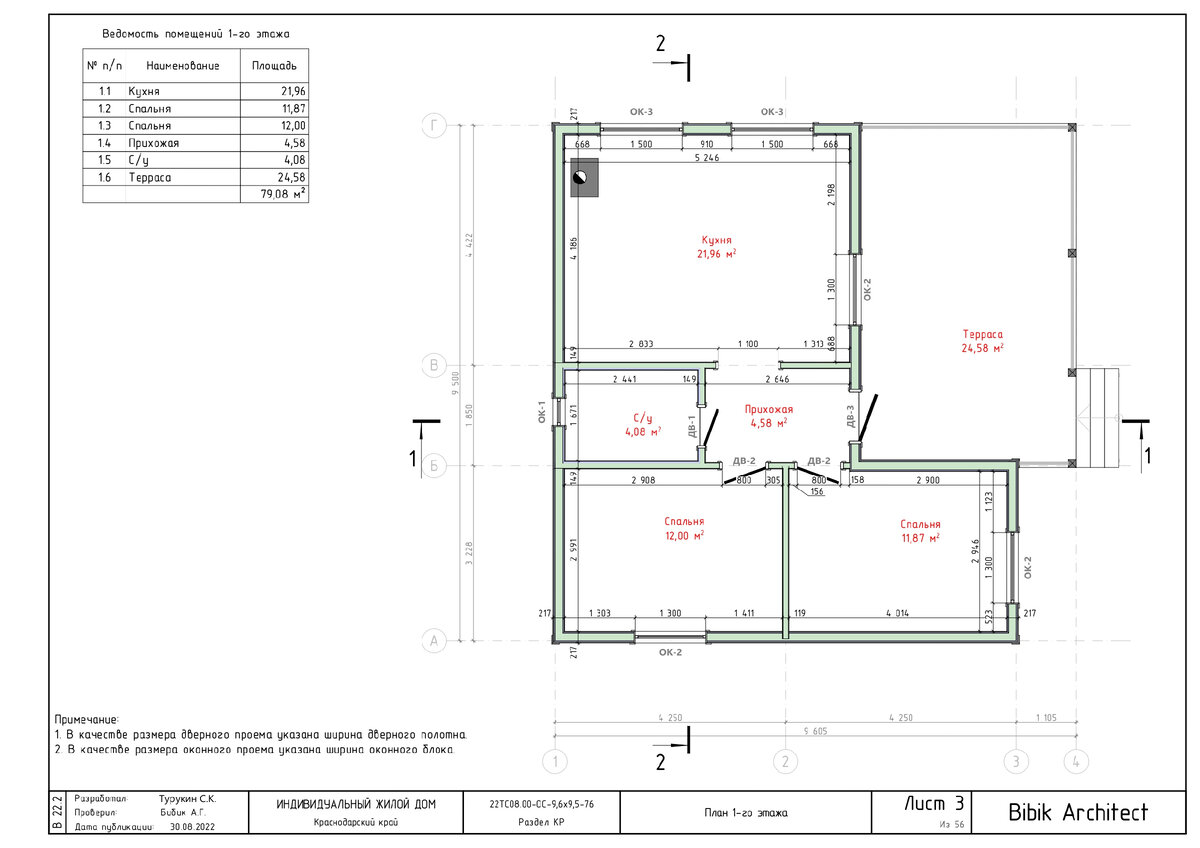
Готовый проект одноэтажного дома с терасой 9,6х9,5 - 87,7 м²

Загородный дом в классическом стиле с просторной террасой и гостиной. По желанию можно выполнить "второй свет в кухне-гостиной". Стоимость проекта (разделы АР+КР) - 8 000 руб. Расчет снеговых нагрузок произведен по III снеговому району. Возможно внесение изменений в проектную документацию согласно вашим пожеланиям, обязательно в соответствии с нормативами. Подробнее о составе проекта - ЗДЕСЬ Для связи нажми ТУТ Или просто позвони +79628668964
Оглавление

Загородный дом в классическом стиле с просторной террасой и гостиной. По желанию можно выполнить "второй свет в кухне-гостиной".

-2

-3
-4
-5
-6

Стоимость проекта (разделы АР+КР) - 8 000 руб. Расчет снеговых нагрузок произведен по III снеговому району.

Возможно внесение изменений в проектную документацию согласно вашим пожеланиям, обязательно в соответствии с нормативами.

Подробнее о составе проекта - ЗДЕСЬ

Для связи нажми ТУТ

Или просто позвони +79628668964