Найти в Дзене

Какой он, идеальный дом для всей семьи?

Всем привет! Сегодня хотим рассказать каким на наш взгляд должен быть идеальный дом для семьи с детьми? ⚪️ Не очевидно, но первое, о чем хотелось бы сказать, что дом должен быть экологичным. Это очень важно, чтобы дети не дышали парами фенола и формальдегида. Тут выбор встает в пользу каркасных домов 🔝 Сегодня можно построить каркасный дом, используя нетоксичные материалы (древесина, натуральные пропитки, современный утеплитель) ⚪️ Дом должен быть удобным и функциональным. Если площадь участка позволяет, рассмотрите постройку одноэтажного дома. Такой дом будет удобен как для детей, так и для родителей. Обязательно тщательно подумайте над планировкой. Здесь следует отталкиваться от расположения участка и учесть стороны света: на северную лучше вывести санузлы, техпомещения, лестницу, гардеробные. Остальные помещения – на юг, запад, восток, чтобы жилые комнаты были максимально освещены. Можно разделить дом на две зоны: в первой будут спальни, во второй – все остальные помещения. ⚪️ Т

Всем привет!

Сегодня хотим рассказать каким на наш взгляд должен быть идеальный дом для семьи с детьми?

⚪️ Не очевидно, но первое, о чем хотелось бы сказать, что дом должен быть экологичным.

Это очень важно, чтобы дети не дышали парами фенола и формальдегида.

Тут выбор встает в пользу каркасных домов 🔝

Сегодня можно построить каркасный дом, используя нетоксичные материалы (древесина, натуральные пропитки, современный утеплитель)

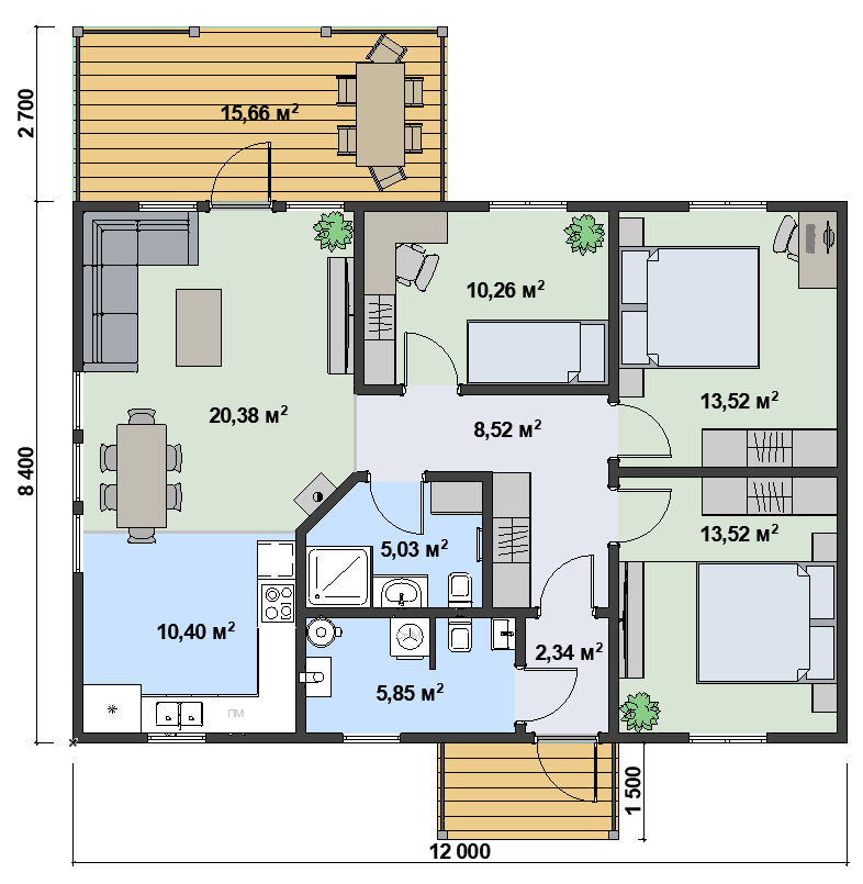
⚪️ Дом должен быть удобным и функциональным.

Если площадь участка позволяет, рассмотрите постройку одноэтажного дома. Такой дом будет удобен как для детей, так и для родителей.

Обязательно тщательно подумайте над планировкой. Здесь следует отталкиваться от расположения участка и учесть стороны света: на северную лучше вывести санузлы, техпомещения, лестницу, гардеробные. Остальные помещения – на юг, запад, восток, чтобы жилые комнаты были максимально освещены.

Можно разделить дом на две зоны: в первой будут спальни, во второй – все остальные помещения.

-2

⚪️ Третье - дом должен быть красивым и эстетичным.

Помните, что детям с раннего детства нужно прививать любовь к эстетике. Тогда у детей развиваются творческие способности, и они с детства живут в радости.

-3

Приходите к нам на консультацию, в рамках которой мы и для вас индивидуально спроектируем дом мечты.

Только представьте, что у вас уже будет проект, вся информация о строительстве, материалах, ценообразовании!

Хотите задать вопрос?

Наши менеджеры всегда на связи, и готовы на них ответить!

____________________________________________________________________________________

Мы строим Для вас/Дома/Мечту.

📡 www.norvill.ru

📞 Позвонить: +7 (916) 304-75-40

WhatsApp / Telegram: +7 (916) 304-75-40

📧 norvilcompany@yandex.ru

#проектдома #скандинавские дома #дом под ключ #одноэтажный дом #каркасное строительство #каркасное домостроение #строительство дома #строительство #каркасный дом #каркасник