Найти в Дзене

Сделал проект "КУБ" для ипотеки 3 млн. под 5% в стиле Хай Тек 120м2 дома с гаражом 50м2 на 2 авто и 3 спальнями. Террасы бонусом, в подарок.

Сейчас идёт активно поддержка со стороны государства, поэтому лавинообразно на меня обрушилась куча запросов на проекты домов по этой программе. Есть большой гараж на 2 автомобиля с выходом в дом через общий тамбур и на задний дворик к террасе от гостиной. На первом этаже выделена отдельная котельная с большой общей зоной кухни-столовой с гостиной. Лестница однозначно комфортная с организацией под ней мест для хранения хлама. На 2 этаже 3 спальни с ванной и минимизирован коридор. Выход на террасу гаража приветствуется. Оттуда можно попасть по лестнице на основную плоскую крышу дома. Белое с серым и тёмно-серым цветовое решение - правильное в данном случае. Гаражные ворота шириной 6 метров - максимальные по техническим характеристикам. Панорамные окна планируется сделать стеклопакетами. Для удешевления. Из-за роста цен на пиломатериалы - плоская крыша выходит в ЛИДЕРЫ!
3D Визуализация №1
3D Визуализация №1

Сейчас идёт активно поддержка со стороны государства, поэтому лавинообразно на меня обрушилась куча запросов на проекты домов по этой программе.

Есть большой гараж на 2 автомобиля с выходом в дом через общий тамбур и на задний дворик к террасе от гостиной.

На первом этаже выделена отдельная котельная с большой общей зоной кухни-столовой с гостиной.

Лестница однозначно комфортная с организацией под ней мест для хранения хлама.

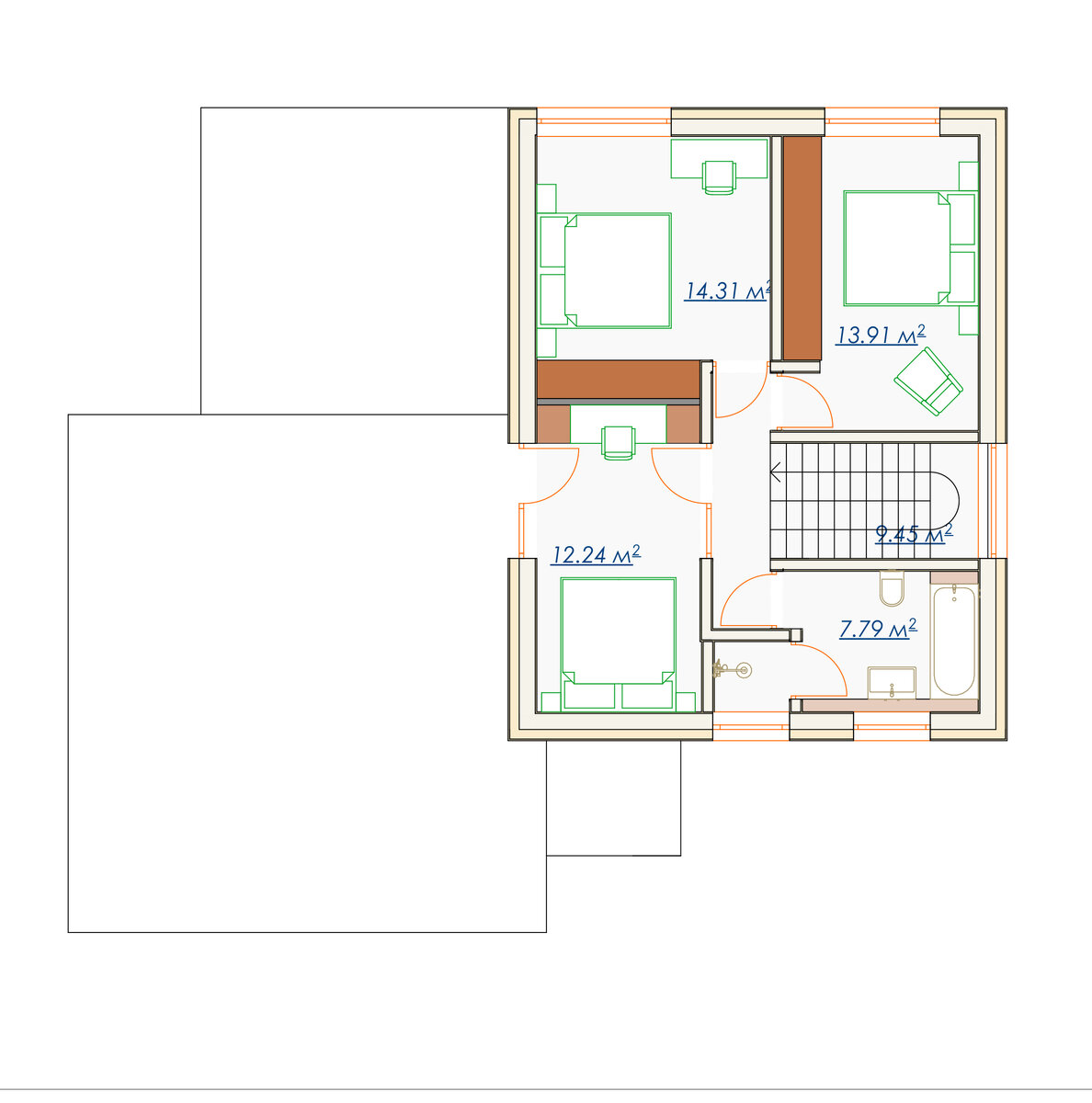
На 2 этаже 3 спальни с ванной и минимизирован коридор.

Выход на террасу гаража приветствуется. Оттуда можно попасть по лестнице на основную плоскую крышу дома.

3D Визуализация №2
3D Визуализация №2

Белое с серым и тёмно-серым цветовое решение - правильное в данном случае.

3D Визуализация №3
3D Визуализация №3

Гаражные ворота шириной 6 метров - максимальные по техническим характеристикам.

3D Визуализация №4
3D Визуализация №4

Панорамные окна планируется сделать стеклопакетами. Для удешевления.

3D Визуализация №5
3D Визуализация №5

Из-за роста цен на пиломатериалы - плоская крыша выходит в ЛИДЕРЫ!