Добавить в корзинуПозвонить
Найти в Дзене

Ремонт в советской панельке. До/после

Новое до/после квартиры, которым мы хотим с вами поделиться.
Если в предыдущем посте мы показали, как убрали все перегородки ради пожеланий заказчиков, то в данном случае ситуацию абсолютно другая: ни одна комната не пострадала!
Все перегородки, кроме той, что разделяла санузел и ванну, были сохранены. Сделано это было в первую очередь для того, чтобы сэкономить на ремонтных работах.
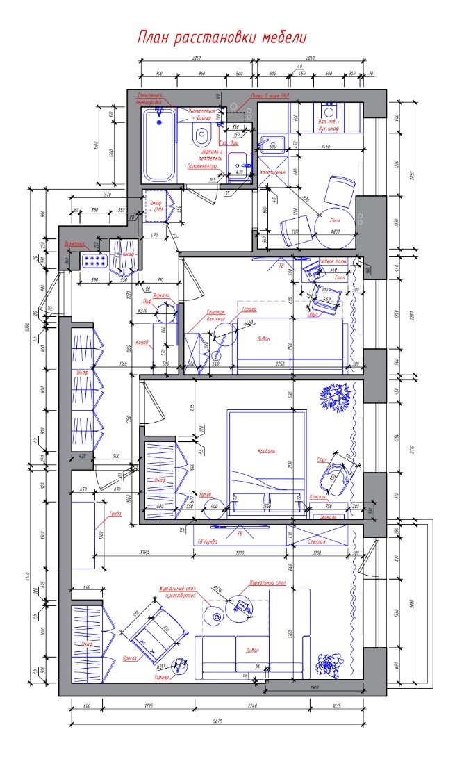
Планировочное решение. Как мы уже сказали, перепланировки практически не было, поэтому план расстановки мебели мы составляли исходя из уже имеющихся данных.
Санузел мы объединили с душевой и получили пространство, в котором получилось достаточно места для хранения бытовых принадлежностей.
Новые перегородки появились только для того, чтобы вписать в короб готовые шкафы от ушедшей от нас Ikea. Статью с альтернативами мебели Ikea можно найти здесь. Всего в квартире три комнаты и небольшая кухня.
Пандемия дала о себе знать, и заказчица попросила нас выделить полноценное помещение под кабинет для работы на
Оглавление

Новое до/после квартиры, которым мы хотим с вами поделиться.
Если в предыдущем посте мы показали, как убрали все перегородки ради пожеланий заказчиков, то в данном случае ситуацию абсолютно другая: ни одна комната не пострадала!
Все перегородки, кроме той, что разделяла санузел и ванну, были сохранены. Сделано это было в первую очередь для того, чтобы сэкономить на ремонтных работах.

Планировочное решение.

Как мы уже сказали, перепланировки практически не было, поэтому план расстановки мебели мы составляли исходя из уже имеющихся данных.
Санузел мы объединили с душевой и получили пространство, в котором получилось достаточно места для хранения бытовых принадлежностей.
Новые перегородки появились только для того, чтобы вписать в короб готовые шкафы от ушедшей от нас Ikea. Статью с альтернативами мебели Ikea можно найти
здесь.

План расстановки мебели
План расстановки мебели

Всего в квартире три комнаты и небольшая кухня.
Пандемия дала о себе знать, и заказчица попросила нас выделить полноценное помещение под кабинет для работы на удаленке. Всегда очень круто, когда есть возможность отделить рабочее пространство от жилого. Кухня получилась небольшая, так как мы не меняли первоначальную планировку, обеденная зона всего на две персоны.

В гостиной мы разместили диван с полноценным спальным местом и предусмотрели достаточно много шкафов и стеллажей, так как у заказчицы очень много книг и различного декора. В целом квартире много шкафов для одежды и других принадлежностей, так как мы не закладывали гардеробную.
Спальня небольшая, но мы смогли уместить кровать 140х200, что вполне достаточно для одного человека ,шкаф для одежды и консольный столик для макияжа.

Дизайн. Кухня 5,72 кв.м.

Проект выполнен в стиле сканди+бохо, поэтому вся квартира в целом в теплых и светлых тонах.
В отделке стен мы использовали обои с имитацией штукатурки, так как бюджет был небольшой.
Сама кухня вышла прям самым настоящим представителем скандинавского стиля: здесь у нас и белые фасады с деревом, и квадратная плиточка, и пэчворк на полу. Все как надо)
Возможно многим покажется, что рейки на стене уже давно устаревший тренд, но именно здесь они оказались на своем месте, а кашпо с цветами отлично их дополнили.
Интересной особенностью стали уже имеющиеся стулья, которые хозяйка реставрировала под нашу задумку.
Макраме над обеденной зоной отлично гармонирует с материалами отделки и мебелью, и добавляет уюта всему помещению.

Дизайн. Кабинет 7,99 кв.м.

Изначально в квартире не было предусмотрено не то, что помещения под кабинет, но и просто рабочего места.
Целая комната для работы это настоящая удача, особенно во времена, когда удаленка стала неотъемлемой частью нашей жизни.
Светлые оттенки в отделке, с акцентным зеленым настраивают на рабочий лад. Наличие мягкого дивана дает возможность в любой момент расслабиться и передохнуть, набраться сил.

Несмотря на скандинавский стиль, мы решили немного разбавить его лепным декором. Так в проекте появились цветные молдинги и розетки на потолке, которые отлично вписались в эстетику бохо и сканди.

Дизайн. Спальня 11,46 кв.м.

Спальня получилась яркая и очень сочная. Поделенная на две части стена у изголовья стала некоторой изюминкой комнаты. Сочный зеленый и обои с флористическим рисунком в сочетании с деревянными светильниками создают теплую летнюю атмосферу. Мы предусмотрели зону туалетного столика с вместительными ящичками для косметики и один прикроватный столик.
Зеркало в полный рост всегда стоит дороже, так что было принято решение использовать зеркальный фасад на шкафу. Удобно и достаточно бюджетно.

Дизайн. Гостиная 18,71 кв.м.

Помещение гостиной мы сделали максимально светлым и просторным. В отделке стен и мебели преимущественно нет каких-либо ярких цветов, все пространство построено на сочетании натуральных материалов друг с другом.
Примечателен тот момент, что мы смогли вписать в интерьер некоторые предметы декора, которыми очень дорожила заказчица. Здесь и столик-слеб, и декоративная черепаха в зоне тв, и дорогие сердцу картины.
Все это делает интерьер живым и родным в первую очередь для хозяйки квартиры.

Дизайн. Санузел 3,09 кв.м.

Убрав перегородку между санузлом и ванной комнатой, мы создали единое комфортное пространство.
Интересной задачей стало то,что нам нужно было вписать в интерьер уже имеющуюся плитку ручной работы.

Её мы выложили вдоль тумбы под раковину. Казалось бы,цветная, необычная и абсолютно разная, как ее можно вписать в интерьер, где преобладают натуральные материалы?
В этом вся прелесть изолированных помещений, вроде санузлов. Конечно же, мы не можем сделать всю квартиру в стиле сканди, а санузел современным или классическим. Но мы можем отойти от выбранной гаммы и разбавить ее.
Так и здесь, чтобы грамотно вписать все плиточки, мы решили внедрить в интерьер бирюзовые оттенки в виде плитки от Italon и напольной плитки в стиле пэчворк.
Несмотря на опасения, получилось гармонично и уютно.

Дизайн. Прихожая 9,77 кв.м.

Прихожая является связующим звеном всех помещений в квартире, так как это "коридорное" пространство, которое мы видим входя в дом, или выходя из каждой комнаты.
В отделке мы использовали нейтральные оттенки и материалы, которые прослеживаются в интерьере квартиры.
Как было сказано ранее, гардеробная не была предусмотрена, поэтому в прихожей мы разместили большое количество шкафов для одежды и бытовых предметов. Конечно мы стараемся избегать таких решений, но конкретно в данном случае, за счет широкого коридора, удалось избежать ощущения проходной гардеробной. Так как помещение под санузел получилось небольшое, мы так же предусмотрели хоз.шкаф в прихожей, в которую спрятали стиральную машинку.

Скандинавский стиль в интерьере уже довольно долго держится в списке первых на выбор для бюджетного ремонта.

Мы хотели показать, что интерьер в стиле сканди можно сделать по-своему особенным и уютным, особенно, если в нем присутствуют дорогие вам вещи.

А если вы хотите получить интерьер своей мечты, то у нас есть отличные новости!
Мы запустили сезон скидок на ПОЛНЫЙ дизайн-проект.

Цены актуальны до 31.08.22 только на тариф "полный" дизайн-проект:

  • 4080 р./ м.кв вместо 4800 для квартир менее 50 кв.м.
  • 3825 р./м.кв вместо 4500 для квартир более 50 кв.м.
  • 3570 р./м.кв вместо 4200 для квартир более 100 кв.м.

Даже если ключей от квартиры у вас еще нет, вы можете зафиксировать цены уже сейчас, и обратиться к нам в течение года.


Оставить заявку и зафиксировать выгодные цены можно на сайте -
https://kiraprodesign.com/ или же в Whatsapp по номеру телефона +7 960 233-46-61 до 31.08.2022, торопитесь, таких цен у нас не было с 2020 года!