Добавить в корзинуПозвонить
Найти в Дзене
ЭТО ВАШ ИНТЕРЬЕР

Преображение квартиры после телепередачи "Квартирный вопрос"

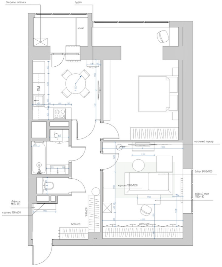
Наши герои живут в этой квартире уже ни один год. Несколько лет назад, у них был опыт сотрудничества с дизайнерами: они подали заявку в телепередачу "Квартирный вопрос" и им сделали спальню. После этого, хозяева квартиры решились на преображение остальных помещений в квартире. Проект После переделки они обратились за помощью к дизайнеру, чтобы тот сделал светлую, лаконичную и легкую квартиру. Из-за множества несущих перегородок, перепланировку было решено не делать. Прихожая Прихожую выполнили в светлых и нейтральных цветах. Напольное покрытие выложено паркетом "елочка". Справа при входе расположилась система хранения. Слева на полу установили зеркало в полный рост. Кухня Кухню и коридор отделили большой стеклянной дверью, чтобы создать ощущение простора и воздуха. Кухонный гарнитур выполнен в светлом цвете, а приобретен в фирме "ЗОВ". Верхний ярус специально продлен до потолка, чтобы появилось больше мест для хранения. Столешница сделана из искусственного камня. Фартук выложен светлой
Оглавление

Наши герои живут в этой квартире уже ни один год. Несколько лет назад, у них был опыт сотрудничества с дизайнерами: они подали заявку в телепередачу "Квартирный вопрос" и им сделали спальню. После этого, хозяева квартиры решились на преображение остальных помещений в квартире.

Проект

  • Местонахождение: г. Москва, проспект Вернадского
  • Площадь квартиры: 72 кв. метра
  • Владельцы: семейная пара

После переделки они обратились за помощью к дизайнеру, чтобы тот сделал светлую, лаконичную и легкую квартиру. Из-за множества несущих перегородок, перепланировку было решено не делать.

Прихожая

Прихожую выполнили в светлых и нейтральных цветах. Напольное покрытие выложено паркетом "елочка". Справа при входе расположилась система хранения. Слева на полу установили зеркало в полный рост.

Кухня

Кухню и коридор отделили большой стеклянной дверью, чтобы создать ощущение простора и воздуха. Кухонный гарнитур выполнен в светлом цвете, а приобретен в фирме "ЗОВ". Верхний ярус специально продлен до потолка, чтобы появилось больше мест для хранения. Столешница сделана из искусственного камня. Фартук выложен светлой плиткой. Ближе к окну расположилась столовая группа с раскладным обеденным столом.

Гостиная

Гостиная выполнена тоже в белом цвете. Посередине комнаты расположился раскладной диван в насыщенном синем цвете. Прямо за ним появилось рабочее место. Стену напротив дивана оформили декоративными молдингами. За письменным столом расположилась большая система хранения во всю стену.

Спальня после "телеремонта"

-5

Ванная комната и туалет

Санузел здесь раздельный, но оформлен в едином стиле. Часть стен выложены крупноформатной светлой плиткой с орнаментом, а другая часть выкрашена светлой влагостойкой краской.

Если вам понравилась статья, то не забудьте поставить лайк и подписаться, чтобы не пропустить новый материал!

Так же пишите в комментариях, что вам понравилось в этом проекте, а что вызывает сомнения.