Добавить в корзинуПозвонить
Найти в Дзене
ЭТО ВАШ ИНТЕРЬЕР

Как девушка-дизайнер сделала стильное преображение квартиры площадью 44 кв. метров за 4 млн. рублей

С самого начала, данная квартира была куплена как инвестиционный проект (под сдачу в аренду). Но планы поменялись, и пришлось проектировать квартиру для себя. Проект После того как владельцы получили ключи от квартиры, они сразу же принялись за проектирование и ремонт. Так как квартира сдавалась от застройщика без какой-либо отделки, проект делали с чистого листа. Одним из существенных плюсов данной жилплощади - это наличие аж пяти окон. Прихожая Вся прихожая выполнена в максимально светлой цветовой гамме с яркими цветовыми акцентами. Справа от входа появился встроенный шкаф с прозрачными дверцами. У стены расположился яркий пуф с большим зеркалом. Кухня-гостиная Напольное покрытие во всей квартире единое - наливные полы. Стены покрашены в белый цвет. Слева при входе установили кухонный гарнитур. Нижние фасады глухие и выполнены в сером цвете, а верхние - решетчатые и имеют более темный цвет. Под потолком находятся антресольные секции. У окна расположилась столовая группа, которая виз
Оглавление

С самого начала, данная квартира была куплена как инвестиционный проект (под сдачу в аренду). Но планы поменялись, и пришлось проектировать квартиру для себя.

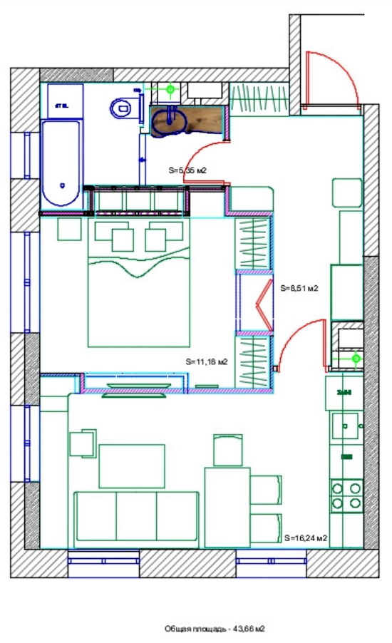
Проект

  • Местонахождение: г. Москва
  • Площадь квартиры: 43,6 кв. метров
  • Владельцы: девушка-дизайнер с мужем
  • Бюджет: 4 млн. рублей (ремонт и вся мебель)

После того как владельцы получили ключи от квартиры, они сразу же принялись за проектирование и ремонт. Так как квартира сдавалась от застройщика без какой-либо отделки, проект делали с чистого листа. Одним из существенных плюсов данной жилплощади - это наличие аж пяти окон.

Прихожая

Вся прихожая выполнена в максимально светлой цветовой гамме с яркими цветовыми акцентами. Справа от входа появился встроенный шкаф с прозрачными дверцами. У стены расположился яркий пуф с большим зеркалом.

Кухня-гостиная

Напольное покрытие во всей квартире единое - наливные полы. Стены покрашены в белый цвет. Слева при входе установили кухонный гарнитур. Нижние фасады глухие и выполнены в сером цвете, а верхние - решетчатые и имеют более темный цвет. Под потолком находятся антресольные секции. У окна расположилась столовая группа, которая визуально зонирует пространство.

За обеденным столом появился диван в горчично-оранжевом цвете. Напротив него повесили телевизор (который выглядит как картина). Возле окна находится рабочее место для хозяйки квартиры.

Спальня

Вся спальня выполнена в насыщенном бирюзовом оттенке. С обеих сторон от входа в комнату появились вместительные системы хранения. Посередине пространства появилась просторная кровать. У изголовья кровати расположилась открытая полка-ниша.

Ванная комната

Вся ванная комната оформлена светлым керамогранитом. Возле окна установили стандартную ванну. Чтобы зрительно увеличить пространство, здесь появилось множество зеркал.

Если вам понравилась статья, то не забудьте поставить лайк и подписаться, чтобы не пропустить новый материал!

Так же пишите в комментариях, что вам понравилось в этом проекте, а что вызывает сомнения.