Добавить в корзинуПозвонить
Найти в Дзене

Как сделать проект навесного вентилируемого фасада?

Проектирование фасадов ― неотъемлемая часть строительства зданий. Фасад позволяет вписать здание в ландшафт или, наоборот, выделить его среди однотипных сооружений. Процесс проектирования фасадов заключается в придании объекту привлекательного внешнего вида. Навесные элементы: каркас, утеплитель, облицовка подбираются на основе разработанной документации. От опыта проектной команды, профессиональных навыков строителей, разработок архитектурных решений зависит срок эксплуатации всего здания. Профессионалы сориентируют вас в видах, цветах и “подводных камнях” выбранного типа фасада. Помогут выбрать подсистему. Например, нержавеющая сталь ― прослужит дольше, конструкции из оцинкованной стали ― меньше, алюминиевый фасад ― вызывает массу вопросов из-за удешевления сплавов. Монтаж, внешний вид здания, конечная стоимость материалов влияют на на проектные решения. Компания ВентФасад Проект предлагает доступные решения из разных материалов. Учитываем особенности будущего здания.
Виды вентфасад
Оглавление
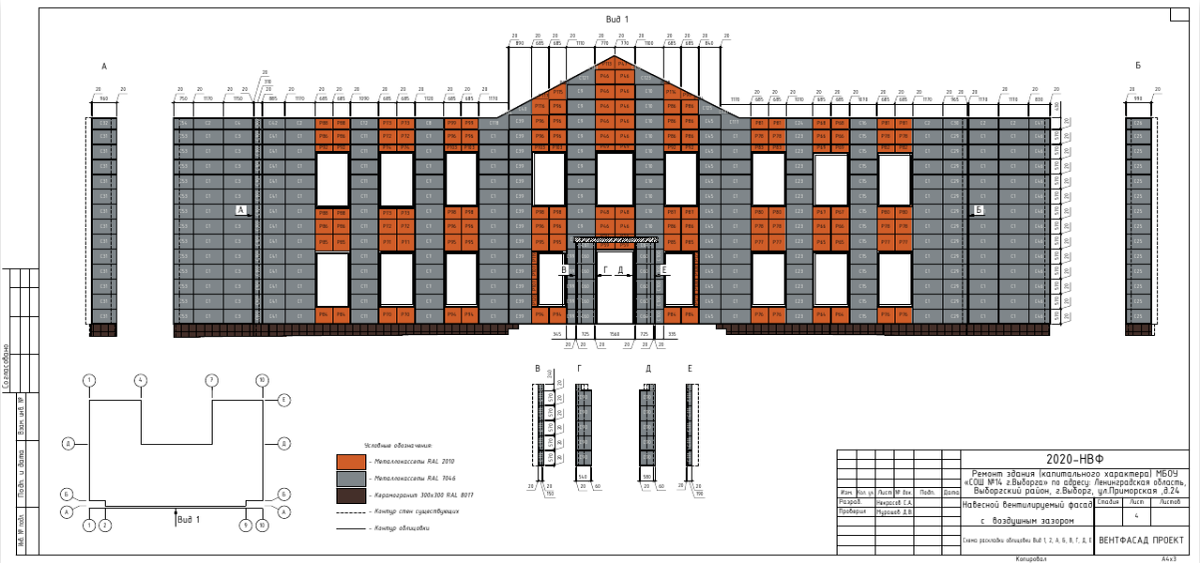
Проект фасада МОУ СОШ №14 в Выборге
Проект фасада МОУ СОШ №14 в Выборге

Проектирование фасадов ― неотъемлемая часть строительства зданий. Фасад позволяет вписать здание в ландшафт или, наоборот, выделить его среди однотипных сооружений. Процесс проектирования фасадов заключается в придании объекту привлекательного внешнего вида. Навесные элементы: каркас, утеплитель, облицовка подбираются на основе разработанной документации.

От опыта проектной команды, профессиональных навыков строителей, разработок архитектурных решений зависит срок эксплуатации всего здания. Профессионалы сориентируют вас в видах, цветах и “подводных камнях” выбранного типа фасада. Помогут выбрать подсистему. Например, нержавеющая сталь прослужит дольше, конструкции из оцинкованной стали меньше, алюминиевый фасад вызывает массу вопросов из-за удешевления сплавов.

Монтаж, внешний вид здания, конечная стоимость материалов влияют на на проектные решения. Компания ВентФасад Проект предлагает доступные решения из разных материалов. Учитываем особенности будущего здания.

Виды вентфасадов:

  • алюминиевые композитные панели (АКП),
  • хризотилцементные и фиброцементные плиты,
  • металлокассеты оцинкованные открытого или закрытого типа,
  • металлические алюминиевые кассеты,
  • HPL-панели из слоистого пластика,
  • искусственный или натуральный камень,
  • металлический сайдинг, линеарные панели, профлист и прочие листовые материалы,
  • керамогранитная панель из тонкого листа.

Что важно учесть при проектировании фасада?

При работе над расчетной частью проектной документации необходимо учитывать факторы, влияющие на выбор допустимого варианта устройства фасада. Например, климатические условия местности, внешний звуковой фон, количество этажей, противопожарные меры.


Основные этапы проектирования:

1. Разработка проектной документации.

Проект имеет две составляющие – текстовую и графическую. Текстовая часть содержит принятые технические решения с результатами расчетов, описания, пояснения и ссылки на нормативную документацию. Графическая – схемы, чертежи, 3D-модели и планы.

2. Подготовка рабочей документации

Включает в себя детальную проработку проектных решений. Результатом является разработка:

  • комплектов чертежей по маркам,
  • сметной документации,
  • спецификации оборудования,
  • ведомостей необходимых материалов,
  • документа, определяющего объемы монтажных работ.

Созданные документы — инструкция по выполнению монтажа фасада для стротелей.

Этап 3: Описание фасадных конструкций

Создание:

  • пояснительной записки с описанием выбранной технологии и используемых материалов,
  • поэтажных планов и разверток по фасадам,
  • точных схем монтажа всех элементов конструкции: теплоизоляционные материалы, кронштейны, направляющие, облицовка, детали и узлы,
  • карт раскроя листовых материалов,
  • схематичных изображений типовых и специальных монтажных узлов,
  • спецификации материальных ресурсов,
  • прочностных расчетов.

Этап 4: Детальное описание фасадных конструкций

Набор документов:

  • пояснительная записка,
  • монтажные схемы с промаркированными отправочными элементами и узлами монтажа,
  • рабочие чертежи отправочных элементов,
  • сводные ведомости, включающих отправочные элементы, монтажные болты, сварные швы и заклепки.

На этом этапе проектирования фасадов зданий используются 3D-программы. Это гарантирует точную сборку конструкции во время монтажа.

Этап 5: Подготовка исполнительной документации

Этап необходим для успешного ввода в эксплуатацию фасадной конструкции здания.

Необходимо подготовить:

  • перечень исполнительной документации,
  • общий и специальный журнал работ,
  • исполнительные схемы,
  • акты и протоколы, относящиеся к приемке и испытаниям,
  • акты о проведенных скрытых работах,
  • паспорта, сертификаты качества.

Паспорт фасада выдается Комитетом по градостроительству и архитектуре и его оформление можно считать финальной частью работ.

-4